QQ登录

只需一步,快速开始

登录 | 注册 | 找回密码

三维网

 找回密码
 注册

QQ登录

只需一步,快速开始

展开

通知     

查看: 2176|回复: 13
收起左侧

[已答复] 高手看过来!!

[复制链接]
发表于 2008-12-19 20:01:10 | 显示全部楼层 |阅读模式 来自: 中国山东东营

马上注册,结识高手,享用更多资源,轻松玩转三维网社区。

您需要 登录 才可以下载或查看,没有帐号?注册

x
大家帮帮我吧!
8 \, v% r: m7 U1.3 J( a/ d$ N4 `& P( Y# R
http://img382.photo.163.com/tCwazHbfn9DBdh-hLJ-Ifg==/1062005087129751712.jpg) N, D. k3 y8 `$ i7 _( p' Y/ I. P1 z
8 {- |# |0 N3 U% P1 w9 ]9 b1 x& r) _
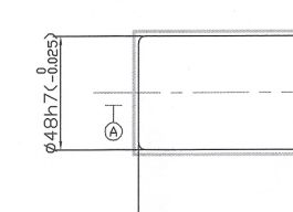
上图中的A代表的是什么?6 U. c& J2 z. d8 {* I
2.http://img382.photo.163.com/jRd7Ya8OuJlez7ynRk4hUQ==/1062005087129751642.jpg* U; K2 M- r, n7 m4 }5 P  P
3 I/ D8 r: M; C0 L, W& {$ _: w
图中的A代表什么?# @/ a. h3 l( n  g7 l& \
2-B3/7.5 GB145-85代表什么意思?
: {9 e" A7 I- V! b. L
在这里先谢谢大家了!!- J2 ^( {+ t" \+ n) y

5 X9 s- f2 X7 y* t0 ?
  j9 h6 F: o: Q$ `1 q[ 本帖最后由 asdolmlm 于 2008-12-21 20:56 编辑 ]
发表于 2008-12-19 20:16:55 | 显示全部楼层 来自: 中国上海
A是基准,后面那个是中心孔。! ?" Q8 x5 M* T  N! H7 G) j

& [8 L2 G+ R; o9 u$ n; H# W[ 本帖最后由 evtepe 于 2008-12-21 19:59 编辑 ]
1.jpg
2.jpg

评分

参与人数 1三维币 +3 收起 理由
userkypdy + 3 积极交流

查看全部评分

发表于 2008-12-19 20:32:20 | 显示全部楼层 来自: 中国河北保定
2-B3/7.5 GB145-85代表两个B型中心孔,孔径为3(国家标准GB145-85)

评分

参与人数 1三维币 +3 收起 理由
userkypdy + 3 积极交流

查看全部评分

 楼主| 发表于 2008-12-19 21:44:39 | 显示全部楼层 来自: 中国山东东营

回复 2# evtepe 的帖子

A是基准。这个基准是什么?) ^1 @' Y) Y3 F6 ~/ {
是孔的中心线么?还是别的?
发表于 2008-12-19 23:17:44 | 显示全部楼层 来自: 中国广东广州
A基准就是轴线
 楼主| 发表于 2008-12-20 11:56:50 | 显示全部楼层 来自: 中国山东东营

回复 3# sunnyoldman 的帖子

7.5代表什么?) o# l) r( h! D1 C' s; o5 m

6 t0 l( a$ ~$ |. m' r& s2 X: X6 x两个中心孔是怎么分布的??
发表于 2008-12-20 13:27:08 | 显示全部楼层 来自: 中国浙江温州
7.5代表孔的深度
发表于 2008-12-21 19:05:41 | 显示全部楼层 来自: 中国贵州贵阳
7.5是孔口最大尺寸,不是深度。
发表于 2008-12-21 19:27:44 | 显示全部楼层 来自: 中国浙江台州
看看中心孔的标准就明白了。
发表于 2008-12-21 20:49:26 | 显示全部楼层 来自: 中国上海
原帖由 cherishwyl 于 2008-12-20 11:56 发表 http://www.3dportal.cn/discuz/images/common/back.gif7 U' z' [" t6 L+ D) \1 ~1 h
7.5代表什么?
7 s! v6 N) v5 J* k& F2 _8 |9 M8 J& H3 K% x, b, n8 ]
两个中心孔是怎么分布的??
5 n5 Q/ J5 ~  m3 @1 d2 o- s

& T- ]( _& u9 @+ J; ^9 v一根轴的两端各一个。
7 m) ^6 `; e& A
0 ?$ O6 t$ O- w: p+ K) i两个尺寸含义如图。
CQ.jpg

评分

参与人数 1三维币 +3 收起 理由
asdolmlm + 3 应助

查看全部评分

发表于 2008-12-21 21:01:08 | 显示全部楼层 来自: 中国江西九江

回复 1# cherishwyl 的帖子

第一张图的A表示以φ48外圆轴线为基准: G  k: }1 q' h7 U6 ~9 Z. o. q
( c, H. I' Q% z2 a# h
第二张图的A表示以B3/7.5中心孔为基准。

评分

参与人数 1三维币 +3 收起 理由
userkypdy + 3 积极交流

查看全部评分

发表于 2008-12-22 09:01:01 | 显示全部楼层 来自: 中国山西太原
1  图1 中A基准是φ48h7的轴线,我国形位公差标准规定标在φ48h7的尺寸线箭头对面,不应标在轴线附近。
) |$ K2 X, s. x! l% D; L2  图2 中A基准是2个B3/7.5中心孔。但图中螺纹的表面粗糙度不应标在螺纹大径上,应标在螺纹的尺寸线上,表示螺纹表面的表面粗糙度。

评分

参与人数 1三维币 +3 收起 理由
userkypdy + 3 积极交流

查看全部评分

发表于 2008-12-22 15:56:42 | 显示全部楼层 来自: 中国上海

刚入行吧

刚入行吧,这个可以在机械设计手册的第一册中找到,
. `* L5 V# N% X' l0 G" U1 [8 hA___表示基准。8 j( c+ `) w. x+ c# |% W. H
2-B3/7.5____表示B型中心孔,3/7.5孔规格, 2是两端都有。' [; e- O) [2 ?% B2 v  T
GB145-85___表示孔的国家标准号。不用我多解释了。

评分

参与人数 1三维币 +3 收起 理由
userkypdy + 3 积极交流

查看全部评分

发表于 2008-12-25 15:46:11 | 显示全部楼层 来自: 中国北京
一.A是轴的中心线为基准
- N" F: i8 e: j# B- ?8 \二.轴两端为带护锥的中心孔,直径为5.
发表回复
您需要登录后才可以回帖 登录 | 注册

本版积分规则


Licensed Copyright © 2016-2020 http://www.3dportal.cn/ All Rights Reserved 京 ICP备13008828号

小黑屋|手机版|Archiver|三维网 ( 京ICP备2023026364号-1 )

快速回复 返回顶部 返回列表