QQ登录

只需一步,快速开始

登录 | 注册 | 找回密码

三维网

 找回密码
 注册

QQ登录

只需一步,快速开始

展开

通知     

查看: 1962|回复: 11
收起左侧

[讨论结束] 不明白的电路图---请高手赐教

 关闭 [复制链接]
发表于 2008-12-23 16:56:19 | 显示全部楼层 |阅读模式 来自: LAN

马上注册,结识高手,享用更多资源,轻松玩转三维网社区。

您需要 登录 才可以下载或查看,没有帐号?注册

x
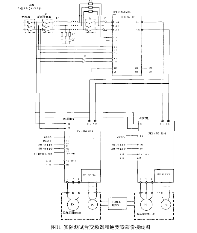
图中R0电阻(与接触器触点并联)是起什么作用的?是不是起灭弧作用的?具体的数值是怎么计算的?
' C5 l0 L1 t2 g- B  Q* J9 j" u为什么有两个进线电抗器Lf?
  u8 K" L* y7 ^1 k" c" NRF和CF是起什么作用的?是电容补偿?还是抑制电路浪涌电流?具体数值怎么计算?
; x, K4 @0 r' C% q# t" d$ c+ y& n, _1 q& b+ f
说明:电路图的目的是为了测试马达性能。用两台inverter和一台converter控制两台马达(一台负载机 一台测量机  用联轴器联结)
图1.BMP
发表于 2008-12-23 17:19:20 | 显示全部楼层 来自: 中国广东汕头
我看图中R0电阻是电源对converter控制台延时抑制电路浪涌电流,  RF和CF作用是converter控制台对电网干扰抑制.
发表于 2008-12-23 17:39:12 | 显示全部楼层 来自: 中国河北保定
我估计起的是消耗电能的作用,也就时说,让你的接触器在第一时间内断开,提高接触器的开闭效率和性能吧5 K+ G) U( k9 a
个人见解,请高手指点
发表于 2008-12-23 18:41:59 | 显示全部楼层 来自: 中国江苏徐州
R0作用应该是变频器的预充限流,RF和CF抑制变频器对电网干扰,也可以作为浪涌吸收用
发表于 2008-12-24 06:07:27 | 显示全部楼层 来自: 中国辽宁阜新
二楼说法差不多
发表于 2008-12-24 08:50:51 | 显示全部楼层 来自: LAN
谢谢各位的指点
, n2 ]. s' g: _. V, b( i; e这些电阻和电容是怎么计算的呢?
发表于 2008-12-24 09:05:48 | 显示全部楼层 来自: 中国四川成都
R0应该是按照R2,T2端口的电流来算,不能电压不变的情况下,看端口的过流量是多少了
发表于 2008-12-24 09:30:11 | 显示全部楼层 来自: 日本
rf和CF主要的作用是浪涌抑制,若电容补偿,没必要加RF电阻。另外若加电容补偿,电容的大小根据负载功率因数的变化而改变,需要计算。
 楼主| 发表于 2008-12-24 10:17:27 | 显示全部楼层 来自: LAN
这个电路图中变频器有两个输入电抗器(两个电抗器的感抗不同)6 V5 B# @- e: Y' a
请问为什么加两个电抗器?加两个电抗器时怎么计算电感量?
发表于 2008-12-24 18:55:17 | 显示全部楼层 来自: 中国北京
不懂,我是来学习滴
发表于 2008-12-27 11:12:00 | 显示全部楼层 来自: 中国广东广州
看过直流调速的扩容,都加油电阻和电容,其浪涌保护的,这个也应该差不多
发表于 2008-12-27 21:58:55 | 显示全部楼层 来自: 中国山西运城
弱点与强电得配合呀!各种小细节得处理还得看人家软件是怎么编得!
发表回复
您需要登录后才可以回帖 登录 | 注册

本版积分规则


Licensed Copyright © 2016-2020 http://www.3dportal.cn/ All Rights Reserved 京 ICP备13008828号

小黑屋|手机版|Archiver|三维网 ( 京ICP备2023026364号-1 )

快速回复 返回顶部 返回列表