QQ登录

只需一步,快速开始

登录 | 注册 | 找回密码

三维网

 找回密码
 注册

QQ登录

只需一步,快速开始

展开

通知     

查看: 2437|回复: 6
收起左侧

[求助] 高压水系统设计资料

[复制链接]
发表于 2008-12-26 10:37:54 | 显示全部楼层 |阅读模式 来自: 中国陕西渭南

马上注册,结识高手,享用更多资源,轻松玩转三维网社区。

您需要 登录 才可以下载或查看,没有帐号?注册

x
早期液压传动是以水系统为主的,随着油系统的发展水系统逐渐淡出。但老设备还在使用,同仁们谁有关于水压机本体和操作系统的资料请提供一下。解燃眉之急。先谢谢了!
头像被屏蔽
发表于 2008-12-26 11:25:44 | 显示全部楼层 来自: 中国广东深圳
提示: 作者被禁止或删除 内容自动屏蔽
 楼主| 发表于 2008-12-26 11:52:48 | 显示全部楼层 来自: 中国陕西渭南
原帖由 youth3902 于 2008-12-26 11:25 发表 http://www.3dportal.cn/discuz/images/common/back.gif" Y6 k' p7 v" x  b4 N# w+ |: _9 W
我倒是有水泵和水阀的资料。

8 |3 m9 u) A7 [9 h) J  Q9 }1 O4 X请介绍一下或上传
 楼主| 发表于 2008-12-29 20:17:10 | 显示全部楼层 来自: 中国陕西西安
盼望他家帮忙呀!
发表于 2008-12-30 07:58:35 | 显示全部楼层 来自: LAN
北京星光沃特有,它们厂是专门生产研制高压水除鳞设备的。
发表于 2008-12-30 10:55:37 | 显示全部楼层 来自: 中国辽宁本溪
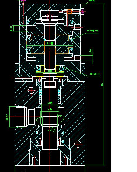
贴张图,不知能否给楼主提供点帮助。
! G' R5 p' I" o& W# U& v上面是一个液压缸。其活塞杆通过上下移动使下面的锥阀开启或关闭。
油控水截止阀图纸.JPG
 楼主| 发表于 2008-12-30 14:50:37 | 显示全部楼层 来自: 中国陕西西安
谢谢上传,学习了!
发表回复
您需要登录后才可以回帖 登录 | 注册

本版积分规则


Licensed Copyright © 2016-2020 http://www.3dportal.cn/ All Rights Reserved 京 ICP备13008828号

小黑屋|手机版|Archiver|三维网 ( 京ICP备2023026364号-1 )

快速回复 返回顶部 返回列表