QQ登录

只需一步,快速开始

登录 | 注册 | 找回密码

三维网

 找回密码
 注册

QQ登录

只需一步,快速开始

展开

通知     

查看: 1407|回复: 3
收起左侧

[已答复] 图中英文代表的意思!

[复制链接]
发表于 2008-12-31 08:42:23 | 显示全部楼层 |阅读模式 来自: 中国天津

马上注册,结识高手,享用更多资源,轻松玩转三维网社区。

您需要 登录 才可以下载或查看,没有帐号?注册

x
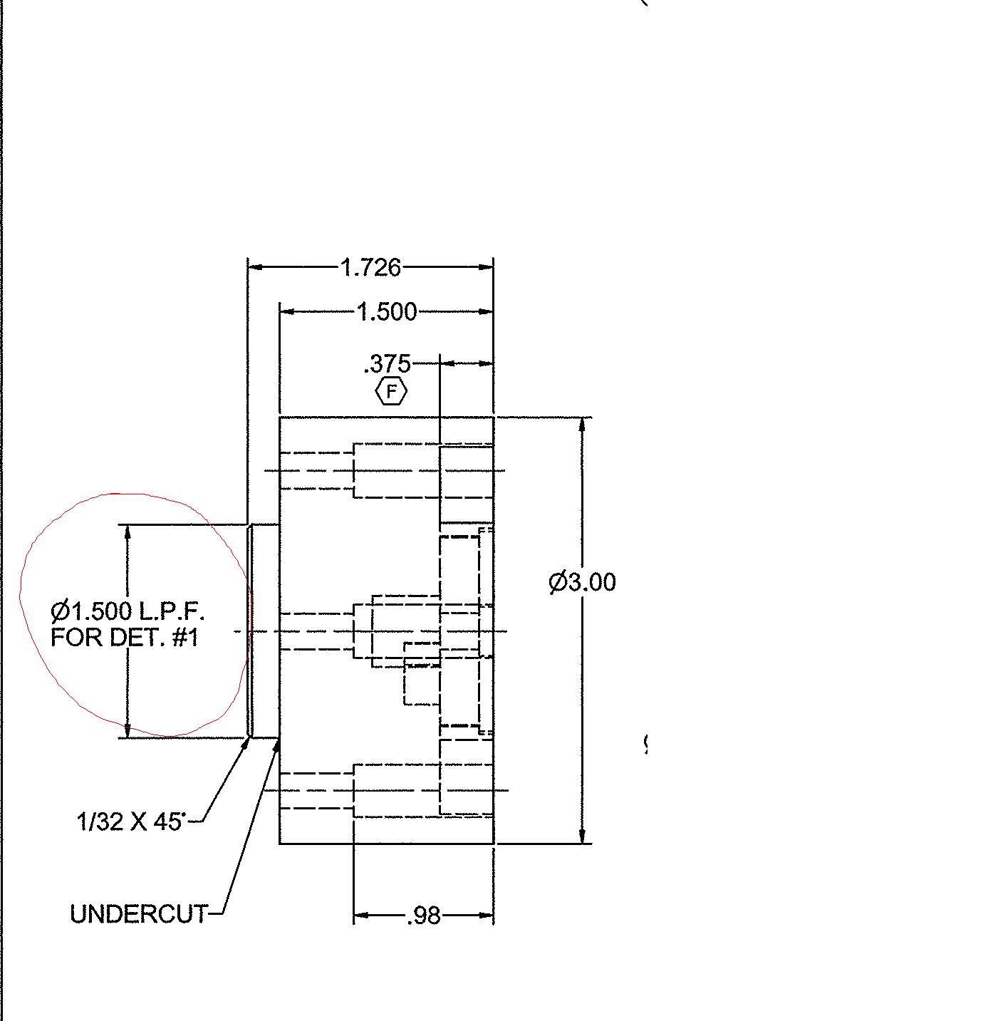
图中英文代表的意思是什么?我只知道是螺钉沉孔,具体尺寸是多少啊?通孔尺寸和沉孔尺寸都是多少啊?
" }6 }; q: ?! [( ?6 [- \: L5 c
+ @6 `* y" V. A/ C. Y9 c[ 本帖最后由 xiaobao30434136 于 2008-12-31 09:30 编辑 ]
未命名.jpg
2.JPG
发表于 2008-12-31 13:01:47 | 显示全部楼层 来自: 中国山东青岛
第一个完成,第二个无能为力。

未命名.pdf

187.99 KB, 下载次数: 6

评分

参与人数 1三维币 +3 收起 理由
userkypdy + 3 积极交流

查看全部评分

发表于 2008-12-31 13:06:24 | 显示全部楼层 来自: 美国
C’ bore   Coarse bore---This has a tolerance class of 7H for internal threads and 8g for external threads
( p3 n* o. E4 }+ \SHCS  Screw hole countersunk head  d/ y: Z+ P+ _, W, w
¼   Major Dia. Of  threads . inch4 F, h4 v: ~- O! D( D8 P8 F. S! X
0 ], k4 i3 M) v6 h* A- Z  _
#1, drill hole Dia. 5.7192mm

评分

参与人数 1三维币 +3 收起 理由
userkypdy + 3 积极交流

查看全部评分

发表于 2008-12-31 14:51:30 | 显示全部楼层 来自: 中国上海
第一个貌似讲述的是,钻1/4内六角螺钉(Socket Head Cap Screw)使用的沉头孔(Counter Bore),钻到图示的深度2 Y9 W# P1 t) E4 Y( Q& ~6 U( N
第二个貌似讲的是一个不太紧的紧配合(Loose Press Fitting)孔的尺寸参考第一张零件图。9 N) _' _7 @' m9 u
(仅供参考)

评分

参与人数 1三维币 +3 收起 理由
userkypdy + 3 积极交流

查看全部评分

发表回复
您需要登录后才可以回帖 登录 | 注册

本版积分规则


Licensed Copyright © 2016-2020 http://www.3dportal.cn/ All Rights Reserved 京 ICP备13008828号

小黑屋|手机版|Archiver|三维网 ( 京ICP备2023026364号-1 )

快速回复 返回顶部 返回列表