|
|

楼主 |
发表于 2009-1-7 16:10:18
|
显示全部楼层
来自: 中国浙江温州
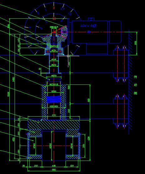
一般机械传动效率问题
" u( i8 D j" ?! a9 J. x! i" j比如我有个传动:锥齿轮副=0.95 轴承=0.98 滑块=0.2
5 s6 \6 \' H& I. b假设:算T 22KW电机 704r/min 锥齿轮比=1:2 电机齿9 轴上18
( E* v9 f) |# w3 N' e) ^$ d1 a- v% b那是不是这样算啊6 h: g8 K& }( }: l; X0 f7 k: [/ _
1、电机出力T总=T电(9550X22/704)X速比2X圆锥齿轮副效率(0.95)X轴滚动承效率(0.98)x铜螺母与外的滑套的滑动摩擦系数(0.2)=约111NM。 + p# e" M4 L& P- f& X; J
这个为乘,,速比也是乘
2 b2 }4 g/ |0 j+ x还是2 j, Y& p7 G1 N
2、电机出力T总=T电(9550X22/704)X(速比1/2) / 《圆锥齿轮副效率(0.95)X轴滚动承效率(0.98)x铜螺母与外的滑套的滑动摩擦系数(0.2)》=801NM。
! Q/ H! R g$ d) E) j* k/ Z这个为除,因为效率和摩擦系数都为阻力,也就是说失效,只有除才可以说是受力,计算可选大的扭矩T 再选大的功率6 S; b7 @, S1 X. }1 D$ X
不知道上都是错还是对,
, U$ ~% r h* X1 c请各位老师帮忙下!~~~~~~ |
|