QQ登录

只需一步,快速开始

登录 | 注册 | 找回密码

三维网

 找回密码
 注册

QQ登录

只需一步,快速开始

展开

通知     

全站
8小时前
查看: 1549|回复: 7
收起左侧

[已答复] 请帮忙解决此问题

[复制链接]
发表于 2009-1-6 23:14:42 | 显示全部楼层 |阅读模式 来自: 中国四川德阳

马上注册,结识高手,享用更多资源,轻松玩转三维网社区。

您需要 登录 才可以下载或查看,没有帐号?注册

x
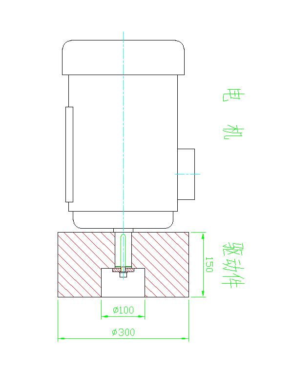
如图一个简单的传动。电机带动一飞轮,请问这个电机功率应该怎么去计算?请说说你的看法,谢谢!
Drawing1-Model.jpg
发表于 2009-1-6 23:27:08 | 显示全部楼层 来自: 中国江苏镇江

回复 1# wcy913 的帖子

楼主的问题应当发到机械区!这里是CAD的应用技术交流。6 d: h, G' z: @* Z2 b
你的问题和CAD的使用关系不大。# \+ u- |8 q0 S  K' F3 O
帮你转过去。
0 y# R- x: |- }4 ^, O: P" M
& |- \& P8 N) ?6 u  J9 g7 B* X6 m另外不要一帖多发!谢谢合作。
发表于 2009-1-7 08:55:28 | 显示全部楼层 来自: 中国北京
计算你的负载功率乘以你的工况系数,再乘以使用效率,应该就是你的电机功率!: A+ v+ k3 T. [+ P7 R" Y
功率的计算只和使用效率和工况系数有关系,和你用什么方式驱动无关,只是不同的驱动和负载所取的工况系数不同!0 `5 O& G* F) q# l1 ], O0 r

+ n$ A" w" {" o0 ]4 Q; p能量守恒定律!

评分

参与人数 1三维币 +3 收起 理由
userkypdy + 3 积极交流

查看全部评分

发表于 2009-1-7 09:08:36 | 显示全部楼层 来自: 中国四川成都
就是负载的功率,由T=9550*P/n*工况系数 反算

评分

参与人数 1三维币 +2 收起 理由
userkypdy + 2 积极交流

查看全部评分

 楼主| 发表于 2009-1-7 10:25:16 | 显示全部楼层 来自: 中国四川德阳
但是这个T怎么计算呢?工况系数暂时不管.8 a1 Z3 O( `9 H2 U& A

  s9 d4 s; }+ Z3 s% A5 K; ~  Z) `+ e$ d( o( m) H
我一直不晓得电机的功率怎么确定,请高手指点.) o' p/ y8 r9 m# f, ?5 j/ q

3 H7 H3 u7 B( f& g" B3 G& u' ]. b4 l9 @$ {[ 本帖最后由 userkypdy 于 2009-1-14 15:01 编辑 ]
发表于 2009-1-7 12:52:41 | 显示全部楼层 来自: 中国河北石家庄
电机功率的选择是机械设计的基础,似乎所以的机械设计和机械制造类书籍都有介绍,建议楼主找一本《机械设计手册》或者从本网站下载《机械设计手册》软件版里面都有电机选择的介绍,而且相当规范,自己一看就明白了。

评分

参与人数 1三维币 +2 收起 理由
userkypdy + 2 积极交流

查看全部评分

 楼主| 发表于 2009-1-7 15:09:10 | 显示全部楼层 来自: 中国四川德阳
机械设计手册我倒是有,但是我没有怎么看到在那里有讲啊,请明示.谢谢
发表于 2009-1-11 10:24:46 | 显示全部楼层 来自: 中国河北石家庄
本网站资料:
5 I& A, D, y# E, d( Y+ U: g7 _中小型电机选型(PDF版)
$ R; X7 P0 R/ k8 _$ l0 U6 w) ]0 jhttp://www.3dportal.cn/discuz/viewthread.php?tid=220770
8 c: M& s- g, `" _3 X《电机工程手册(第二版)(3)电机卷 周娟编 机械工业出版社》(PDG/PDF)
+ T/ ?5 J/ c# lhttp://www.3dportal.cn/discuz/thread-355417-1-1.html
+ R. i$ k+ T& H/ P/ O5 U! Y只是简单的列举了两个,自己搜索吧,本网站就有很多电机设计选择方面的书籍。

评分

参与人数 1三维币 +2 收起 理由
userkypdy + 2 积极交流

查看全部评分

发表回复
您需要登录后才可以回帖 登录 | 注册

本版积分规则

Licensed Copyright © 2016-2020 http://www.3dportal.cn/ All Rights Reserved 京 ICP备13008828号

小黑屋|手机版|Archiver|三维网 ( 京ICP备2023026364号-1 )

快速回复 返回顶部 返回列表