QQ登录

只需一步,快速开始

登录 | 注册 | 找回密码

三维网

 找回密码
 注册

QQ登录

只需一步,快速开始

展开

通知     

查看: 7736|回复: 47
收起左侧

[讨论] 关于未注自由公差的问题,请大家讨论。

[复制链接]
发表于 2009-1-7 16:40:32 | 显示全部楼层 |阅读模式 来自: 中国上海

马上注册,结识高手,享用更多资源,轻松玩转三维网社区。

您需要 登录 才可以下载或查看,没有帐号?注册

x
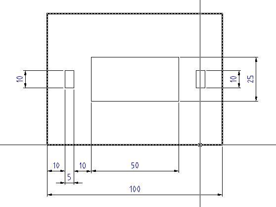
设计中,我一般对主要配合公差尺寸或一些重点尺寸添加公差,其它尺寸统一以自由公差表示。: @6 g; w3 e5 E, \6 h7 G1 J* f
但目前我碰到一问题,如上面的图纸,如所有的尺寸都是自由公差+-0.1的话,即10,5,10,100都是+-0.1。0 I( |4 z* i) s( V
但实际上如果尺寸100的尺寸是+-0.1的话,象10,5,10,100的公差不可能为0.1。公差之间出现矛盾。
6 o* ^9 Z1 A/ Y/ f3 ]在这种情况下,我们该如何表达未注公差,才能够避免实际中出现的公差矛盾问题呢?
8 D4 Z* `( U% n3 f7 K请大家讨论,谢谢!
未命名.JPG
发表于 2009-1-7 17:09:55 | 显示全部楼层 来自: 中国贵州遵义
GB对未注尺寸公差是有规定的,对于不同的尺寸如:100按IT12,同样10按IT12,所查出的值是不一样的,所以,你所说的情况是不存在的

评分

参与人数 1三维币 +2 收起 理由
userkypdy + 2 积极交流

查看全部评分

发表于 2009-1-7 19:18:29 | 显示全部楼层 来自: 中国重庆
未注公差有一个范围1 J6 {; @; X) J  |
公差就是一个范围的
发表于 2009-1-7 19:43:15 | 显示全部楼层 来自: 中国贵州贵阳
未注公差可以统一标注按多少等级就可以了。公差大小之间不存在矛盾。

评分

参与人数 1三维币 +2 收起 理由
userkypdy + 2 积极交流

查看全部评分

 楼主| 发表于 2009-1-7 20:57:25 | 显示全部楼层 来自: 中国上海
有些设计的时候 ,没有查相关的标准,关于未注公差我只是笼统的说一句"未注尺寸公差多少,如+-0.1"这样就出现了上面的问题.: G3 B" Q. e6 ~- P, M* S5 [& p$ Q
大家能说说你们都是如何表达自由公差的,还有楼上兄弟引用的国标,能否告知下国标号.
头像被屏蔽
发表于 2009-1-7 21:07:02 | 显示全部楼层 来自: 中国辽宁营口
提示: 作者被禁止或删除 内容自动屏蔽
发表于 2009-1-7 21:20:53 | 显示全部楼层 来自: 中国河北石家庄
原帖由 andraw 于 2009-1-7 20:57 发表 http://www.3dportal.cn/discuz/images/common/back.gif
2 {8 }4 e8 m. L% M有些设计的时候 ,没有查相关的标准,关于未注公差我只是笼统的说一句"未注尺寸公差多少,如+-0.1"这样就出现了上面的问题.
# A5 m" f3 L( ?4 N' g/ \大家能说说你们都是如何表达自由公差的,还有楼上兄弟引用的国标,能否告知下国标号.

# X) G) b7 v4 ^1 z$ O* M3 L* Z1 z* v2 b' C& l; s" J% u5 i
请查阅《机械设计手册》第一卷中的公差与配合相关内容。

评分

参与人数 1三维币 +2 收起 理由
userkypdy + 2 积极交流

查看全部评分

发表于 2009-1-7 21:25:27 | 显示全部楼层 来自: 中国山西晋中
详细的说应该是这样:自由公差分为四个等级,f.m.c.v7 ^0 N! ?$ u6 y2 g" L
                                        一般来说是m级,即中等级,
' _& s3 G% K1 ^- m  {4 t3 t                    0.5---6是正负0.13 z$ j4 W: F6 p: j0 y
                                        6---30是0.2! \# W/ J. X( O) T
                                         30---120是0.3
. z! t. b- y- u6 z                                         120---400是0.57 F' |& Q; V! X: s; _- h0 Z& b  E; ?
                                         400----1000是0.80 i+ S: Y1 |* b( g/ h7 Z* u
                                          单位是mm后面公差都是正负7 V# l4 R2 Q" ?# p  P+ B2 ]
                    一般还有c级的,更大

评分

参与人数 1三维币 +2 收起 理由
userkypdy + 2 积极交流

查看全部评分

发表于 2009-1-7 22:49:33 | 显示全部楼层 来自: 中国上海
未注尺寸公差在国标上有规定,一般都会标注公差精度等级,就是不标,也不能表示没有。比如铆焊件最大不能超过IT18,机加件最大不能超过IT12。当然你还会看到有人为分段直接给定上下偏差的情况(比如楼上表示的,这在老外的图纸上比较常见,国内给IT的比较多)。

评分

参与人数 1三维币 +2 收起 理由
userkypdy + 2 积极交流

查看全部评分

发表于 2009-1-7 23:02:30 | 显示全部楼层 来自: 中国上海
GB/T1804-2000 一般公差 未注公差的线性和角度尺寸的公差. v0 K& ^6 l* a! @
http://www.3dportal.cn/discuz/vi ... &highlight=1804
$ ~1 p2 T' d) Q) q2 q( _
. a8 T7 W2 t7 Q3 L# X, ]+ x  S一般公差是一个基础标准,看看楼上的回复,好像还有好多人不知道。( S2 v& v1 _1 ]5 a) t

( k; U8 N" Q. P. ?  X5 D6楼扫街老兄,我对你的回复很有意见, :lol: ,误导新手啦。一般公差可以说与产品精度无关,而是由加工方法、设备等制造方面的因素确定选择的。

评分

参与人数 1三维币 +3 收起 理由
userkypdy + 3 积极交流

查看全部评分

发表于 2009-1-8 00:16:48 | 显示全部楼层 来自: 中国广东江门
同意一楼的说法
 楼主| 发表于 2009-1-8 08:52:33 | 显示全部楼层 来自: 中国上海
原帖由 518小强 于 2009-1-7 21:25 发表 http://www.3dportal.cn/discuz/images/common/back.gif
; k+ x: n; @) {5 I详细的说应该是这样:自由公差分为四个等级,f.m.c.v! I0 c7 X* M+ D, W3 e
                                        一般来说是m级,即中等级,
6 M3 B$ c7 a7 ^% ~& b/ h' k                    0.5---6是正负0.1
, v' B* i# p5 U% G- |6 J                                        6--- ...

. W) ~! a, U4 k0 @1 j9 }% b9 B- {, [
: |( ~, L# y) Z+ \感觉这种标注方法同样可能产生矛盾,比如“6---30是0.2,30---120是0.3”,如果一个尺寸100+-0.3下有两个或多个6~30(+-0.2)的尺寸,; `6 m* p- _4 z5 v8 D) x" u
假设为100+-0.3,20+-0.2,20+-0.2,则显然两个尺寸20都在公差范围的时候,100这个尺寸不一定在公差范围之内;6 \; Q! E. G* Y# ~9 M( t  p/ X
要保证所有的尺寸都在公差范围之内的话,两个尺寸20的公差范围应该不是+-0.2,而应该更小。

评分

参与人数 1三维币 +2 收起 理由
userkypdy + 2 积极交流

查看全部评分

发表于 2009-1-8 09:48:46 | 显示全部楼层 来自: 中国山西太原
GB/T1804—2000线性尺寸极限偏差数值中规定了f、m、c、v四个等级,所给定的偏差值都是一个范围,如果是一个圆柱形的轴或销,其长度偏差可用表中某个等级的数值;若是台阶轴,总长用表中给出的偏差值,各台阶长度的偏差值需根据总偏差值进行分配,最后不超过总偏差值,否则总长就就超差了。这里不能进行各段累加查出的偏差值。

评分

参与人数 1三维币 +3 收起 理由
userkypdy + 3 积极交流

查看全部评分

发表于 2009-1-8 11:27:20 | 显示全部楼层 来自: 中国上海
楼主是不是想表达这样的意思:有总长100 偏差+-0.3  由10段组成 每段10 +-0.1 结果如果每段都是最大极限偏差的话 10段就是100 +1 超过+0.3了? 如果这样的话我 。这里涉及尺寸链的问题 10段中必须有一段作为闭环(不标尺寸的),它是你保证总长100 +-0.3 和其余9段 10 +-0.2以后自然形成的 有多少算多少,这样你看还有矛盾吗!

评分

参与人数 1三维币 +3 收起 理由
userkypdy + 3 积极交流

查看全部评分

发表于 2009-1-8 11:35:49 | 显示全部楼层 来自: 中国江苏常州
可以标注未注公差按GB/T1804—2000的规定啊

评分

参与人数 1三维币 +1 收起 理由
userkypdy + 1 积极交流

查看全部评分

 楼主| 发表于 2009-1-8 14:01:55 | 显示全部楼层 来自: 中国上海
原帖由 gaoyns 于 2009-1-8 09:48 发表 http://www.3dportal.cn/discuz/images/common/back.gif* v# U, t2 h6 ]9 z- t
GB/T1804—2000线性尺寸极限偏差数值中规定了f、m、c、v四个等级,所给定的偏差值都是一个范围,如果是一个圆柱形的轴或销,其长度偏差可用表中某个等级的数值;若是台阶轴,总长用表中给出的偏差值,各台阶长度的偏 ...

0 P& k1 K- u, t  Q+ Y如果这样的话,我认为有些尺寸实际公差要求会比说明的未注公差要小,只有这样才能保证总长的公差。
发表于 2009-1-8 15:13:24 | 显示全部楼层 来自: 中国北京
好好看看公差和配合吧,这样的问题不知道,问题在自己不好好学习机械基础.

评分

参与人数 1三维币 +2 收起 理由
userkypdy + 2 积极交流

查看全部评分

发表于 2009-1-8 15:28:38 | 显示全部楼层 来自: 中国山东聊城
你把自由公差理解错了,并不的所有长度段的自由公差都是+-0.1.

评分

参与人数 1三维币 +2 收起 理由
userkypdy + 2 积极交流

查看全部评分

 楼主| 发表于 2009-1-8 15:42:22 | 显示全部楼层 来自: 中国上海
原帖由 zjz1954 于 2009-1-8 15:13 发表 http://www.3dportal.cn/discuz/images/common/back.gif
6 b* x0 C4 b3 M$ e8 j! U2 u好好看看公差和配合吧,这样的问题不知道,问题在自己不好好学习机械基础.

9 x6 e1 L3 I! G7 t5 b我不知道你这样的回复有什么意义,大家来这儿是来讨论问题而不是来指责的。
发表于 2009-1-8 16:18:01 | 显示全部楼层 来自: 中国上海
我看了看楼主几次的发言发现:$ P8 ^9 g, M* \7 K* O# N
1 楼主给出的图纸本身就是有问题的--右边小方框既没有尺寸 也没有相对于外面大方框的定位尺寸(千万不要说是对称。。。。就图纸看不知道闭环在哪里)- N) j5 F; [  a" q. G
2 看起来楼主的迷惑不在于自由公差或者其他什么公差,而在于基本的尺寸链没有掌握。$ `' }* u0 g' m4 w' @7 u
就以你给的图纸看,估计你的尺寸这样:总长100 包括尺寸10、5、10、50、10、5、(10)最后一个10 就是闭环,假设要求100的偏差+-0.5,其余尺寸偏差要求+-0.2(闭环就是用来补偿尺寸偏差的,没有偏差要求,它也是不需要测量的)这是没有任何问题的。我把尺寸50的偏差改为+-1,其余偏差不变,它也是没有任何问题的。7 ]3 C; D8 P) @3 G/ O2 |$ K# u
如果还不明白,就拿着这个图纸,标上这些尺寸直接找工人加工,看他们会不会来一场大讨论

评分

参与人数 1三维币 +4 收起 理由
userkypdy + 4 积极交流

查看全部评分

 楼主| 发表于 2009-1-9 12:49:44 | 显示全部楼层 来自: 中国上海
呵呵,谢谢大家讨论,好像意思没有完全表达清楚,再上图恳请大家指点。
7 T8 Z$ I5 N0 T+ E! A
. P# F( E! u/ N5 [+ y8 M, d[ 本帖最后由 andraw 于 2009-1-9 12:51 编辑 ]
qweqweeqwe.jpg
发表于 2009-1-9 17:32:04 | 显示全部楼层 来自: 中国浙江衢州
公差就是一个范围的
发表于 2009-1-9 18:31:23 | 显示全部楼层 来自: 中国北京
未注公差一般都是按GB/T1804-m取值,我在图纸上不标公差都会注上这个说明的  z0 Z3 S- w/ C  t+ D
7 ]/ a) ^) _5 j; x+ g$ L
否则加工的太离谱了就没有证据了

评分

参与人数 1三维币 +2 收起 理由
userkypdy + 2 积极交流

查看全部评分

发表于 2009-1-10 10:51:08 | 显示全部楼层 来自: 中国浙江温州
我们一般对于示注公差,按IT12级选取,不知这样有没有问题

评分

参与人数 1三维币 +2 收起 理由
userkypdy + 2 积极交流

查看全部评分

发表于 2009-1-15 08:41:36 | 显示全部楼层 来自: 中国河北石家庄
不要埋怨17#说你,你的确犯了一个基本概念错误。
8 a. n4 q$ d; w; v9 B- y) O你在21#的贴图非常清楚,如果你早些把这个图贴出来也就不会这样了。20、25、27这三个尺寸是制造时必保尺寸,100尺寸如果已经标注公差,就不属于自由公差范围,如果不标可按自由公差处理,就这张图纸而言,在实际工厂用图中100尺寸按自由公差处理应该占大多数,而L0尺寸绝对不允许标注,因为所有的加工误差均有此尺寸弥补,就是工件检验也不检验这个尺寸的。不要说尺寸公差了,L0处一旦标注尺寸你的尺寸链就不对了。你说是不是这个理儿?

评分

参与人数 1三维币 +5 收起 理由
userkypdy + 5 应助

查看全部评分

发表回复
您需要登录后才可以回帖 登录 | 注册

本版积分规则


Licensed Copyright © 2016-2020 http://www.3dportal.cn/ All Rights Reserved 京 ICP备13008828号

小黑屋|手机版|Archiver|三维网 ( 京ICP备2023026364号-1 )

快速回复 返回顶部 返回列表