QQ怬

Ö»ÐèÒ»²½£¬¿ìËÙ¿ªÊ¼

µÇ¼ | ×¢²á | ÕÒ»ØÃÜÂë

ÈýÎ¬Íø

 ÕÒ»ØÃÜÂë
 ×¢²á

QQ怬

Ö»ÐèÒ»²½£¬¿ìËÙ¿ªÊ¼

Õ¹¿ª

֪ͨ     

ȫվ
2Ììǰ
²é¿´: 1824|»Ø¸´: 10
ÊÕÆð×ó²à

[Òѽâ¾ö] Һѹϵͳͬ²½ÔËÐÐÎÊÌâ

[¸´ÖÆÁ´½Ó]
·¢±íÓÚ 2009-1-12 18:54:12 | ÏÔʾȫ²¿Â¥²ã |ÔĶÁģʽ À´×Ô£º Öйú½­ËÕÄϾ©

ÂíÉÏ×¢²á£¬½áʶ¸ßÊÖ£¬ÏíÓøü¶à×ÊÔ´£¬ÇáËÉÍæ×ªÈýÎ¬ÍøÉçÇø¡£

ÄúÐèÒª µÇ¼ ²Å¿ÉÒÔÏÂÔØ»ò²é¿´£¬Ã»ÓÐÕʺţ¿×¢²á

x
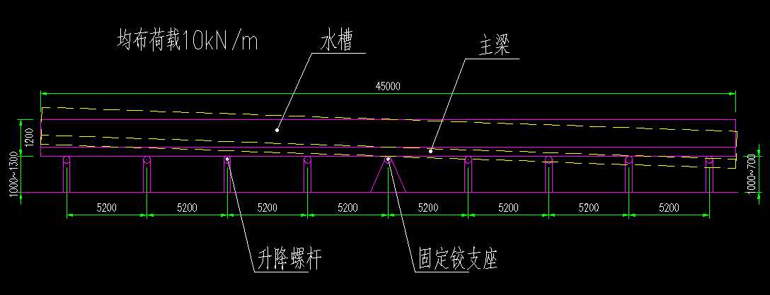
ÓÐÕâÑùÒ»¸öÉ豸£¬³¤45mµÄÒ»¸öË®²Û¡£Ï²¿ÓÐͨ³¤HÐ͸ִóÁº£¬Éè¼ÆºÉÔØ10kN/m¡£ÒªÇóË®²ÛÁ½¶ËÄÜÈÆÖмä¹Ì¶¨½ÂÖ§×ùת¶¯£¨ÀàËÆÓÚõÎõΰ壩¡£Éý½µ·ù¶È0~300mm¡£ÒªÉè¼ÆÕâÑùÒ»Ì×Éý½µ»ú×飬¿¼ÂÇÁ½ÖÖ·½°¸£º; B& o- |' G: _7 I; N
1ÊÇ»úе´«¶¯£¬Õâ¸öÒѾ­Óнâ¾ö·½°¸ÁË¡£
" p7 i9 k. M8 D/ r* \2ÊÇҺѹϵͳ¡£±¾ÈËûÓиã¹ýҺѹ£¬Òò´ËÎÊÌâ¶à¶à¡£ÏëÇë½Ì¸ßλ¸ßÊÖ£¬Èç¹û²ÉÓÃҺѹµÄ»°£º( u) ?2 z" c# {3 C) m
(1) Äܲ»ÄÜ8¸öÉý½µÂݸËͬ²½µÈ²îÔËÐУ¿£¨ÔËÐÐ״̬ÈçͼÖÐÐéÏßËùʾ£©( L7 G$ M5 r& v' `6 Z# s' `
(2)²ÉÓÃҺѹÉý½µ³ÖסÁ¦ÈçºÎ£¿Ò²¾ÍÊÇÄÜÔÚÉý½µµ½Éè¼ÆÐèÒªÆÂ±ÈµÄʱºòÄܹ»×ÔËø¡£
  _. m8 r) a4 \5 `( i; J6 \(3)Ôì¼Û´ó¸Å¶àÉÙ£¿
5 g# B5 Q0 ^2 _$ g+ j! _лл´ó¼ÒÄܰïÎÒ½â»ó¡£
5 _& d$ V! g; g6 J Image00000.jpg 9 c/ V' Z# V  S/ h
/ t; K* F7 B$ N5 V! c6 c
[ ±¾Ìû×îºóÓÉ xjjxing ÓÚ 2009-1-13 12:55 ±à¼­ ]
·¢±íÓÚ 2009-1-12 19:53:59 | ÏÔʾȫ²¿Â¥²ã À´×Ô£º ÖйúÁÉÄþ°°É½
»¹ÊÇ»úеµÄºÃһЩҺѹ²»ºÃͬ²½.
·¢±íÓÚ 2009-1-12 20:38:54 | ÏÔʾȫ²¿Â¥²ã À´×Ô£º Öйú±±¾©
¸Ð¾õҺѹµÄ»°Ã»±ØÒªÅªÕâô¶àÓ͸ף¬Ã¿±ß×î¶àÁ½¸ù¾Í¿ÉÒÔÁË$ F: p& J/ i# D9 x6 x
¶øÇÒÕâô¶àÓ͸׵Ļ°ÊµÏÖͬ²½ºÜÀ§ÄÑ¡£
·¢±íÓÚ 2009-1-13 09:31:22 | ÏÔʾȫ²¿Â¥²ã À´×Ô£º ÖйúÉϺ£
Ó͸×Ô½¶àͬ²½Ô½À§ÄÑ£¬Ôì¼ÛÒ²¾ÍÔ½¸ß£¬Èç¹ûÄÜÓÃÁ½¸ùÓ͸׵ϰÄÇ×îºÃÁË¡£
 Â¥Ö÷| ·¢±íÓÚ 2009-1-13 12:28:31 | ÏÔʾȫ²¿Â¥²ã À´×Ô£º Öйú½­ËÕÄϾ©
лл´ó¼ÒµÄ»Ø¸´£¬ÎÒ±¾ÈËÇãÏòÓÚ»úе´«¶¯£¬¿ÉÒµÖ÷˵Ïë¸Ä³ÉҺѹµÄ¡£ÒòΪ±äÐοØÖƺÜÑÏ£¨1mm£©£¬ËùÒÔÕâô³¤µÄÉ豸²ÉÓÃÁ½¸öÉý½µµãÊDz»Êµ¼ÊµÄ¡£´óÁºµÄ¸Õ¶ÈÒªºÜ´óºÜ´ó¡£×ÔÖØÒ²ÒªÔö¼ÓºÜ¶à¡£
·¢±íÓÚ 2009-1-13 12:40:52 | ÏÔʾȫ²¿Â¥²ã À´×Ô£º Öйú½­ËÕÎÞÎý
¸öÈ˸оõ»¹ÊÇ»úеµÄºÃÒ»µã£¬ÒºÑ¹¿ÉÒÔ´ïµ½ÄãµÄÒªÇ󣬵«Êdzɱ¾ºÜ¸ß¡£
 Â¥Ö÷| ·¢±íÓÚ 2009-1-13 12:54:30 | ÏÔʾȫ²¿Â¥²ã À´×Ô£º Öйú½­ËÕÄϾ©
×ۺϴó¼ÒµÄ½¨Òé¡£ÎÒÏÖÔÚ¾ö¶¨²ÉÓûúе·½Ê½ÁË£¬Ò»·½Ãæ¼òµ¥£¬ÁíÒ»·½ÃæÍ¬²½ÐԺã¬ÔÙÔòÔì¼ÛµÍ¡£Ö÷Òª·½°¸»¹ÊÇÎÒ¶¨£¬ÒµÖ÷µÄÒâ¼ûÖ»Äܲο¼¡£
·¢±íÓÚ 2009-1-13 12:55:49 | ÏÔʾȫ²¿Â¥²ã À´×Ô£º Öйú½­ËÕÎÞÎý
ÄãÕâ¸ö²»ÐèÒªÓ͸×ͬ²½µÄ,Ò²²»ÄÜͬ²½µÄ
+ b; q% h* N* W- m, t×î¿¿±ßµÄÓ͸×ÐгÌ×î´ó,ÖмäµÄÐγÉ×îС5 ]& s3 o) S4 ~% n+ `: x
Äã¿ÉÒÔ°ÑÉý½µÂݸËÄDZß×ö³É½ÂÁª½á,×ó±ß4¸öÓ͸ײ¢Áª,ÓÒ±ß4¸öÓ͸ײ¢Áª¾Í¿ÉÒÔÁË.ÕâÑùÿ¸ö¸×µÄÊä³öÁ¦ÊÇÒ»ÑùµÄ,µ«ÊÇÎ»ÒÆÊDz»Ò»ÑùµÄÕýºÃÂú×ãÂ¥Ö÷µÄÒªÇó.
" h0 @% `; |7 S' a: u4 MÒòΪÄãÄÇ8¸öµãÒ²ÆðÖ§³Å×÷ÓÃ,ËùÒÔ±ØÐë³£±£³ÖҺѹ¸×ÓÐѹÁ¦: s. I( Y3 h) D# ^% |2 E
ÓÃ2¸ö±ÈÀýÒçÁ÷·§»òÕß±ÈÀý¼õѹ·§¿ØÖÆ×óÓÒ¸÷4¸ö¸×µÄѹÁ¦.
/ w9 T2 ]" H! e: U0 |ÈçÖ÷ÁºË®Æ½Î»ÖÃʱѹÁ¦Îª10MPa ,ÈçÐèÇãб,ÔòÒÔ±ãÉèÖÃ11MPA,ÒÔ±ã9MPA¾Í¿ÉÒÔÁË,»òÕß12,8
- \7 G$ H! |& w" |1 X; @/ H: U1 Q5 n1 O; e' i2 ~' E, h
¹ØÓÚ¼Û¸ñ,È«Óùú²úµÄ10ÍòÓ¦¸Ã²î²»¶à°É,Ô­Àí²»ÊǺܸ´ÔÓ
 Â¥Ö÷| ·¢±íÓÚ 2009-1-13 13:14:11 | ÏÔʾȫ²¿Â¥²ã À´×Ô£º Öйú½­ËÕÄϾ©
лл¥ÉÏ¡£Òâ˼ָÊÇͨ¹ý²»Í¬µÄѹÁ¦À´¿ØÖÆÂݸ˵ÄÎ»ÒÆ°É¡£Éý½µ¸ËºÍÖ÷ÁºÊDz»ÄÜ×ö³É½Â½ÓµÄ¡£Ö»ÄÜ×ö³É¹ö¶¯µÄ£¬ÒòΪÂݸËÉý½µµÄʱºò£¬ÂݸËÓëÖ÷ÁºÓÐˮƽÏà¶ÔÎ»ÒÆ¡£ÒµÖ÷Ìá³ö¸Ä³ÉҺѹ¿ØÖƵÄÔ­ÒòÊǵ£Ðľ«¶È²»¹»¸ã£¬Ò²¾ÍÊÇ˵ˮ²ÛÔÚ0~300mmÖ®ÄÚ£¬ÄÜÔÚÈÎÒâÒ»¸öÆÂ¶Èͣפ¡£ÕâÊÇÒ»¸öʵÑéÊÒµÄÊÔÑéÉ豸¡£
·¢±íÓÚ 2009-1-13 14:21:39 | ÏÔʾȫ²¿Â¥²ã À´×Ô£º Öйú½­ËÕÎÞÎý
²»ÄÜ×ö³É¹ö¶¯µÄ,Èç×ö³É¹ö¶¯µÄµ±Ö÷ÁºÇãбһ¶¨½Ç¶Èʱ,»îÈû¸ËÊܵÄÍäÇúÁ¦±È½Ï´ó,²»ÀûÓÚÓ͸׵ÄÃÜ·â.) }$ h5 S) m' T/ V; y+ z3 r: [  n: {
ÓýÂÁ´Ã»ÎÊÌâµÄ,»îÈû¸Ë²àÓýÂÁ´,¸×Í·´¦Ò²ÓýÂÁª½Ó,ÒÔ¸×Í·´¦Îª»ùµãÓ͸׿ÉÒÔ×óÓÒ°Ú¶¯,ËùÒÔÂݸËÓëÖ÷ÁºÁ¬½Ó´¦ÓÐË®Æ½Î»ÒÆÃ»¹ØÏµµÄ8 o+ b3 ~$ Q" V! m% H: l, V; c
; u0 d, M) Y# y. b
ÓÃÂݸ˿ØÖƵϰÔÚÈÎÒâλÖÃͣסÇÒ¸÷Ö§µãÊÜÁ¦Òª±£Ö¤Ò»Ñù»òÕß²î±ð²»´óÄѶȱȽϴó
3 j$ E9 o. Y2 m) z- U
5 B5 B5 y1 z" n6 P- p7 ~8 EÓÃҺѹµÄ»°±£Ö¤¸÷Ö®¼äÊÜÁ¦Ò»ÑùÏà¶Ô¼òµ¥" A- J$ W( t7 a; p# }; j9 E

9 l8 h0 b  B( M( \7 Q+ r* T; G¸÷Óи÷µÄÓÅȱµã
 Â¥Ö÷| ·¢±íÓÚ 2009-1-13 15:21:46 | ÏÔʾȫ²¿Â¥²ã À´×Ô£º Öйú½­ËÕÄϾ©
ÔٴθÐл£¬ÎÒÀ´³§¼ÒÁªÏµ¡£Èç¹ûÉè¼Æ³É¹¦ÔÙÀ´»ã±¨ÏêÇé
·¢±í»Ø¸´
ÄúÐèÒªµÇ¼ºó²Å¿ÉÒÔ»ØÌû µÇ¼ | ×¢²á

±¾°æ»ý·Ö¹æÔò

Licensed Copyright © 2016-2020 http://www.3dportal.cn/ All Rights Reserved ¾© ICP±¸13008828ºÅ

СºÚÎÝ|ÊÖ»ú°æ|Archiver|ÈýÎ¬Íø ( ¾©ICP±¸2023026364ºÅ-1 )

¿ìËٻظ´ ·µ»Ø¶¥²¿ ·µ»ØÁбí