|
|

楼主 |
发表于 2009-2-24 12:42:26
|
显示全部楼层
来自: 中国云南玉溪
一位液压专家的理解,请大家讨论
下面是他的原话:
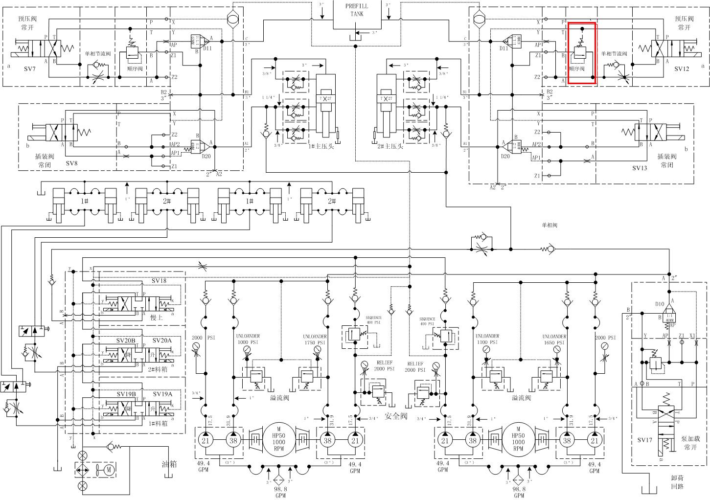
8 F0 C. j" T2 R8 J6 ~1 Y! j1 L: E经重新查阅了图纸,对该液压系统有了新的理解。, h& \" p. G$ x9 i
主油缸工作过程:SV12+、SV13+油缸下行;SV12-、SV13-油缸上行。
# ~$ ^5 M/ P3 O C我认为单向节流阀及顺序阀的作用是用来将油缸上腔压力平稳卸压的,本来使用节流阀就能卸压,但是节流阀很难调整2 S9 k6 [5 |) N
卸压过程,SV12换向时,压力就会迅速下降,插装阀D11就会迅速打开,这样势必引起油缸的强烈振动,我们以前制造的一台600吨专用压机也存在着同样的问题。该顺序阀的作用是向插装阀至节流阀这段油路补充油液,当油缸上腔压力大于顺序阀的设定值,油液将会不断补充,直至压力低于设定值为止,这样就能实现上腔压力平稳卸压了。
# N2 @% l& Z, q' a 张工不妨做个试验,将顺序阀的开启压力调的很高(等于把阀关死),油缸上行时冲击就会很大。# P: m6 X" }/ P1 C/ N, j8 Q
另外,当SV12+时,高压压力是直接作用在顺序阀的出口的,长期使用会引起该阀损坏,所以建议在该阀出口处安装单向阀。
/ _% B, [- u5 D3 g 如果顺序阀弹簧断裂,该阀进出口相通,上腔任何压力都作用在插装阀D11上,会引起该阀的不稳定,当然会引起油缸上行是的稳定性,会产生爬行、振动等现象。 |
|