QQ登录

只需一步,快速开始

登录 | 注册 | 找回密码

三维网

 找回密码
 注册

QQ登录

只需一步,快速开始

展开

通知     

全站
4天前
查看: 3396|回复: 7
收起左侧

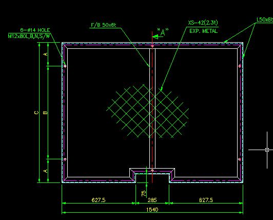
[求助] cad图纸中的XS-42(2.3t)是什么意思?

[复制链接]
发表于 2009-1-19 10:54:17 | 显示全部楼层 |阅读模式 来自: 中国山东烟台

马上注册,结识高手,享用更多资源,轻松玩转三维网社区。

您需要 登录 才可以下载或查看,没有帐号?注册

x
cad图纸中的XS-42(2.3t)是什么意思? 1.jpg QQ截图未命名.jpg
4 f) u' g" b( S* a, ^: @2 b7 ^. C( r! K1 f( q1 k: z
3.jpg
发表于 2009-1-19 11:59:24 | 显示全部楼层 来自: 中国广西河池
标准菱形钢板网' A7 a, F3 e- ~  ]$ ^
2.3t可能是指此网的重量为2300kg
* C$ b9 p* m# i$ f( ^( I& U9 @4 l! Y3 Y' R0 V& S% F& U9 W
[ 本帖最后由 2005llnn 于 2009-1-19 12:06 编辑 ]
标准菱形钢板网.jpg

评分

参与人数 1三维币 +5 收起 理由
wang2003 + 5 应助

查看全部评分

发表于 2009-1-19 12:03:55 | 显示全部楼层 来自: 中国江苏无锡
应该是2.3厚度的花纹钢板 :lol: :lol:
 楼主| 发表于 2009-1-19 13:04:43 | 显示全部楼层 来自: 中国山东烟台
谢谢2楼的  这个资料在那里找的
发表于 2009-1-19 14:03:05 | 显示全部楼层 来自: 中国浙江金华
2.3t:丝网线径断面的纵横尺寸(正方形)。
 楼主| 发表于 2009-1-19 14:12:49 | 显示全部楼层 来自: 中国山东烟台
在机械设计手册中  能找到这样的标准吗?  2楼的可以说明这个资料是那里的呢?
发表于 2009-1-22 09:16:50 | 显示全部楼层 来自: 中国广西柳州

回复 6# wzl_1014 的帖子

网上搜索而来
发表于 2009-1-22 16:11:44 | 显示全部楼层 来自: 中国上海
2楼的资料可否提供一下
发表回复
您需要登录后才可以回帖 登录 | 注册

本版积分规则

Licensed Copyright © 2016-2020 http://www.3dportal.cn/ All Rights Reserved 京 ICP备13008828号

小黑屋|手机版|Archiver|三维网 ( 京ICP备2023026364号-1 )

快速回复 返回顶部 返回列表