QQ登录

只需一步,快速开始

登录 | 注册 | 找回密码

三维网

 找回密码
 注册

QQ登录

只需一步,快速开始

展开

通知     

查看: 1286|回复: 2
收起左侧

[已解决] 请教一个标高的问题

[复制链接]
发表于 2009-1-20 13:27:27 | 显示全部楼层 |阅读模式 来自: 中国四川成都

马上注册,结识高手,享用更多资源,轻松玩转三维网社区。

您需要 登录 才可以下载或查看,没有帐号?注册

x
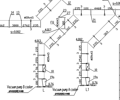
图上两个支管的标高不一样 一个是4.013,另一个是4.002,不是很懂为什么需要一个坡度了?
& A8 `' b4 R! D% q, u' J. @+ i; C
$ R' w8 U* q% Y+ [4 E; h5 g, V# Y[ 本帖最后由 shewei1979 于 2009-1-21 10:53 编辑 ]
11.jpg
发表于 2009-1-20 13:41:04 | 显示全部楼层 来自: 中国浙江宁波
管道施工时顺着介质流向有坡度主要是介质有少量水份时可以避免在低凹的部位积水进而使管道发生腐蚀,这个和管道在低凹的地方要加排凝的原理是一样的。一般来说坡度不超过0.005.2 Y, u! q; @% Z; n

; G1 v8 S; ], b4 ?; H3 Y我们公司从国外引进的工艺包都有这个要求
) q- ~' ~% E" b3 I6 i- v. O% F" h  `1 O4 @6 K7 D+ q9 a  k  ]
[ 本帖最后由 niao_csu 于 2009-1-20 13:43 编辑 ]
 楼主| 发表于 2009-1-20 15:38:42 | 显示全部楼层 来自: 中国四川成都
谢谢,解释!
发表回复
您需要登录后才可以回帖 登录 | 注册

本版积分规则


Licensed Copyright © 2016-2020 http://www.3dportal.cn/ All Rights Reserved 京 ICP备13008828号

小黑屋|手机版|Archiver|三维网 ( 京ICP备2023026364号-1 )

快速回复 返回顶部 返回列表