QQ登录

只需一步,快速开始

登录 | 注册 | 找回密码

三维网

 找回密码
 注册

QQ登录

只需一步,快速开始

展开

通知     

全站
3天前
查看: 3442|回复: 13
收起左侧

[求助] 液压站一带负载系统压力降的很大,什么原因?

[复制链接]
发表于 2009-2-6 12:42:33 | 显示全部楼层 |阅读模式 来自: 中国天津

马上注册,结识高手,享用更多资源,轻松玩转三维网社区。

您需要 登录 才可以下载或查看,没有帐号?注册

x
高手说说?# B' `  A- ]: I3 m5 r, ^
7 q! h7 ]" J" e$ [9 b+ V
[ 本帖最后由 李不言 于 2009-2-6 19:47 编辑 ]

原理图.rar

169.34 KB, 下载次数: 22

发表于 2009-2-6 13:49:54 | 显示全部楼层 来自: 中国辽宁本溪
如果泵和负载之间没有节流负载(即流量调节阀),负载压力小于泵的设定压力,才会出现这种情况。
发表于 2009-2-6 13:50:40 | 显示全部楼层 来自: 中国上海
最好能来一张原理图及说明,不然没法下手啊!
发表于 2009-2-6 14:33:08 | 显示全部楼层 来自: 中国北京
内泻??
发表于 2009-2-6 15:03:43 | 显示全部楼层 来自: 中国陕西宝鸡
不明白楼主的意思,最好能举个例子或上传张图纸。
发表于 2009-2-7 10:18:52 | 显示全部楼层 来自: 中国广东深圳
电磁溢流阀有没有问题  溢流压力为多少
发表于 2009-2-7 10:47:31 | 显示全部楼层 来自: 中国陕西汉中
可能是系统流量不够
发表于 2009-2-7 12:12:30 | 显示全部楼层 来自: 中国陕西西安
帮楼主贴泵站原理图,请楼主审查!3 s$ {/ q, q% N: R  }. L2 }9 X  R

/ J7 ~# G8 ]) b[ 本帖最后由 9619 于 2009-2-11 20:05 编辑 ]
泵站原理图.GIF

评分

参与人数 2三维币 +3 收起 理由
9619 + 2 由于的图片太大,无法浏览,我改小了,请谅
自流井 + 1 感谢贴图

查看全部评分

发表于 2009-2-7 12:20:49 | 显示全部楼层 来自: 中国陕西西安
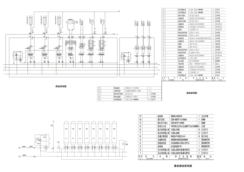
再帮楼主贴阀组原理图,请楼主审查!$ ]: B, M8 m' s7 C
  Q# C; R, K( ~  T; G2 X
[ 本帖最后由 9619 于 2009-2-11 20:00 编辑 ]
阀组原理图.GIF
发表于 2009-2-7 12:42:03 | 显示全部楼层 来自: 中国河北秦皇岛
应该是流量不够
发表于 2009-2-7 13:58:24 | 显示全部楼层 来自: 中国河南濮阳
两方面的原因值得检查一下:
& E+ J& V) x' V: z2 o0 N
% t% s+ s2 |- |# k9 d0 l1 M1、蓄能器:充气压力与系统压力不匹配(出厂时没有检查充气压力);或蓄能器没有打开(调试时忘了);或蓄能器选小了(这是一个典型的系统,选小的可能性很小)。* ]. _& E- U8 Q. L1 n: f
2、油泵电机组是“两用一备”吧,这个是定量泵系统,由于电接点压力表有个压力范围,换向阀换向时有可能压力会降到电接点压力表的最低点(如果存在下面所说的不合理性,一定会下降到最低点的)。2 V7 h8 m$ y  Z! ?9 q! r
      另:请检查一下电磁溢流阀与系统换向阀配合动作是否合理。对于定量泵系统,电磁溢流阀选用DBW20A型的好像不太合理吧。

评分

参与人数 1三维币 +5 收起 理由
qhdhcs + 5 应助

查看全部评分

 楼主| 发表于 2009-2-8 01:32:07 | 显示全部楼层 来自: 中国天津
是恒压变量泵,力士乐的!
发表于 2009-2-9 09:26:30 | 显示全部楼层 来自: 中国河南南阳
原帖由 李不言 于 2009-2-8 01:32 发表 http://www.3dportal.cn/discuz/images/common/back.gif6 o! I8 ~6 T; A3 J3 d
是恒压变量泵,力士乐的!
/ a+ Y7 y9 x5 o0 x  o: S
, k8 v9 B$ J  M. i; E0 T$ W  e
没看明细表,画在图纸上面的是定量泵。 8 v8 E( n! f. X

, Q+ S/ U" p5 l; A对于恒压变量泵系统,电磁溢流阀可以选用DBW20A型。
发表于 2009-2-11 19:40:27 | 显示全部楼层 来自: 中国安徽淮北
如果是力士乐的变量泵,原因就不难找到: 1 G9 v$ i/ h$ C$ }/ R; ~
力士乐的恒压变量泵,P-Q曲线非常陡.即使流量有很大的变化,压力变化也很小.泵的原因可以排除.
% N( N8 }2 x4 O7 ]8 d6 y还是检查一下:电磁阀的内泄,油缸的内泄吧.
发表回复
您需要登录后才可以回帖 登录 | 注册

本版积分规则

Licensed Copyright © 2016-2020 http://www.3dportal.cn/ All Rights Reserved 京 ICP备13008828号

小黑屋|手机版|Archiver|三维网 ( 京ICP备2023026364号-1 )

快速回复 返回顶部 返回列表