QQ登录

只需一步,快速开始

登录 | 注册 | 找回密码

三维网

 找回密码
 注册

QQ登录

只需一步,快速开始

展开

通知     

全站
13小时前
查看: 1348|回复: 3
收起左侧

[已答复] 大筒内壁槽的制作?

[复制链接]
发表于 2009-2-16 23:32:23 | 显示全部楼层 |阅读模式 来自: 中国河北秦皇岛

马上注册,结识高手,享用更多资源,轻松玩转三维网社区。

您需要 登录 才可以下载或查看,没有帐号?注册

x
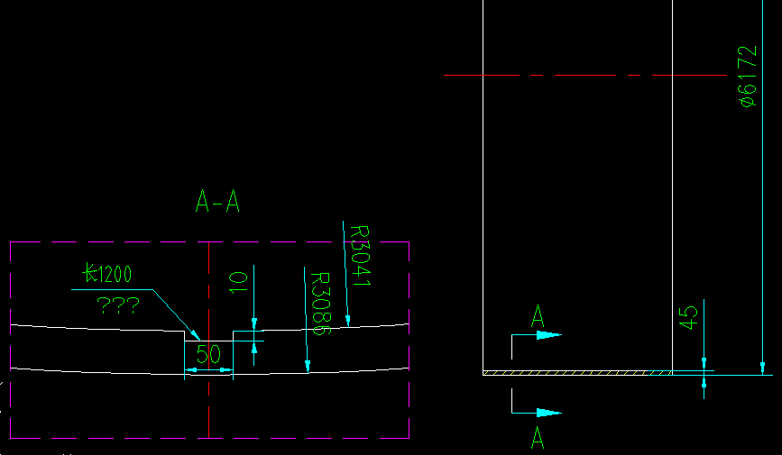
snap0002.jpg 如图有一个宽50深10长1200的槽在Φ6172的内壁,是走油脂的,应该怎么做阿?手持设备?有这样的吗?气刨+打磨?机械加工?圆太大了!同志们阿请帮忙出个主意阿!谢谢了!
发表于 2009-2-17 07:57:10 | 显示全部楼层 来自: 中国江苏常州
不知道你的∮6172的圆桶是不是单件?( P8 |+ n2 L% y+ H5 h1 ]& z
我认为如果是单件的话,可以在卷圆前在板上刨个50x10的槽,然后在卷圆,然后再调整号槽的位置后焊装。

评分

参与人数 1三维币 +2 收起 理由
天际孤帆 + 2 鼓励交流

查看全部评分

发表于 2009-2-22 23:19:29 | 显示全部楼层 来自: 中国福建泉州
直径有6172那么大,应该可以采用改装后的刨床,刨床头足以在圆筒里工作。

评分

参与人数 1三维币 +2 收起 理由
asdolmlm + 2 参与

查看全部评分

发表于 2009-2-23 08:11:47 | 显示全部楼层 来自: 中国江苏无锡
做一个简易的工装用于控制深度及宽度,你再采购一台小的台式砂轮机,在筒上安装一个导轨,就可以用砂轮对这个槽进行磨削加工,很方便的!
发表回复
您需要登录后才可以回帖 登录 | 注册

本版积分规则

Licensed Copyright © 2016-2020 http://www.3dportal.cn/ All Rights Reserved 京 ICP备13008828号

小黑屋|手机版|Archiver|三维网 ( 京ICP备2023026364号-1 )

快速回复 返回顶部 返回列表