QQ登录

只需一步,快速开始

登录 | 注册 | 找回密码

三维网

 找回密码
 注册

QQ登录

只需一步,快速开始

展开

通知     

查看: 1630|回复: 5
收起左侧

[已解决] 此螺纹标注是什么意思?

 关闭 [复制链接]
发表于 2009-2-17 14:15:22 | 显示全部楼层 |阅读模式 来自: LAN

马上注册,结识高手,享用更多资源,轻松玩转三维网社区。

您需要 登录 才可以下载或查看,没有帐号?注册

x
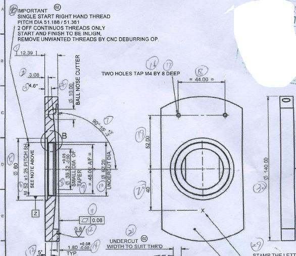
如IMPORTANT 下写的,如何理解?
ask.JPG
发表于 2009-2-17 15:16:13 | 显示全部楼层 来自: 中国陕西西安
那是右旋螺纹,螺纹底孔是图纸上说的的那么大,螺纹应光滑,无毛刺
 楼主| 发表于 2009-2-17 15:49:41 | 显示全部楼层 来自: LAN
图纸中 2 off continuos thread 具体指的是什么意思?
发表于 2009-2-17 17:51:47 | 显示全部楼层 来自: 中国浙江宁波
仅2扣连续螺纹
发表于 2009-2-17 19:05:47 | 显示全部楼层 来自: 中国江苏盐城
右旋螺纹 :lol:
 楼主| 发表于 2009-2-18 09:36:56 | 显示全部楼层 来自: LAN
我具体问了我们资深工程师,解释如下:& [. [+ {! W" I/ F5 `! y4 T
单线右旋螺纹,
* g+ a1 X8 Y, E" t% U2 P  A螺纹节径5.188/51.381  $ y) g4 f8 f6 R/ v5 h, B
仅2条连续螺纹
9 P9 b9 u7 ~; m/ y0 t: i) `9 Q螺纹起末必须在一直线上+ S! A" ^' ?9 {7 ?& Z
通过CNC 去除多余螺纹
发表回复
您需要登录后才可以回帖 登录 | 注册

本版积分规则


Licensed Copyright © 2016-2020 http://www.3dportal.cn/ All Rights Reserved 京 ICP备13008828号

小黑屋|手机版|Archiver|三维网 ( 京ICP备2023026364号-1 )

快速回复 返回顶部 返回列表