QQ登录

只需一步,快速开始

登录 | 注册 | 找回密码

三维网

 找回密码
 注册

QQ登录

只需一步,快速开始

展开

通知     

全站
7天前
查看: 2222|回复: 4
收起左侧

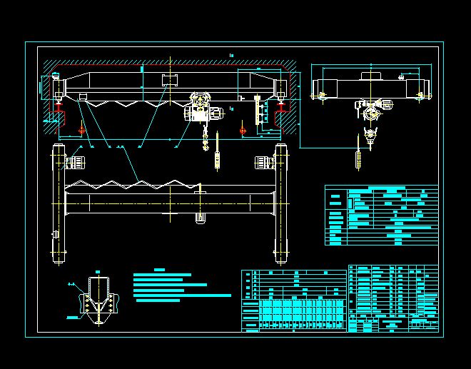
[其它] 10吨电动单梁图纸

[复制链接]
发表于 2009-2-19 11:24:43 | 显示全部楼层 |阅读模式 来自: 中国天津

马上注册,结识高手,享用更多资源,轻松玩转三维网社区。

您需要 登录 才可以下载或查看,没有帐号?注册

x
10吨电动单梁图纸
111.jpg

10吨电动单梁图纸.dwg

317.86 KB, 下载次数: 136

发表于 2009-2-19 20:19:26 | 显示全部楼层 来自: 中国北京
感谢分享!!
发表于 2009-2-28 14:14:24 | 显示全部楼层 来自: 中国北京
谢谢分享!
发表于 2009-3-1 13:54:26 | 显示全部楼层 来自: 中国湖南娄底
谢谢楼主!! :)
发表于 2010-5-3 16:54:55 | 显示全部楼层 来自: 中国广东韶关
谢谢楼主分享。
发表回复
您需要登录后才可以回帖 登录 | 注册

本版积分规则


Licensed Copyright © 2016-2020 http://www.3dportal.cn/ All Rights Reserved 京 ICP备13008828号

小黑屋|手机版|Archiver|三维网 ( 京ICP备2023026364号-1 )

快速回复 返回顶部 返回列表