QQ登录

只需一步,快速开始

登录 | 注册 | 找回密码

三维网

 找回密码
 注册

QQ登录

只需一步,快速开始

展开

通知     

全站
6天前
查看: 3610|回复: 14
收起左侧

[其它] 手动柱吊全套图纸

[复制链接]
发表于 2009-2-20 15:09:26 | 显示全部楼层 |阅读模式 来自: 中国天津

马上注册,结识高手,享用更多资源,轻松玩转三维网社区。

您需要 登录 才可以下载或查看,没有帐号?注册

x
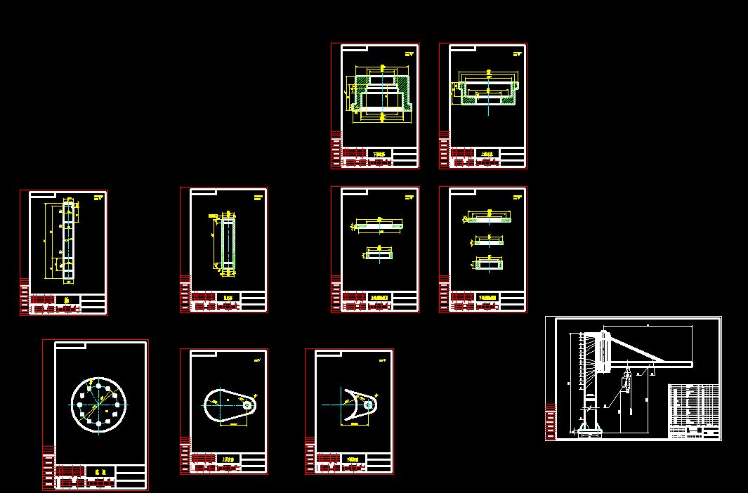
手动柱吊全套图纸
111.jpg

手动柱吊全套图纸.dwg

182.53 KB, 下载次数: 396

发表于 2009-3-1 20:03:13 | 显示全部楼层 来自: 中国辽宁鞍山
下载看看,是不是全套的,呵呵
发表于 2009-11-2 12:42:11 | 显示全部楼层 来自: 中国上海
只是结构图纸,没有起吊电机和移动电机;图纸不全;旋转的动力和限位也没有;图纸名称和装配图中明细表的名字不符合。一旦安装就很难移动,只适用一些特定场合,零件16焊接与立柱上,应力很大,最好加一筋板
发表于 2009-11-4 17:09:04 | 显示全部楼层 来自: 中国江西新余
下载下来研究一下.
发表于 2009-11-16 19:56:42 | 显示全部楼层 来自: 中国
看看喽!!!!!!!!!!!
发表于 2009-11-20 17:31:28 | 显示全部楼层 来自: 中国江苏连云港
我怎么又不能下的啊
发表于 2009-11-23 12:30:13 | 显示全部楼层 来自: 中国山东莱芜

回复 1# ifdieirid8888 的帖子

楼主你这个能转向吗?
发表于 2010-4-12 10:23:18 | 显示全部楼层 来自: 中国江苏苏州
不错,下来学习
发表于 2010-11-24 08:38:08 | 显示全部楼层 来自: 中国山东枣庄
谢谢楼主分享。
头像被屏蔽
发表于 2010-11-27 10:55:31 | 显示全部楼层 来自: 中国福建泉州
提示: 作者被禁止或删除 内容自动屏蔽
发表于 2011-8-4 18:24:20 | 显示全部楼层 来自: 中国江苏南京
看见二楼的评论,下载看看,是否合理,谢谢了
头像被屏蔽
发表于 2012-8-15 10:23:23 | 显示全部楼层 来自: 中国湖北黄冈
提示: 作者被禁止或删除 内容自动屏蔽
发表于 2012-10-27 13:35:02 | 显示全部楼层 来自: 中国陕西西安
感觉不是太合理
- G; ]- s; B5 Z% ?( w) y
发表于 2012-10-31 20:08:20 | 显示全部楼层 来自: 中国上海
下来练习练习吧
3 y9 c1 K" ]1 U/ R7 c- |6 R
发表于 2013-4-20 21:29:38 | 显示全部楼层 来自: 中国辽宁鞍山
下来学习学习,以后也许能用到。谢楼主!) E$ U5 ?+ c1 R2 ^; z9 C
  I( [( A" s0 G! B/ O" c
发表回复
您需要登录后才可以回帖 登录 | 注册

本版积分规则


Licensed Copyright © 2016-2020 http://www.3dportal.cn/ All Rights Reserved 京 ICP备13008828号

小黑屋|手机版|Archiver|三维网 ( 京ICP备2023026364号-1 )

快速回复 返回顶部 返回列表