QQ登录

只需一步,快速开始

登录 | 注册 | 找回密码

三维网

 找回密码
 注册

QQ登录

只需一步,快速开始

展开

通知     

全站
8天前
查看: 4532|回复: 20
收起左侧

[建议] 科尼图纸

[复制链接]
发表于 2009-3-3 15:12:57 | 显示全部楼层 |阅读模式 来自: 中国浙江杭州

马上注册,结识高手,享用更多资源,轻松玩转三维网社区。

您需要 登录 才可以下载或查看,没有帐号?注册

x
看看有没有你需要的

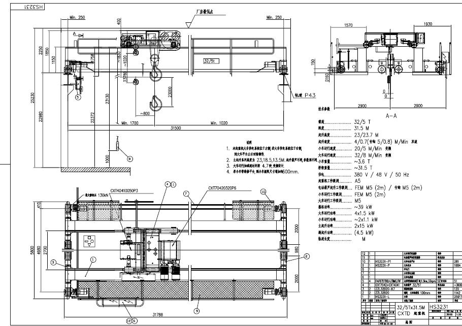
HS3231.rar

712.04 KB, 阅读权限: 1, 下载次数: 64

HS5019.rar

686.25 KB, 阅读权限: 1, 下载次数: 55

发表于 2009-3-3 22:59:48 | 显示全部楼层 来自: 中国山东潍坊
贴个图,楼主要是方便把小车也一块传上来让大家见识一下吧
1.jpg
2.jpg
3.jpg
发表于 2009-3-8 15:21:36 | 显示全部楼层 来自: 中国河北唐山
楼主有没有CAD图纸啊!
发表于 2009-3-8 15:53:10 | 显示全部楼层 来自: 中国福建泉州

回复 3# liujinqiao 的帖子

外来的图只能作为参考。自己的图纸还是需要自己设计。
发表于 2009-3-9 00:25:25 | 显示全部楼层 来自: 中国甘肃金昌
大家主要是参考一下,
发表于 2009-3-9 14:20:36 | 显示全部楼层 来自: 中国北京
楼主有没有科尼减速机的图啊?
发表于 2009-3-23 09:18:12 | 显示全部楼层 来自: 中国四川成都
光是个总图没多少用,要有部件图就更好了
发表于 2009-3-25 14:48:19 | 显示全部楼层 来自: 中国河北秦皇岛
要懂得知足啊  哈哈  知足者常乐
发表于 2009-3-25 19:21:28 | 显示全部楼层 来自: 中国河北秦皇岛
总图可以拆啊
发表于 2009-3-26 11:19:25 | 显示全部楼层 来自: 中国广东佛山
光是个总图没多少用,要有部件图就更好了
发表于 2009-5-1 17:43:31 | 显示全部楼层 来自: 中国浙江绍兴
下载学习  长个见识也好啊
发表于 2009-5-2 22:02:45 | 显示全部楼层 来自: 中国台湾
要有部件图就更好了
发表于 2009-6-10 17:17:30 | 显示全部楼层 来自: 中国河南洛阳
图纸太好了
发表于 2009-6-28 16:51:19 | 显示全部楼层 来自: 中国浙江杭州
总图可以拆 啊 呵呵 非常好啊
发表于 2009-8-13 13:53:24 | 显示全部楼层 来自: 中国北京
不错的资料,谢谢楼主
发表于 2009-8-13 22:29:13 | 显示全部楼层 来自: 中国福建厦门
多看看多学学
发表于 2009-9-13 09:14:56 | 显示全部楼层 来自: 中国山东青岛
没有小车图
发表于 2009-9-13 10:36:03 | 显示全部楼层 来自: 中国山东济南
总图都是给领导看的,我们设计员设计的都是部件图
发表于 2009-9-17 09:05:22 | 显示全部楼层 来自: 中国山东威海
能根据总图拆出零件图,就说明机械设计水平到一定层次了。
发表于 2010-7-29 09:26:34 | 显示全部楼层 来自: 中国河南洛阳
找了好久了,谢谢楼主
发表于 2010-8-18 08:05:50 | 显示全部楼层 来自: 中国安徽池州
科尼的行车我们用过不少,性价比相当好。
发表回复
您需要登录后才可以回帖 登录 | 注册

本版积分规则


Licensed Copyright © 2016-2020 http://www.3dportal.cn/ All Rights Reserved 京 ICP备13008828号

小黑屋|手机版|Archiver|三维网 ( 京ICP备2023026364号-1 )

快速回复 返回顶部 返回列表