QQ登录

只需一步,快速开始

登录 | 注册 | 找回密码

三维网

 找回密码
 注册

QQ登录

只需一步,快速开始

展开

通知     

全站
7天前
查看: 1805|回复: 1
收起左侧

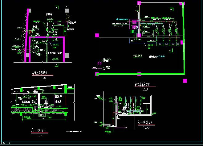
[建筑] 水泵房大样

[复制链接]
发表于 2009-3-17 14:59:37 | 显示全部楼层 |阅读模式 来自: 中国天津

马上注册,结识高手,享用更多资源,轻松玩转三维网社区。

您需要 登录 才可以下载或查看,没有帐号?注册

x
水泵房大样
1.jpg

水泵房大样.dwg

121.02 KB, 下载次数: 62

发表于 2010-11-29 21:17:39 | 显示全部楼层 来自: 中国福建厦门
学习学习# ?" e( g1 c8 r9 \  `+ a6 s  v
发表回复
您需要登录后才可以回帖 登录 | 注册

本版积分规则


Licensed Copyright © 2016-2020 http://www.3dportal.cn/ All Rights Reserved 京 ICP备13008828号

小黑屋|手机版|Archiver|三维网 ( 京ICP备2023026364号-1 )

快速回复 返回顶部 返回列表