QQ登录

只需一步,快速开始

登录 | 注册 | 找回密码

三维网

 找回密码
 注册

QQ登录

只需一步,快速开始

展开

通知     

goto3d 说: 在线网校重磅上线MC2022&Inventor2022全新课程,虞为民老师、大表哥同事精彩讲解,快去围观!
2021-06-25
查看: 2420|回复: 6
收起左侧

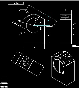
[已解决] 工程图中局部向视图怎么做??

[复制链接]
发表于 2009-3-18 08:32:34 | 显示全部楼层 |阅读模式 来自: 中国吉林长春

马上注册,结识高手,享用更多资源,轻松玩转三维网社区。

您需要 登录 才可以下载或查看,没有帐号?注册

x
整半天也没弄出来
! Y3 s( ?' T" U/ K0 O; }& [. m# G2 f  [& o
[ 本帖最后由 cailiao04136 于 2009-3-18 12:31 编辑 ]
发表于 2009-3-18 09:54:43 | 显示全部楼层 来自: 中国香港
给录了个像,结果还是只有EXE格式,没有GIF格式。
* U  L/ C! S$ e: x1 s8 ]5 M所以你只能下载来看了,具体步骤是:3 e% j; I* M4 V4 `1 I
点击视图,右键选“属性”命令,在“可见区域”标签里面选择“局部视图”,然后选取一个基准点,编制一个样条曲线圈定所在保留的部分,最后确定即可。

2.rar

681.85 KB, 下载次数: 67

评分

参与人数 1三维币 +5 收起 理由
xinyazhu + 5

查看全部评分

发表于 2009-3-18 10:40:26 | 显示全部楼层 来自: 中国北京

回复 2# zhanglili167 的帖子

局部视图的制作方法:
: c3 w# \9 A% l2 M1、生成正常的投影图) S4 U, O, p$ |% y$ q
2、在视图类型中选类型为“辅助”
" Q# A# D" O6 r' U% f: O! u2 K3、选取父项视图上的投影参照,如投影方向的轴线等! t/ O; j' C$ R4 q
4、在可见区域,视图可见性中选局部视图,按提示选参照点,定义样条边界" S& `2 k; l. O, R$ H. }
5、应用即可

评分

参与人数 1三维币 +3 收起 理由
xinyazhu + 3

查看全部评分

发表于 2009-3-18 17:36:58 | 显示全部楼层 来自: 中国浙江嘉兴

回复 3# stnle 的帖子

能否说说向视图的箭头显示问题,在破衣里有2个箭头,而我只要一个单向箭头,希望各位解决一下。。 )4*(
发表于 2009-3-18 17:43:26 | 显示全部楼层 来自: 中国浙江嘉兴

这个箭头太难看

如何改成一个箭头
1.jpg
发表于 2009-3-19 10:19:06 | 显示全部楼层 来自: 中国北京

回复 4# chuchunxiao 的帖子

拭出自带的箭头,自定义做一个就行了
发表于 2009-8-1 14:05:56 | 显示全部楼层 来自: 中国江苏徐州
虽然不是我要找的,还是谢谢:)
发表回复
您需要登录后才可以回帖 登录 | 注册

本版积分规则


Licensed Copyright © 2016-2020 http://www.3dportal.cn/ All Rights Reserved 京 ICP备13008828号

小黑屋|手机版|Archiver|三维网 ( 京ICP备2023026364号-1 )

快速回复 返回顶部 返回列表