QQ登录

只需一步,快速开始

登录 | 注册 | 找回密码

三维网

 找回密码
 注册

QQ登录

只需一步,快速开始

展开

通知     

查看: 2644|回复: 4
收起左侧

[已解决] 求助如何计算电机承载多大力

 关闭 [复制链接]
发表于 2009-3-22 09:56:19 | 显示全部楼层 |阅读模式 来自: 中国浙江温州

马上注册,结识高手,享用更多资源,轻松玩转三维网社区。

您需要 登录 才可以下载或查看,没有帐号?注册

x
求助如何计算电机承载多大力
6 \3 g, w2 \2 f1 J8 F7 l! F求助如何计算电机承载多大力?' p) w  H9 U; ]1 S/ y
2 d% ?! U& W8 W, }( L
1、电机:7.5kw 705r/min7 z- A/ }8 m& z; g1 `! H" p
硬齿面减速机速比1:53 H) K$ t. ^+ j4 R4 B. r

# p; k# b; Y- f6 ^8 z5 ]8 d6 g辊道上的重物为  7吨  。重物的长度刚刚好在三条辊道的上,  v( {; j9 h, L( A
也就是这个电机要带动7吨的重物+三条辊道自重约0.6吨+链条重+链条失效+传输实效以及其他摩擦力等' U6 o% V  A. a
$ p& h: @3 g$ L) L
请问:这样子的配制,电机吃的消吗?如何计算呢,请朋友帮忙计算下 感谢,因为在下 对计算真是一巧不通,不知道下如何下手!
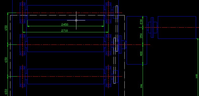
" U4 Y3 \# T, E. f* W% `5 S带动三条地辊如下面,简单图----最下面-----( d* p# g. }: O$ f4 l
; X; c8 I( z/ O" P) o4 V1 d
2、如果我把重物加到  13吨 ,电机需要大大的功率呢,转速与速比不变---如何计算呢* p0 P1 z! L5 }. j: M& b7 j$ Y
, i" Q9 O" \& {  w6 n
3、2、如果我把重物加到  17吨 ,电机需要大大的功率呢,转速与速比不变----如何计算呢
# R4 H5 H: O$ b; x
/ {& g' n, \! Z5 p* M--感谢大家!
/ m- I  c, z* R, H2 L- o9 m 2.jpg
发表于 2009-3-22 10:19:17 | 显示全部楼层 来自: 中国广东深圳
搬運物總重量 ︰W=600kg 搬送速度 ︰V=9.5m/min
8 C+ ~3 G( I% d. {8 Z* T# l鍊輪傳動效率 ︰η1=0.95
% V6 Z& C3 a6 p5 |* j6 p減速機傳動效率 ︰η2=0.9
* n- [4 f0 R2 X$ H% y7 `運轉時間 ︰8小時/日
/ i5 g/ h; p0 q; T起動次數 ︰1回/分, 均一負荷 2 M- n( R/ n0 A3 n' }' Z  X
使用電源 ︰三相200V,60Hz
6 ~5 u' l1 r6 l( C( K8 Z
 
5 h0 c0 ]5 E. `8 q7 N8 ~$ @
選 定 之 注 意 事 項# V! S8 ~% D( p3 I$ s: E
計 算 範 例$ D; k% J0 P& e. b9 L$ Q% B
6 h6 G- M1 ?$ ~8 O, a! t
 
) o( Q- R2 e9 ]" k% r$ v' Y0 R9 G. w0 U7 s: f4 C6 W6 y4 r+ s
 / X7 N2 V+ k" `% m! G. F# N, x
3 i7 r4 ]0 Z3 I
藉由必要的入力軸回轉數及出力軸回轉數來選定減速比
8 V! c$ C2 x0 ]: K7 l7 ?
  • 先求出輸送帶滾輪回轉數(N1)$ y" a9 m. J1 {5 L5 U  }
    N1=搬送速度/(滾輪直徑x π)
  • 再求出減速機出力軸回轉數(N2)  c+ B+ m2 `1 `  b3 |3 y* c0 {. Q: w
    N2=N1/鍊輪齒數減速比
  • 以3ψ,60Hz之馬達計算減速比(τ)6 k$ V3 r, n, i
    τ=出力軸回轉數/入力軸回轉數(馬達轉速N)

    6 A8 m/ W7 f* Z
 
0 W8 `1 w" A( G' w; z7 k
1.N1=V/(D x π)
- r; v9 \, [4 W# }  =9.5/(0.2x3.14)
" K! u( u; E3 c/ L4 i  z. H  =15r/min
! y' t& @2 q, l1 L1 T
2.N2=N1/i
( @5 a+ n& s- y  N; T1 u  =15/(2/1)
8 W9 f: }9 R9 u' P  W3 y5 O& H4 c  =30r/min

/ \3 l% ?8 |! ?5 g! v. ?3.τ=出力軸回轉數/入力軸回轉數, O7 ?1 |# L- P
  =30/1800; [& p2 {& w. a$ r: w  ?  o+ x4 ^
  =1/60(馬達轉速)
0 Q8 {! m9 G0 w: Q8 ^. h+ I
 
" v# ~, p$ b. f- D3 d

( B$ ]( D: ]  S; }" z+ x " l* [# V6 U3 f
( ]- F7 a% D" h0 U2 Y
決定減速比後,由使用機械之條件換算其扭力
9 U0 w0 S; A% i0 o0 j% ~% D" V* U
  • 先算出輸送帶滾輪之扭力(T1)
    6 a; T, W+ V1 `5 s; L* vT1=(μ x荷重x滾輪半徑)/η1
  • 再換算成減速機出力軸所須扭力(T2)
    ( L& e8 E& W) z, d/ _T2=(T1x鍊輪減速比) /η2

    % @8 B. I+ g6 H, ~
 2 q' v7 J% F4 r4 d/ X: i) }
1.T1=W(D/2)x(1/η1)* j7 b5 e1 i+ b9 t/ r5 e; D
  =600x(0.2/2)& s9 G2 C% F/ Y
  =60kg-m
8 K4 k0 ~7 c: A. O8 T3 x3 p
2.T2=T1x1/2x1/η2& s1 C0 D0 M, x
  =60x1/2x1/0.9: W1 f+ v8 t# d; e" g, ]
  =33.3kg-m
7 b- T8 v: j: v; d" }

3 @& |  v6 g" v1 ^' Z3 Z- T
3 K7 c" h1 t' ~
0 E( `7 e: i5 u: A' G/ i

' Z* E1 K2 i" b' [" E' e
根據運轉條件算出補正扭力(T3)4 F6 m4 ^( D9 j+ V/ d
 T3=T2x運轉條件(系數K)

- w9 o! x9 b# o2 `( x
T3=T2xK: s& Y6 d* y$ W6 E' m8 G
  =33.3x1
* Q6 b- j2 _  \2 T  =33.3kgf-m 5 i( M3 O1 p9 h' ^
1 b' m$ d- F. z9 F) ~; F3 F

1 B$ S, x0 G% J' L4 v) ~5 |1 X
最後換算成馬力(Hp)0 R7 j; ]9 g$ z* G9 J; ]8 |
 Hp=(T x N)/716.2! N) A( x4 \* Q; T5 k& G
Hp= (T x N)/716.2
' f, C% y4 n3 U  =(33.3x30)/716.2 % x& Y) \. S$ w' F6 h* {" d
  =1.39……(2HP)
2 E3 t" ~  H( _9 e8 @

评分

参与人数 1三维币 +10 收起 理由
xyzabcxyzabc + 10 应助

查看全部评分

发表于 2009-3-22 10:20:52 | 显示全部楼层 来自: 中国广东深圳
搬運物總重量 ︰W=600kg
( x/ u! x  U+ H搬送速度 ︰V=9.5m/min 9 Y5 A) b; j" p0 C6 u% M! v- Y" G+ U
與導軌之摩擦係數︰μ=0.15 . Z) c) L  S: L6 w% X5 D4 A0 h/ B
鍊輪傳動效率 ︰η1=0.95
" R1 J  H  k' O減速機傳動效率 ︰η2=0.9
0 U" D1 r  N# @7 J9 p運轉時間 ︰8小時/日 ! P! K* d$ f& s/ C% z+ k! {& u  l
起動次數 ︰1回/分, 中衝擊
  Q+ T5 o- v1 f% m- \使用電源 ︰三相200V,60Hz
3 f- k8 }2 n5 w" b* a; {$ y' H  U
 選 定 之 注 意 事 項計 算 範 例
藉由必要的入力軸回轉數及出力軸回轉數 ! h: Q7 i+ t& w1 e; t
來選定減速比
- _' l, _/ \# V; l/ i: ?6 u. Y
  • 先求出輸送帶滾輪回轉數(N1)
    / u% U) E& S) C( y! G% F) C# qN1=搬送速度/(滾輪直徑x π)
  • 再求出減速機出力軸回轉數(N2)
    ; d% I/ C4 L, Z+ E( {, _N2=N1x(鍊輪齒數/減速機齒數)
  • 以3ψ,60Hz之馬達計算減速比(τ)
    % Y/ t/ C6 p3 q1 ^6 Eτ=出力軸回轉數/入力軸回轉數(馬達轉速N)

    9 W- X" h( p8 B( K& w5 L: m
 
! z. t5 `  E7 d( J+ D+ A3 {
1.N1=V/(D x π) $ E2 |. \, I% X: k9 S$ V1 S0 |
  =9.5/(0.2x3.14)
. g+ w; ]& n* W6 K  =15r/min (rpm)
8 g5 @6 |0 V3 ]( }" Q" o' {2.N2=N1x(26/13)
" l% Y8 G! ^/ K. P! i' Q( j$ l  =15x2/1* N. b" G; z" [! N
  =30r/min (rpm)' ]: Y8 B* W+ t
3.τ=N2/N1 k; d% s1 h2 d. V' e
   =30/1800
& _2 @3 G1 I4 J  o
 =1/60(馬達轉速,Input rpm)
2 k+ Z* @, K- N0 o; `! G 
8 d8 K# v, n- o$ c; I4 P
) |( L* p* }" _8 w" G$ Q) n4 t. K
決定減速比後,由使用機械之條件換算其扭力
3 {2 x8 L- @) w$ m4 }6 {/ `
  • 先算出輸送帶滾輪之扭力(T1)
    6 K' E. _* w% p( Z% M" iT1=(μ x荷重x滾輪半徑)/η1
  • 再換算成減速機出力軸所須扭力(T2)1 H: f: u8 y% E$ ~  e" k6 D
    T2=(T1x鍊輪減速比) /η2

    / Z: {0 @! [$ m1 ?( q! ~! ~4 t
1.T1=μ x W (D/2)/η1
0 E1 X5 V0 b9 H) C$ g  =0.15x600x(0.2/2) /0.95
) h" q% W9 U" R: z/ T: ~" W3 v; Z7 d  =9.5kgf-m $ @  d% E+ ~6 u' g/ m+ P% t& B
2.T2=(T1x1/2)/η2! D+ ^! d! Q5 o3 W  S- a! s
  =(9.5x1/2)/ 0.9

2 c7 m1 Y& R5 ^0 e  =5.28kgf-m1 X0 w9 m2 p( V5 C/ j. u3 E
 9 g  D! s9 n) C0 ^
" ?% r+ P: U: D3 t  |

) x3 r. y$ E, n% r" z. M) V. J
; r# b& l) S) _. J& h
查負荷系數表
0 ^, Q* N7 a" a
T3=T2 x K, @- |1 Q  {8 Y% s. w
 =5.28x1.25
$ v& p& q; r! C# _6 ^ =6.6kgf-m

0 v! [* R1 E+ H* i 
. P/ a! U6 t* H% a% h

9 J8 _9 i) U# O' Y* p& n
最後換算成馬力(Hp)
0 A' ~- u7 g% sHp=(補正扭力x出力軸轉數)/716.2
7 L; E4 U  r, h8 r6 H$ p3 g# ]
Hp=(T3xN2)/716.28 L$ q+ t  B0 M& f
 =(6.6x35)/716.2- P* e, a) Q* y
 =0.3(1/2Hp馬達適用)

# {, U* n8 j8 m+ k9 E4 b
发表于 2009-3-22 17:45:10 | 显示全部楼层 来自: 中国湖北武汉
受教了  谢谢
发表于 2009-3-22 20:29:06 | 显示全部楼层 来自: 中国安徽芜湖
向高手学习了!
发表回复
您需要登录后才可以回帖 登录 | 注册

本版积分规则


Licensed Copyright © 2016-2020 http://www.3dportal.cn/ All Rights Reserved 京 ICP备13008828号

小黑屋|手机版|Archiver|三维网 ( 京ICP备2023026364号-1 )

快速回复 返回顶部 返回列表