QQ登录

只需一步,快速开始

登录 | 注册 | 找回密码

三维网

 找回密码
 注册

QQ登录

只需一步,快速开始

展开

通知     

查看: 2058|回复: 8
收起左侧

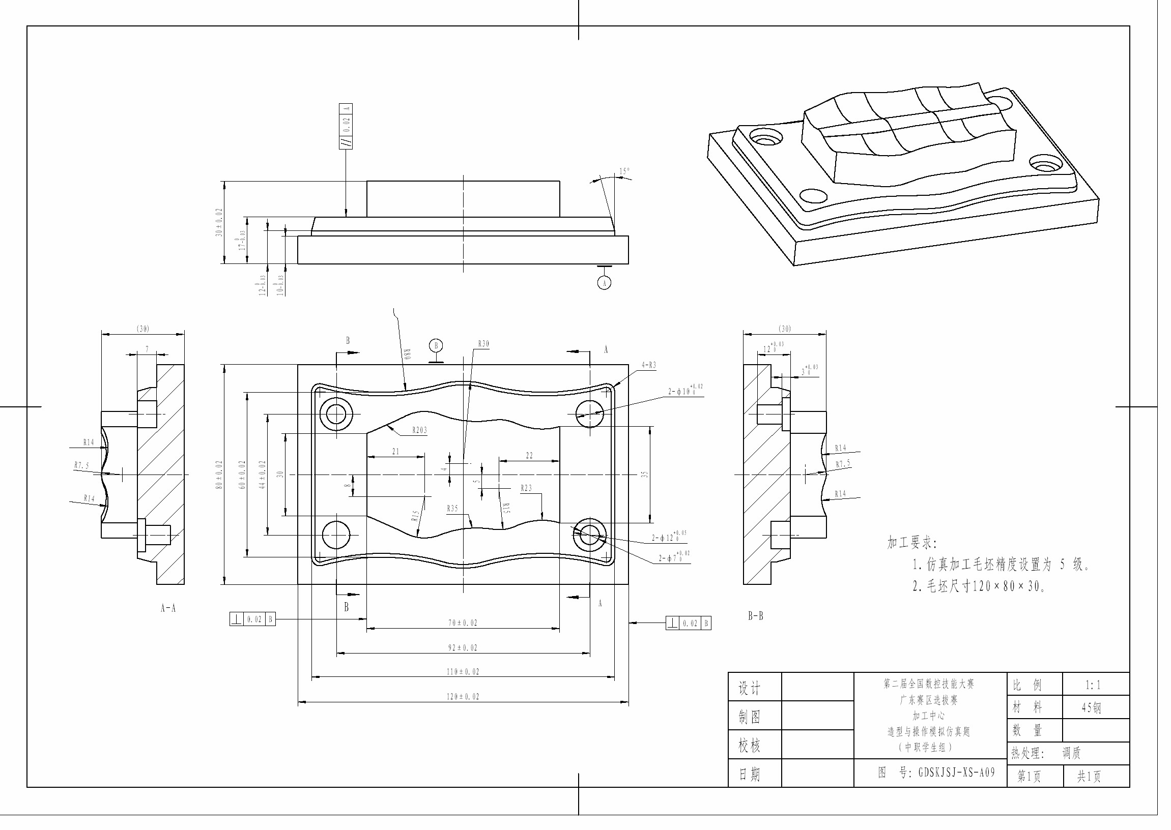
[求助] 这个图上面的曲面怎么画

[复制链接]
发表于 2009-3-22 18:57:34 | 显示全部楼层 |阅读模式 来自: 中国江苏无锡

马上注册,结识高手,享用更多资源,轻松玩转三维网社区。

您需要 登录 才可以下载或查看,没有帐号?注册

x
刚学MASTERCAM1 K9 n' P& T1 P3 Z3 `
这个图上面的曲面不会画,请教各位了# A# d" f- r0 Q2 p
练习.JPG
发表于 2009-3-22 19:51:01 | 显示全部楼层 来自: 中国广东佛山
扫描曲面就应该能做出来。
发表于 2009-3-23 10:55:56 | 显示全部楼层 来自: 中国广东广州
先扫描曲面,然后实体修整
发表于 2009-3-23 20:45:16 | 显示全部楼层 来自: 中国广东中山
个人认为用实体做就是了,前面的用拉伸可以做出来,上表面的曲面,只要画出曲线(B-B剖视图有尺寸)然后把曲线用直线封闭起来就可以切割出上表面来
 楼主| 发表于 2009-3-24 22:00:43 | 显示全部楼层 来自: 中国江苏无锡
各位能说的具体点吗,最好能有图
发表于 2009-3-25 15:22:06 | 显示全部楼层 来自: 中国广东珠海
有没图纸?
8 `0 N# _1 b5 l只要有图纸就可以了
头像被屏蔽
发表于 2009-5-3 17:30:03 | 显示全部楼层 来自: 中国贵州安顺
提示: 作者被禁止或删除 内容自动屏蔽
发表于 2009-5-3 21:29:37 | 显示全部楼层 来自: 中国台湾
图片不是很清楚.有档吗.上档比较清楚
$ r. @( v" t# d' K3 T6 |* m有时细节有影响到方式
发表于 2009-5-3 22:37:00 | 显示全部楼层 来自: 中国香港

看看

不知对不对呢

曲面.rar

39.34 KB, 下载次数: 22

发表回复
您需要登录后才可以回帖 登录 | 注册

本版积分规则


Licensed Copyright © 2016-2020 http://www.3dportal.cn/ All Rights Reserved 京 ICP备13008828号

小黑屋|手机版|Archiver|三维网 ( 京ICP备2023026364号-1 )

快速回复 返回顶部 返回列表