QQ登录

只需一步,快速开始

登录 | 注册 | 找回密码

三维网

 找回密码
 注册

QQ登录

只需一步,快速开始

展开

通知     

查看: 3040|回复: 21
收起左侧

[已解决] 大家帮忙看看这根轴的强度够不够!

 关闭 [复制链接]
发表于 2009-3-24 07:32:27 | 显示全部楼层 |阅读模式 来自: 中国浙江嘉兴

马上注册,结识高手,享用更多资源,轻松玩转三维网社区。

您需要 登录 才可以下载或查看,没有帐号?注册

x
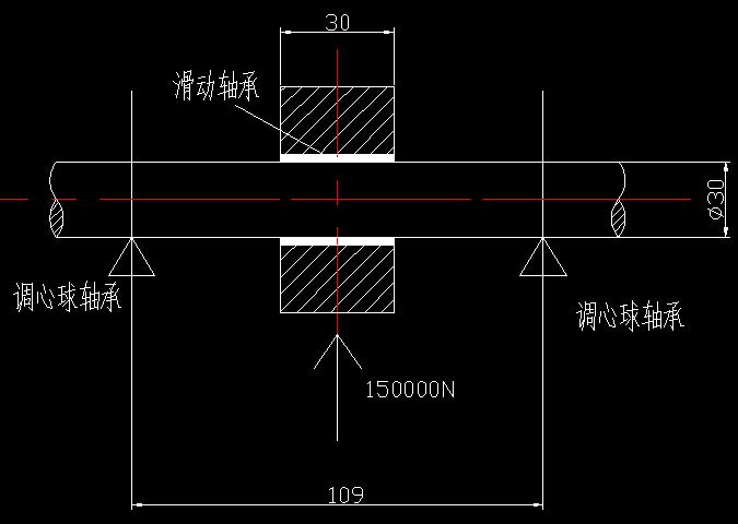
大家帮忙看看这根轴的强度够不够,谢谢啦!轴的材料为45#钢,轴的转速为21 r/min
9 X3 R' I5 i* |+ v% m; H& f5 b5 ]+ a! E: m7 u! x3 F: F' U, v
[ 本帖最后由 一丝误差 于 2009-3-24 18:10 编辑 ]
QQ截图未命名.jpg
发表于 2009-3-24 08:29:00 | 显示全部楼层 来自: 中国吉林吉林市
看看以下资料

轴设计基础.rar

160.53 KB, 下载次数: 23

发表于 2009-3-24 08:50:57 | 显示全部楼层 来自: 中国湖北武汉
这个要经过计算吧 你自己算算吧 强度校核
: S* J: a8 d5 z4 R7 R5 N; a6 ?也不排除有经验的师傅 一眼就能看出来合不合适  呵呵
发表于 2009-3-24 09:23:40 | 显示全部楼层 来自: 中国山西太原
这么细的轴要承受15吨的力!直观看就差得太多。经计算能产生5207MPa的应力!需φ110mm的轴才能正常承受负荷。' M2 [5 A( ?7 w4 K9 C
这不可能在实际中应用,不知楼的目的是什么?

评分

参与人数 1三维币 +5 收起 理由
天际孤帆 + 5 谢谢直言。

查看全部评分

发表于 2009-3-24 09:39:58 | 显示全部楼层 来自: 中国江苏苏州
轴的强度够不够是相对的  要看这根轴的使用场合了 呵呵
发表于 2009-3-24 13:22:16 | 显示全部楼层 来自: 中国湖北武汉
这个设计没什么实用意义吧,先不说轴是否够强度,轴承也不可能承受这个载荷啊

评分

参与人数 1三维币 +3 收起 理由
天际孤帆 + 3 技术讨论

查看全部评分

发表于 2009-3-24 16:27:50 | 显示全部楼层 来自: 中国浙江杭州
根据数年的设计经验一眼就可以看出来轴和轴承的强度都不够。
6 D2 N# R8 z+ \; {# }8 i
4 E2 {) }: M0 @9 n3 G[ 本帖最后由 drf1982 于 2009-3-24 16:28 编辑 ]
 楼主| 发表于 2009-3-24 18:02:08 | 显示全部楼层 来自: 中国浙江嘉兴
感谢各位的回答,之前弄错了,轴径应该是¢30的,这是最近要设计的试验机器的一部分,中间部分是一个座孔中压了一个内径¢30的滑动轴承,然后用45#钢做的¢30的轴穿过滑动轴承,下面用液压加载最高15吨的力,通过轴的回转(21r/min)与滑动轴承内表面的摩擦试验,来测该滑动轴承的性能,两端支撑轴承另外设计轴承机座。这是高载低速型的,要求试验处跳动≤0.005,同心度≤0.02,现在轴径¢30(45#),15吨的力,转速21r/min给定,(自己估算试验处的转矩大概为700Nm)。我按照机械校核感觉有点问题,请各位大大帮忙给个建议!多谢多谢!3 D- X& l% l. x% X& S! C
* N6 N  d/ u$ a; K! L
[ 本帖最后由 一丝误差 于 2009-3-24 18:06 编辑 ]
发表于 2009-3-24 19:57:45 | 显示全部楼层 来自: 中国安徽合肥
既然是测试滑动轴承的性能:0 J' _0 L) U% J9 ?
那么轴承宽度变为3MM只要加载1.5吨的力就能达到差不多的效果。6 w# f9 C( u+ B# m
轴承宽度要是变为0.3MM的话只要加载0.15吨的力就能达到差不多的效果。3 i( a  e, B3 M6 y, c) y: Y
:lol: :lol:; Z4 z! X+ Q1 B4 j
6 r9 d8 M* d. x+ \" N" D
[ 本帖最后由 tianyang 于 2009-3-24 20:02 编辑 ]
 楼主| 发表于 2009-3-24 21:22:41 | 显示全部楼层 来自: 中国浙江嘉兴

回复 9# tianyang 的帖子

有这么算的么 :L
发表于 2009-3-24 21:38:45 | 显示全部楼层 来自: 中国上海
这么低的转速,轴又这么细,油膜没法建立啊。肯定要干摩擦了。

评分

参与人数 1三维币 +3 收起 理由
天际孤帆 + 3 鼓励发言。

查看全部评分

发表于 2009-3-25 01:08:51 | 显示全部楼层 来自: 中国上海
给你帖张滑动轴承轴径尺寸与承载能力关系图。如果你想验证直径30的滑动轴承承载能力,根据图上来说顶多承重1~2吨的负荷,如果你想验证15吨的负载需要多大的轴承,至少需要轴径100以上。15吨的力加在直径30的轴上,考虑应力集中恐怕要超过1000MPa。楼上有师傅帮你算了轴径要有110。
  y  O3 @4 n9 {* Q; q( v; A. v
; ]- n9 U* V0 V1 W6 O Clip_2.jpg # ~) Y5 B, Z% A: b8 J" w

1 \( t- y, |9 W# g5 @5 a[ 本帖最后由 tigerdak 于 2009-3-25 01:28 编辑 ]

评分

参与人数 1三维币 +2 收起 理由
天际孤帆 + 2 技术讨论

查看全部评分

 楼主| 发表于 2009-3-25 19:15:32 | 显示全部楼层 来自: 中国浙江嘉兴

回复 12# tigerdak 的帖子

谢谢楼上朋友!7 V9 @! B" |* D5 B1 A* e$ @
那我要求轴的直径不变,载荷也不变,只改变两支撑轴承间的距离不知可行不?我算出来怎么两端跨距才8点多毫米啊,不知道有没有算错。。。
发表于 2009-3-25 19:53:05 | 显示全部楼层 来自: 中国上海
滑动轴承会很快坏掉。如果想试验一下会不会马上断掉,倒可以试一下,应该不会断。
 楼主| 发表于 2009-3-25 19:59:34 | 显示全部楼层 来自: 中国浙江嘉兴

回复 14# tigerdak 的帖子

哦,谢谢啦!7 T* n% A+ Y# ?4 U
滑动轴承我倒不担心,因为加了特殊材料
发表于 2009-3-25 20:23:01 | 显示全部楼层 来自: 中国四川眉山
要分析一下静强度和疲劳强度!
发表于 2009-3-25 21:22:19 | 显示全部楼层 来自: 中国上海
不会断的意思是不会马上拉断,不过由于压力过高无法形成油膜,变形也很大,轴承的磨损会很巨。你实验的目的可能并不关心这些问题,不过如果与滑动轴承寿命相关的话,还是建议你考虑一下这些因素。
+ g7 L# Q+ U! ]5 g  A5 F期待实验完成以后把一些成果供我们学习一下。! V/ Y2 S) Q# H2 {  |) D

. @' K. k/ ^. U+ e# i1 w7 {[ 本帖最后由 tigerdak 于 2009-3-27 23:05 编辑 ]
发表于 2009-3-25 22:21:34 | 显示全部楼层 来自: 中国陕西宝鸡
一看就知道不够!如果你用的是普通材料的话!
发表于 2009-3-27 22:29:35 | 显示全部楼层 来自: 中国湖南长沙
tigerdak兄弟,你那个《各类连续运行的径向轴承的承载能力与转速的关系》是在什么书上看到的。5 V: l  k' z7 C* T0 x6 [

& B4 G/ }+ o5 I/ q# |如果有能够方便给出链接么?
发表于 2009-3-27 23:02:29 | 显示全部楼层 来自: 中国上海
机械设计师手册3 D- Q8 A" W; E: y: Z
http://www.3dportal.cn/discuz/vi ... 6%CA%A6%CA%D6%B2%E1
发表于 2009-3-28 09:36:55 | 显示全部楼层 来自: 中国江苏常州
要求试验处跳动≤0.005,同心度≤0.02,现在轴径¢30(45#),15吨的力,转速21r/min给定,(
1 a, D9 a0 a6 y+ i# l--------------------------------------------------------# V$ D% u1 K% A. c3 t
轴的直径不够,4 T/ l; X. W5 G; z+ ]9 a' M
你如果光是想减少支撑距离,那不是机械设计的方法,7 Q: [- c. P: x) R' Y/ _( A) o
跳动和同轴度本来就是关联的。跳动是综合误差,你的这个不实际。

评分

参与人数 1三维币 +5 收起 理由
天际孤帆 + 5 谢谢直言。

查看全部评分

发表于 2011-4-6 11:08:05 | 显示全部楼层 来自: 中国河南郑州
关注中 学习中
发表回复
您需要登录后才可以回帖 登录 | 注册

本版积分规则


Licensed Copyright © 2016-2020 http://www.3dportal.cn/ All Rights Reserved 京 ICP备13008828号

小黑屋|手机版|Archiver|三维网 ( 京ICP备2023026364号-1 )

快速回复 返回顶部 返回列表