QQ登录

只需一步,快速开始

登录 | 注册 | 找回密码

三维网

 找回密码
 注册

QQ登录

只需一步,快速开始

展开

通知     

查看: 4239|回复: 26
收起左侧

[公告] SW2009SP2.1工程图严重问题

[复制链接]
发表于 2009-3-24 22:11:51 | 显示全部楼层 |阅读模式 来自: 中国湖北黄石

马上注册,结识高手,享用更多资源,轻松玩转三维网社区。

您需要 登录 才可以下载或查看,没有帐号?注册

x
这是本人用SW2009SP2.1时遇到的问题,不知道是我电脑的原因,还是系统的不稳定还是缺陷!
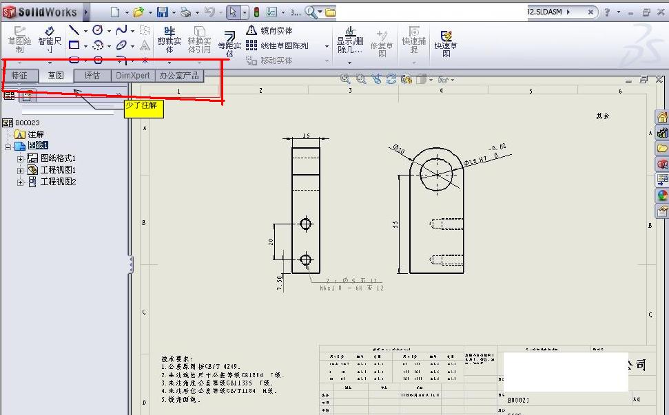
- b' @" s% o- k% s3 T  L1图是模形 1.JPG
, R' ?; [0 y  O; w8 N& n4 |2图是制作好工程图后保存 2.JPG
% v. w5 E( I) B+ h3图是回到模型中打开工程图后看到的严重问题,从新打开后没有注解了红圈标示出来了,没有注解如果要编辑的话怎么办,这个问题不是每个模型都这样有的模型打开有注解,有的没有,看大家有没有出现这个问题,还少了视图布局用右键点哪个地方也没有,要细心发现的 3.JPG + v' _6 v1 N3 M
* x+ n! G' f7 y: ^7 w& K
[ 本帖最后由 kzh168 于 2009-3-24 22:33 编辑 ]
发表于 2009-3-24 22:47:27 | 显示全部楼层 来自: 中国广东广州
你用的是升级板的.可能是升级文件出问题了
发表于 2009-3-24 23:06:56 | 显示全部楼层 来自: 中国江苏无锡
遇到过,不过这不算是严重问题,一般我手动加个注解工具条就可以了!另外不是升级问题。。
/ ?- g" \7 z% o9 n& n3 Q! J我有一个问题请帮忙,谢谢!!!!!!!!!!
' I$ T6 `# O1 }% ]8 \! Y5 h9 J, z4 G8 Y) C$ A
[ 本帖最后由 fushuixiu 于 2009-3-24 23:16 编辑 ]
未命名.jpg
发表于 2009-3-24 23:09:37 | 显示全部楼层 来自: 中国北京
这和工程图没有关系吧?这个应该是工具条的问题,你改变工具条的设置就可以避免了
 楼主| 发表于 2009-3-25 15:04:29 | 显示全部楼层 来自: 中国湖北黄石
3楼的,我在哪个地方右键点的菜单没有视图布局和注解工具条
发表于 2009-3-25 20:12:16 | 显示全部楼层 来自: 中国江苏无锡
楼主可以按下图方式做一下,另外还请各位能帮忙解决3楼CAD问题。
未命名.jpg
未命名1.jpg
 楼主| 发表于 2009-3-25 20:41:51 | 显示全部楼层 来自: 中国湖北黄石
楼上的谢谢你,但是没用,自定义没没有视图布局
发表于 2009-3-25 20:59:07 | 显示全部楼层 来自: 中国江苏无锡
楼上的请仔细核对“视图布局”栏和新加进去的“工程图”布局栏有区别吗?不要太拘泥于文字了!
未命名.jpg
未命名1.jpg
头像被屏蔽
发表于 2009-3-25 21:20:50 | 显示全部楼层 来自: 中国浙江金华
提示: 作者被禁止或删除 内容自动屏蔽
发表于 2009-3-25 21:22:27 | 显示全部楼层 来自: 中国吉林长春
程序不稳定,或者系统的关系?
 楼主| 发表于 2009-3-25 21:38:44 | 显示全部楼层 来自: 中国湖北黄石
8楼你说的方法没有视图布局呀
 楼主| 发表于 2009-3-25 21:40:06 | 显示全部楼层 来自: 中国湖北黄石
我的系统是绝对没问题的,大概是solidworks软件的原因,
 楼主| 发表于 2009-3-25 22:24:01 | 显示全部楼层 来自: 中国湖北黄石
我是笔记本使用的,不行就不买solidworks2009了,
发表于 2009-3-25 22:43:39 | 显示全部楼层 来自: 中国广西南宁
这没什么大惊小怪的,是显示的问题,在模型和工程图之间来回切换一下就好了
 楼主| 发表于 2009-3-26 00:45:47 | 显示全部楼层 来自: 中国湖北黄石
楼上的,这个问题确实严重,除非你不是搞设计的
发表于 2009-3-26 13:26:00 | 显示全部楼层 来自: 中国广西桂林
原帖由 kzh168 于 2009-3-26 00:45 发表 http://www.3dportal.cn/discuz/images/common/back.gif/ G; S6 t# `9 ~' Q
楼上的,这个问题确实严重,除非你不是搞设计的
" U6 t* q# P; O, y9 S2 i7 U6 i

# n# g* {0 R+ ~# |  |/ w1 T" a* ?
  S6 k! n4 Q: @* J撇开AutoCAD不说,我用SW就搞了10年设计了,这个问题我遇到过,这是SW2009的一个缺陷,说严重还不至于,就象平时显示器的刷新速度跟不上,在模型和工程图之间切换一次就好了,偶尔出现的问题而已,和硬件应该也是有关系的
发表于 2009-3-26 14:56:30 | 显示全部楼层 来自: 中国四川德阳
我也是用SW2009sp2.1的,从未遇到过楼主所说的问题。我觉得楼上的说得比较有道理,应该和硬件有很大的关系。即使偶然遇到,也没什么可大惊小怪的,更说不上严重,按ushuixiu的方法就可以轻易解决。如果楼主每次都是这样,那就是严重问题,不过问题不是SW2009sp2.1,而是楼主的电脑或系统有很严重的问题。不然为什么别人遇不上,偏偏都被你遇上了?
发表于 2009-3-26 14:56:37 | 显示全部楼层 来自: 中国北京
支持楼上的说法!有同感!
 楼主| 发表于 2009-3-26 15:08:27 | 显示全部楼层 来自: 中国湖北黄石
3楼和6楼不是人吗,人家也遇到了,看一下下面的连接人家也遇到了,6 c" p' t9 t! I! P
http://www.solidworksbbs.cn/View.aspx?fbId=2&Id=34432
发表于 2009-3-26 15:48:17 | 显示全部楼层 来自: 中国四川德阳

回复 3# fushuixiu 的帖子

1、可能是安装SW时不小心选中了“公用程序”,将其卸载即可。5 a' I5 t0 a. [( G; w) B6 q
2、试试在CAD目录下搜索acad.rx,用记事本打开进行编辑,删除其中与SW相关的内容。
 楼主| 发表于 2009-3-26 15:57:57 | 显示全部楼层 来自: 中国湖北黄石
CAD目录下搜索acad.rx,是怎么回事,不懂,可以贴图吗
发表于 2009-3-26 16:42:23 | 显示全部楼层 来自: 中国四川德阳

回复 21# kzh168 的帖子

在安装好的AutoCAD文件夹内搜索“acad.rx”这个文件。我们公司的网络设有防火墙,不能上传图片。如果你不使用MDT和Autocad之类的软件,这个问题对你就不重要。
 楼主| 发表于 2009-3-26 16:44:40 | 显示全部楼层 来自: 中国湖北黄石
我没使用MDT和Autocad之类的软件
发表于 2009-3-26 17:09:04 | 显示全部楼层 来自: 中国广东佛山
不错的东西
发表于 2009-3-26 21:00:11 | 显示全部楼层 来自: 中国江苏无锡
原帖由 hhyjs 于 2009-3-26 15:48 发表 http://www.3dportal.cn/discuz/images/common/back.gif
; c  G* r1 s. g. }1、可能是安装SW时不小心选中了“公用程序”,将其卸载即可。
  U9 `) w/ F2 j2、试试在CAD目录下搜索acad.rx,用记事本打开进行编辑,删除其中与SW相关的内容。
1 D2 A5 d* ?( d3 J9 T( v9 C" `

8 [, l- T: ~% j4 a谢谢你!我按你的方法已经解决了,不过我没编揖,直接删除acad.rx文件,就解决了!很高兴你的帮助,再也没有那个对话框了。。。。。。。
发表回复
您需要登录后才可以回帖 登录 | 注册

本版积分规则


Licensed Copyright © 2016-2020 http://www.3dportal.cn/ All Rights Reserved 京 ICP备13008828号

小黑屋|手机版|Archiver|三维网 ( 京ICP备2023026364号-1 )

快速回复 返回顶部 返回列表