QQ登录

只需一步,快速开始

登录 | 注册 | 找回密码

三维网

 找回密码
 注册

QQ登录

只需一步,快速开始

展开

通知     

全站
4天前
查看: 1173|回复: 0
收起左侧

[求助] 压力计算问题

[复制链接]
发表于 2009-3-29 20:43:34 | 显示全部楼层 |阅读模式 来自: 中国江苏无锡

马上注册,结识高手,享用更多资源,轻松玩转三维网社区。

您需要 登录 才可以下载或查看,没有帐号?注册

x
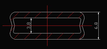
各位大侠帮忙啊!如图所示: 0.jpg 2 G9 w% d) q$ `/ O2 T0 J
次图为铝合金横截面示意图,问:假如此铝条长为20cm,从上表面对其施加压力,把中间的空隙3.8mm,压至3mm,请问各位大侠:需要多大的压力?需要选一个什么样的压力机?假如压力机的压力系统,油缸我自己组装好了,需要一个工作台(底座),请问该工作台怎么设计才合理?最好带图啊!谢谢各位了!
发表回复
您需要登录后才可以回帖 登录 | 注册

本版积分规则

Licensed Copyright © 2016-2020 http://www.3dportal.cn/ All Rights Reserved 京 ICP备13008828号

小黑屋|手机版|Archiver|三维网 ( 京ICP备2023026364号-1 )

快速回复 返回顶部 返回列表