QQ登录

只需一步,快速开始

登录 | 注册 | 找回密码

三维网

 找回密码
 注册

QQ登录

只需一步,快速开始

展开

通知     

全站
4天前
查看: 1979|回复: 4
收起左侧

[讨论] 大家来研究研究这个液压原理图

[复制链接]
发表于 2009-3-30 21:12:00 | 显示全部楼层 |阅读模式 来自: 中国上海

马上注册,结识高手,享用更多资源,轻松玩转三维网社区。

您需要 登录 才可以下载或查看,没有帐号?注册

x
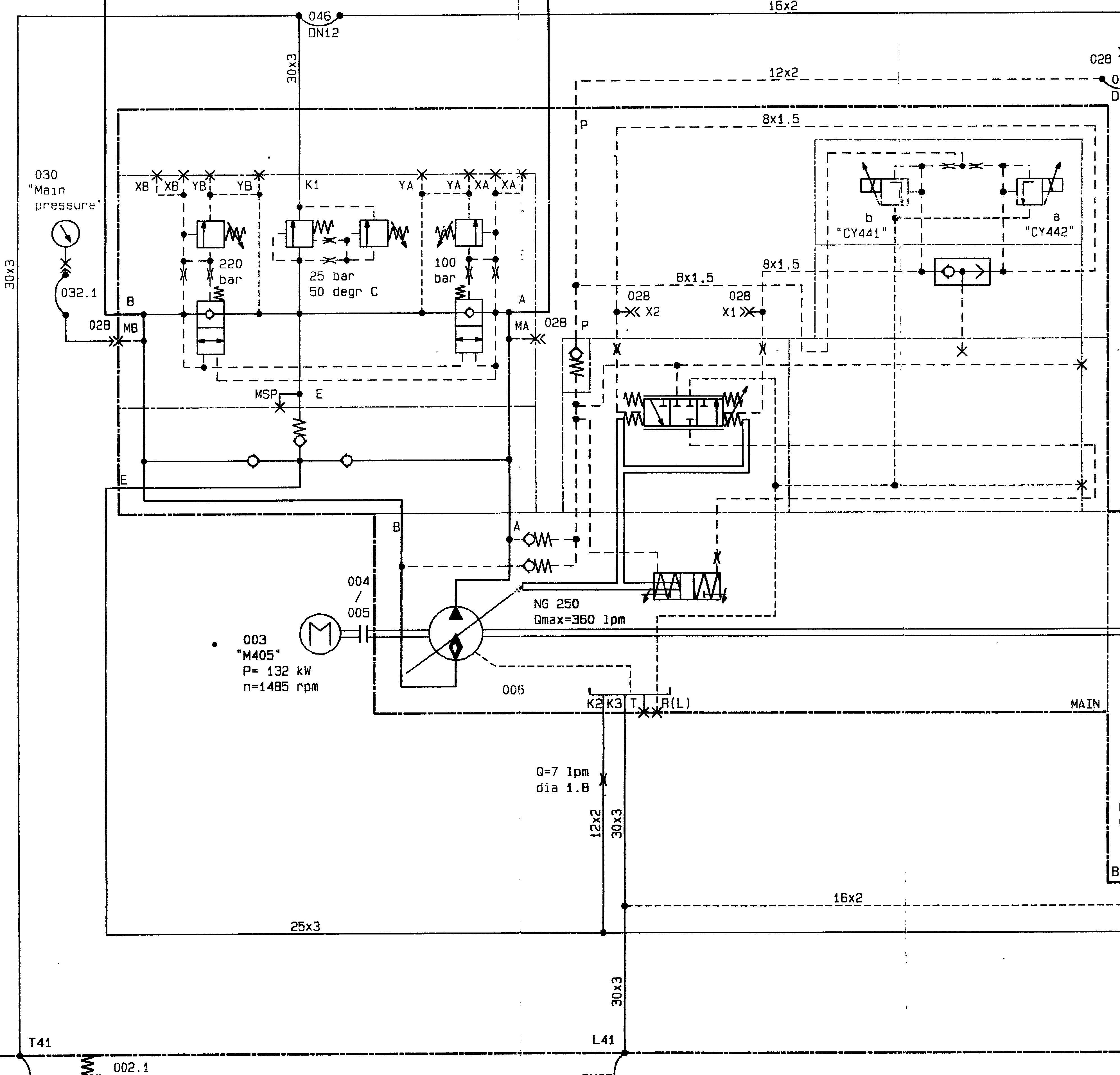
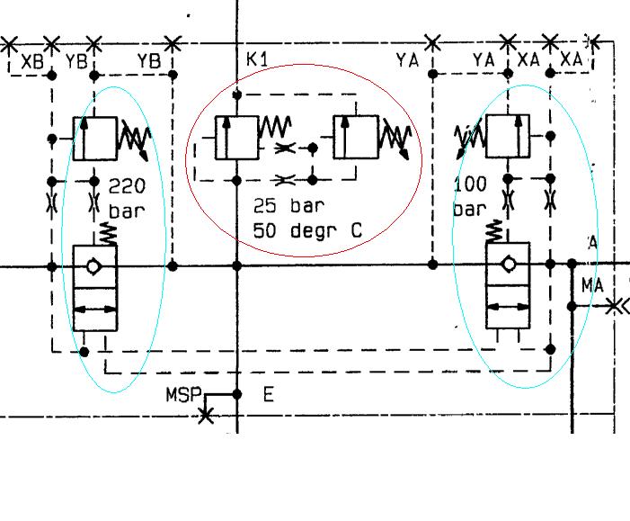
A4VSG250泵,控制方式HD1T,主回路中间的那个阀组看不懂,请教各位8 T; O* W9 B5 n% L- s
; Q  p: T; U" u, G% s
[ 本帖最后由 kevin0823 于 2009-3-30 21:45 编辑 ]
未标题-1.JPG

未标题-1.rar

161.6 KB, 下载次数: 8

发表于 2009-3-31 11:14:34 | 显示全部楼层 来自: 中国辽宁本溪
猜一下(主要是顶一下)。- R+ ]7 H: O1 ~4 M
红圈内的是补油溢流阀。
' ?, ^& V; A' V6 h3 D两个蓝圈内的应该是限压阀。) R9 l. T2 R  T. S7 w& I7 c" G
比如,右侧(泵A口)压力升高到100bar时。溢流阀溢流,下面哪个两位截止阀转为下位。A口油经截止阀,一部分经补油溢流阀回油箱。另一部分进入B口。3 W. A6 Q' \3 V$ _8 b) ~
不知楼主图的实际工况,说的不一定对。
A4VG.JPG
发表于 2009-3-31 13:40:31 | 显示全部楼层 来自: 中国广东深圳
楼上的说得对,红圈里的就是一个先导溢流阀。用来控制补油压力的。调试的时候要把Msp口拆开,调红圈右边那个弹簧,压力调好后把Msp口堵上。
 楼主| 发表于 2009-4-1 20:38:35 | 显示全部楼层 来自: 中国上海
"两个蓝圈内的应该是限压阀"   
; K" C& }" _* W限压阀是不是也可以叫高压溢流阀
0 l$ K1 n' g; E! f  \* ^5 B, r+ b右边的泵控方式谁给说一说) H+ r- F. M3 T1 A# e# W

, j# h" G7 R6 X: b. s[ 本帖最后由 kevin0823 于 2009-4-1 21:05 编辑 ]

RE95533 冲洗阀块.pdf

303.05 KB, 下载次数: 3

 楼主| 发表于 2009-4-1 21:03:38 | 显示全部楼层 来自: 中国上海

回复 2# bohaiyan 的帖子

因为是闭式系统,左右两边的阀是用于更换热油的,具体怎么工作的不是很清楚,
1 N# V. l" y% {  @+ F和力士乐冲洗阀(  RE95533 冲洗阀块) 的样本不太一样,所以不是很明白.
发表回复
您需要登录后才可以回帖 登录 | 注册

本版积分规则

Licensed Copyright © 2016-2020 http://www.3dportal.cn/ All Rights Reserved 京 ICP备13008828号

小黑屋|手机版|Archiver|三维网 ( 京ICP备2023026364号-1 )

快速回复 返回顶部 返回列表