QQ登录

只需一步,快速开始

登录 | 注册 | 找回密码

三维网

 找回密码
 注册

QQ登录

只需一步,快速开始

展开

通知     

全站
4天前
查看: 1121|回复: 3
收起左侧

[求助] 传感器降温

[复制链接]
发表于 2009-3-31 15:11:09 | 显示全部楼层 |阅读模式 来自: 中国上海

马上注册,结识高手,享用更多资源,轻松玩转三维网社区。

您需要 登录 才可以下载或查看,没有帐号?注册

x
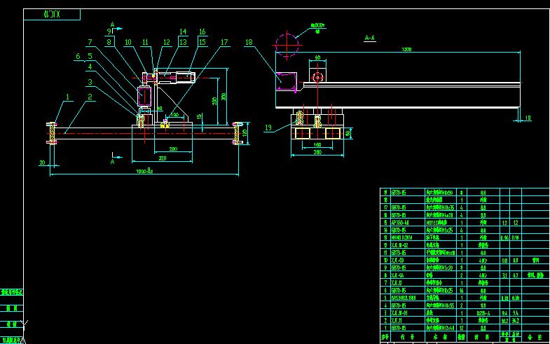
如图中所示:图中18为传感器,在工作过程中它处在600℃高温管道的下面,持续一段时间,由于传感器耐温很低,所以希望能够让它温升较小,请问有什么可行的办法
11.JPG
发表于 2009-3-31 16:06:23 | 显示全部楼层 来自: 中国湖北黄石
最好介绍详细一些。600度的高温管道里面是什么东西?传感器是用于测量什么的?周围安装环境都是什么样子的?
 楼主| 发表于 2009-4-1 08:24:53 | 显示全部楼层 来自: 中国上海
该装置是用来检测钢管的同心度并进行校正的,下面的传感器用来检测校正时被压下的相对距离
 楼主| 发表于 2009-4-1 08:29:36 | 显示全部楼层 来自: 中国上海
有人建议用隔热材料做一个两面封闭的盒子,然后气动吹气阻止气温上升
发表回复
您需要登录后才可以回帖 登录 | 注册

本版积分规则

Licensed Copyright © 2016-2020 http://www.3dportal.cn/ All Rights Reserved 京 ICP备13008828号

小黑屋|手机版|Archiver|三维网 ( 京ICP备2023026364号-1 )

快速回复 返回顶部 返回列表