QQ登录

只需一步,快速开始

登录 | 注册 | 找回密码

三维网

 找回密码
 注册

QQ登录

只需一步,快速开始

展开

通知     

全站
4天前
查看: 2153|回复: 11
收起左侧

[求助] 关于负载敏感闭式系统的一个问题?

[复制链接]
发表于 2009-4-7 10:11:49 | 显示全部楼层 |阅读模式 来自: 中国山西大同

马上注册,结识高手,享用更多资源,轻松玩转三维网社区。

您需要 登录 才可以下载或查看,没有帐号?注册

x
我的工作是掘进机维护,我公司在最近更换了一台哈威V30D-140的泵后,系统待机压力为0Mpa.以前待机压力为2Mpa[是负载敏感闭式系统],但是系统功能正常就是系统温度升的快.请问出现负载敏感闭式系统待机压力(就是开机换向阀不动,泵在转)为0的情况有那几种?为什么?最后补充说一下泵是反厂(哈威北京办事处)修复的.
发表于 2009-4-7 18:16:54 | 显示全部楼层 来自: 中国北京
可能你的泵没有修好 或调好,没有图,只是听你口头说,无法做大的判断。你要是有图可以弄上来看看,或者用手勾个简图上来。应该不是什么大的问题,解决起来也不会太难的。
发表于 2009-4-8 11:41:11 | 显示全部楼层 来自: 中国湖北十堰
请将图贴上
发表于 2009-4-10 19:54:52 | 显示全部楼层 来自: 中国北京
什么叫负载敏感闭式系统?0 A: g# p: {: ^7 K, Z
是闭中心系统吧?
发表于 2009-4-10 20:42:23 | 显示全部楼层 来自: 中国北京

回复

把你的泵图帖上吧 要不没法帮你啊
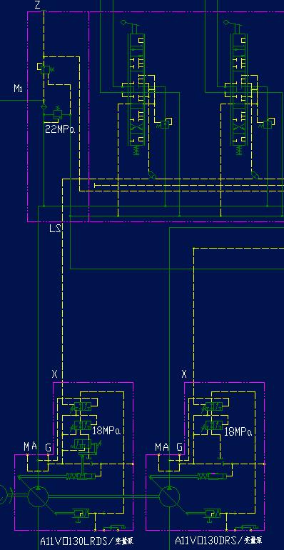
 楼主| 发表于 2009-4-11 12:14:10 | 显示全部楼层 来自: 中国山西大同
我贴上了,请大家讨论一下
未命名.jpg
发表于 2009-4-11 14:53:58 | 显示全部楼层 来自: 中国北京
你的这个是闭式泵?我没有见过这样的闭式泵,你要达到2MPA是要调一下你的螺栓,就是负载敏感的那个螺栓。看你的图,感觉你需要拆下油泵的泄油管看一下。看看泄露流量是不是满足要求。感觉象内泄过大造成的。
发表于 2009-4-12 08:58:08 | 显示全部楼层 来自: 中国河南郑州
负荷传感控制系统在无负荷时,压力最小,流量最大,在大载荷时,压力最大,流量最小,待机发热可能是回油被压太高,
 楼主| 发表于 2009-4-12 09:09:05 | 显示全部楼层 来自: 中国山西大同
原帖由 jinxialover 于 2009-4-11 14:53 发表 http://www.3dportal.cn/discuz/images/common/back.gif" d  j, {" v+ p6 E
你的这个是闭式泵?我没有见过这样的闭式泵,你要达到2MPA是要调一下你的螺栓,就是负载敏感的那个螺栓。看你的图,感觉你需要拆下油泵的泄油管看一下。看看泄露流量是不是满足要求。感觉象内泄过大造成的。

7 C( N  W. B# Q2 E2 u6 [1 Q5 s7 \你说的有道理和我想到一起了
发表于 2009-4-13 14:46:14 | 显示全部楼层 来自: 中国上海
负载敏感系统的压力是随着系统负载的压力升高而升高的,在未达到安全压力时,泵的出口压力永远是比负载压力高一个很小的定值。而泵的输出流量则是根据负载运动速度需要提供。
发表于 2009-4-14 14:56:05 | 显示全部楼层 来自: 中国江苏南京
8楼说的应该是恒功率泵。
发表于 2009-4-15 22:23:55 | 显示全部楼层 来自: 中国辽宁沈阳
好像哈威的LSN1泵控制器,流量压差调节阀的设定压力一般为14bar,泵待机压力18bar,即使泵泄露大也应该增大排量维持18bar,应该是流量压差调节阀有问题。
发表回复
您需要登录后才可以回帖 登录 | 注册

本版积分规则

Licensed Copyright © 2016-2020 http://www.3dportal.cn/ All Rights Reserved 京 ICP备13008828号

小黑屋|手机版|Archiver|三维网 ( 京ICP备2023026364号-1 )

快速回复 返回顶部 返回列表