QQ登录

只需一步,快速开始

登录 | 注册 | 找回密码

三维网

 找回密码
 注册

QQ登录

只需一步,快速开始

展开

通知     

查看: 1716|回复: 11
收起左侧

[已解决] 自动退刀的问题

[复制链接]
发表于 2009-4-8 10:57:06 | 显示全部楼层 |阅读模式 来自: 中国陕西西安

马上注册,结识高手,享用更多资源,轻松玩转三维网社区。

您需要 登录 才可以下载或查看,没有帐号?注册

x
螺纹加工怎么自动退刀啊?$ u: {; n) K6 f. Z6 u' |
怎么进行图纸标注?
! x5 {/ N2 ]9 }$ @% x0 q* F1 \0 T( I; [) d# M; f& `$ r# z" i
[ 本帖最后由 xl.zhuo 于 2009-4-16 10:17 编辑 ]
发表于 2009-4-8 11:49:37 | 显示全部楼层 来自: 中国台湾
一般增加退刀槽,或標示有效長度即可
 楼主| 发表于 2009-4-8 11:54:50 | 显示全部楼层 来自: 中国陕西西安
自动退刀退刀槽直径是小于螺纹大经的1 y5 q& I3 C" L7 ~4 g$ n* }0 S9 H0 I
好像有角度标注?
, ]: P2 e( w* {2 U  M我看不懂别人的标注$ n$ M$ {% q5 l' G* L) Z& P
上来问问?
头像被屏蔽
发表于 2009-4-8 13:58:59 | 显示全部楼层 来自: 中国辽宁丹东
提示: 作者被禁止或删除 内容自动屏蔽
发表于 2009-4-8 14:05:31 | 显示全部楼层 来自: 中国湖北十堰

回复 3# kis21 的帖子

发个图片上来,我们看看是怎么标注的。
 楼主| 发表于 2009-4-8 16:36:15 | 显示全部楼层 来自: 中国陕西西安

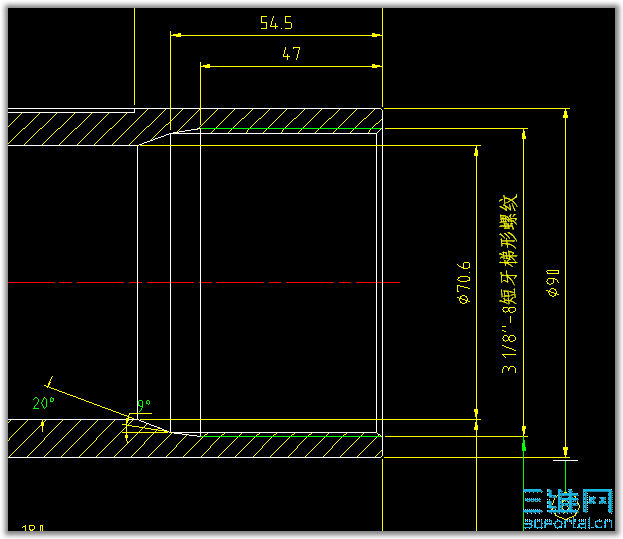
图片

发个图片大家帮忙解决问题
sshot-1.png
 楼主| 发表于 2009-4-8 16:41:55 | 显示全部楼层 来自: 中国陕西西安

回复 5# wuaimin 的帖子

图片我放在上面了% ^' v$ W0 p4 P+ x' q" y/ @
大侠帮忙看看
发表于 2009-4-8 19:13:02 | 显示全部楼层 来自: 中国上海
按楼主的图纸,普通车床好象不灵,要数控车。
发表于 2009-4-8 20:23:20 | 显示全部楼层 来自: 中国山东济南

三套方案

1.用熟练车工在普车上手动操作加工。对操作人员技术要求严,适合单件加工。
, P5 r8 D, ?/ Y6 j/ U2.在普车上设计螺纹自动退刀装置加工。设计及制作工装较复杂,适合批量加工。* ]# O( X' ?; Q! t( f
3.数控加工,操作编程简单,质量稳定。

评分

参与人数 1三维币 +2 收起 理由
xl.zhuo + 2 应助

查看全部评分

发表于 2009-4-9 20:00:50 | 显示全部楼层 来自: 中国浙江温州
同意楼上的..
* s  g) L! v- J, E, e0 L
6 C; l7 K( Z4 B7 g直接数控吧..人材毕竟难找的.
发表于 2009-4-9 20:44:14 | 显示全部楼层 来自: 中国福建泉州
原帖由 kis21 于 2009-4-8 11:54 发表 http://www.3dportal.cn/discuz/images/common/back.gif
5 ]: I( ^0 }2 m5 D自动退刀退刀槽直径是小于螺纹大经的- J; @, p1 N& V. B7 e4 t( m- k
好像有角度标注?
4 m6 U8 ^7 L# H9 p# y; e我看不懂别人的标注7 O& @! ?% c' m9 Y9 z8 y- s4 q% {
上来问问?

, ?4 }9 S: R, ~% [. `" M0 O6 I退刀退刀槽直径要小于螺纹的底径;# f  ^% y% F( o' r
没有必要有角度的标注。

评分

参与人数 1三维币 +1 收起 理由
xl.zhuo + 1 应助

查看全部评分

 楼主| 发表于 2009-4-13 12:53:41 | 显示全部楼层 来自: 中国陕西西安

回复 11# hbh0606 的帖子

你能帮我修改上面图片中的错误之处么
' V  V, g& j. k% s4 U9 T; G发个图片上来学学$ K- w* Q& g! _( R& }! g. E: b' `
谢谢大侠
发表回复
您需要登录后才可以回帖 登录 | 注册

本版积分规则


Licensed Copyright © 2016-2020 http://www.3dportal.cn/ All Rights Reserved 京 ICP备13008828号

小黑屋|手机版|Archiver|三维网 ( 京ICP备2023026364号-1 )

快速回复 返回顶部 返回列表