|
|

楼主 |
发表于 2009-4-9 09:17:49
|
显示全部楼层
来自: 中国江苏苏州
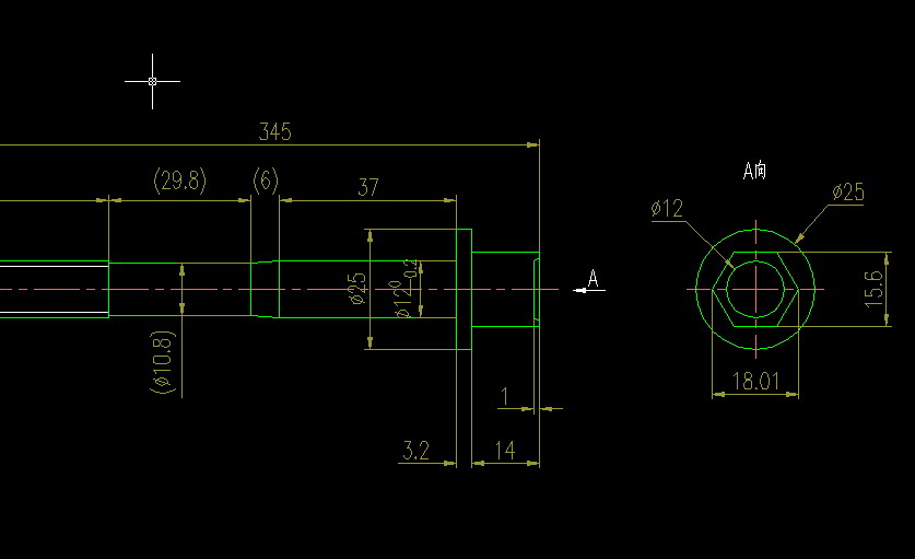
发动机上的气门芯是典型的电镦产品,特点是呈典型的蘑菇形,故在电镦机上可基本成形到位,再趁热进行模镦就可以了.7 e9 _* J' g9 w
对于要求中间镦粗的,对电镦机工艺参数的调整很重要,有电流和压力以及顶压速度的配合,出来的粗坯形状还要配合接下来的热镦模具.如丝杆,
3 r5 ~+ j, s$ b: d1 s
: S% N2 E1 F2 A; S8 e$ z5 D- p
" C2 i; e# i3 z7 E; a# ~; y9 c
现在的问题是:一次镦出六角头和法兰边没问题,但同时镦出φ12x37就存在长度不足,只能在25左右,有了解热镦工艺的能指教指教吗? |
|