QQ登录

只需一步,快速开始

登录 | 注册 | 找回密码

三维网

 找回密码
 注册

QQ登录

只需一步,快速开始

展开

通知     

全站
11天前
查看: 1410|回复: 3
收起左侧

[已解决] 关于剖视图图出现的问题

[复制链接]
发表于 2009-4-10 20:42:31 | 显示全部楼层 |阅读模式 来自: 中国

马上注册,结识高手,享用更多资源,轻松玩转三维网社区。

您需要 登录 才可以下载或查看,没有帐号?注册

x
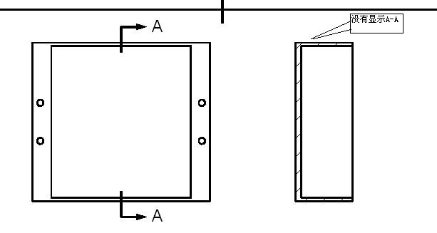
我做完剖视图后,图面上为什么没有显示A-A之类的?2 a& d; y) d7 N  \# u
9 \' E/ N7 r! g8 {
[ 本帖最后由 长弓劲弩 于 2009-4-12 09:18 编辑 ]
CAXA截图.JPG
发表于 2009-4-11 16:32:54 | 显示全部楼层 来自: 中国浙江宁波
請在破視圖上點右鍵,選屬性,裡邊有個"顯示名稱",打上鉤就好了

评分

参与人数 1三维币 +2 收起 理由
小贾师傅 + 2 应助

查看全部评分

 楼主| 发表于 2009-4-12 11:06:27 | 显示全部楼层 来自: 中国
谢谢您的指点
发表于 2009-4-13 09:52:59 | 显示全部楼层 来自: 中国湖北黄石
支持2楼的观点,同时手工输入也可以!!
发表回复
您需要登录后才可以回帖 登录 | 注册

本版积分规则


Licensed Copyright © 2016-2020 http://www.3dportal.cn/ All Rights Reserved 京 ICP备13008828号

小黑屋|手机版|Archiver|三维网 ( 京ICP备2023026364号-1 )

快速回复 返回顶部 返回列表