QQ登录

只需一步,快速开始

登录 | 注册 | 找回密码

三维网

 找回密码
 注册

QQ登录

只需一步,快速开始

展开

通知     

查看: 1453|回复: 10
收起左侧

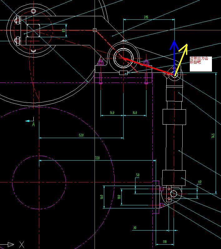
[求助] 大家来看下这个图中的液压缸,布置位置是不是正确

[复制链接]
发表于 2009-4-20 13:39:44 | 显示全部楼层 |阅读模式 来自: 中国江苏苏州

马上注册,结识高手,享用更多资源,轻松玩转三维网社区。

您需要 登录 才可以下载或查看,没有帐号?注册

x
有个疑惑,竖直放置的液压缸,是不是要在竖直方向上,倾斜个角度呢??- |! y9 q6 {8 O/ Y# A1 U$ \$ L
) r8 G0 y; j& u! E/ C2 F! _$ j
这样做的好处在哪??- |3 E( f1 |3 m' c. Y$ c# i: s
; @; H# w6 [* {
看下图。
+ _: x: O( o4 Z9 x
6 W+ A' \5 }* b) k! n9 z 1.JPG
 楼主| 发表于 2009-4-20 13:40:23 | 显示全部楼层 来自: 中国江苏苏州
还有就是,这个倾斜方向是竖直偏左,还是偏右
发表于 2009-4-20 14:59:34 | 显示全部楼层 来自: 中国浙江宁波
不用可以垂直也可以倾斜,看需要
发表于 2009-4-20 15:24:42 | 显示全部楼层 来自: 中国福建福州
从你的图上看,汽缸应该再向右会好些,这样出力会大些,从你图上看这个机构应是一个回转的机构,向右的话你的出力的角度会更接近90度这样的情况会好一点吧
发表于 2009-4-20 15:27:37 | 显示全部楼层 来自: 中国福建福州
补上之前说明的图片
20090420_2cba21aa33f8e8a0b6473C3MkwfpWEee.jpg
发表于 2009-4-20 16:16:15 | 显示全部楼层 来自: 中国河南新乡
不知旋转多大角度,到某一个位置,力矩应该是最大的
 楼主| 发表于 2009-4-20 16:21:50 | 显示全部楼层 来自: 中国江苏苏州
呵呵,,希望有更多的人,能来交流下这个问题,,
发表于 2009-4-20 16:24:19 | 显示全部楼层 来自: 中国广东深圳
不知道你需要多大的力,假如垂直放置能满足要求就不用改了.' Z) T  j  y& X+ Y/ h
需要更大的力,就要改了,尾部不动,头部向右偏.
发表于 2009-4-20 22:56:14 | 显示全部楼层 来自: 中国湖南长沙
楼上的言之有理,这是一个二力杆受力问题,向右偏合适的角度的话切向力小了,有用的径向力就大了
发表于 2009-4-21 08:58:46 | 显示全部楼层 来自: 中国安徽芜湖
5楼的正解,简单的考虑就是那样了
 楼主| 发表于 2009-4-21 14:37:39 | 显示全部楼层 来自: 中国江苏苏州
以上的解答,基本上满足我的需要了,,呵呵
6 z* X! i" Q5 m. k, s也算是抛砖引玉了。。
发表回复
您需要登录后才可以回帖 登录 | 注册

本版积分规则


Licensed Copyright © 2016-2020 http://www.3dportal.cn/ All Rights Reserved 京 ICP备13008828号

小黑屋|手机版|Archiver|三维网 ( 京ICP备2023026364号-1 )

快速回复 返回顶部 返回列表