QQ登录

只需一步,快速开始

登录 | 注册 | 找回密码

三维网

 找回密码
 注册

QQ登录

只需一步,快速开始

展开

通知     

查看: 7326|回复: 49
收起左侧

[已解决] 会看机械制图的请进

[复制链接]
发表于 2009-4-28 19:20:07 | 显示全部楼层 |阅读模式 来自: 中国广东广州

马上注册,结识高手,享用更多资源,轻松玩转三维网社区。

您需要 登录 才可以下载或查看,没有帐号?注册

x
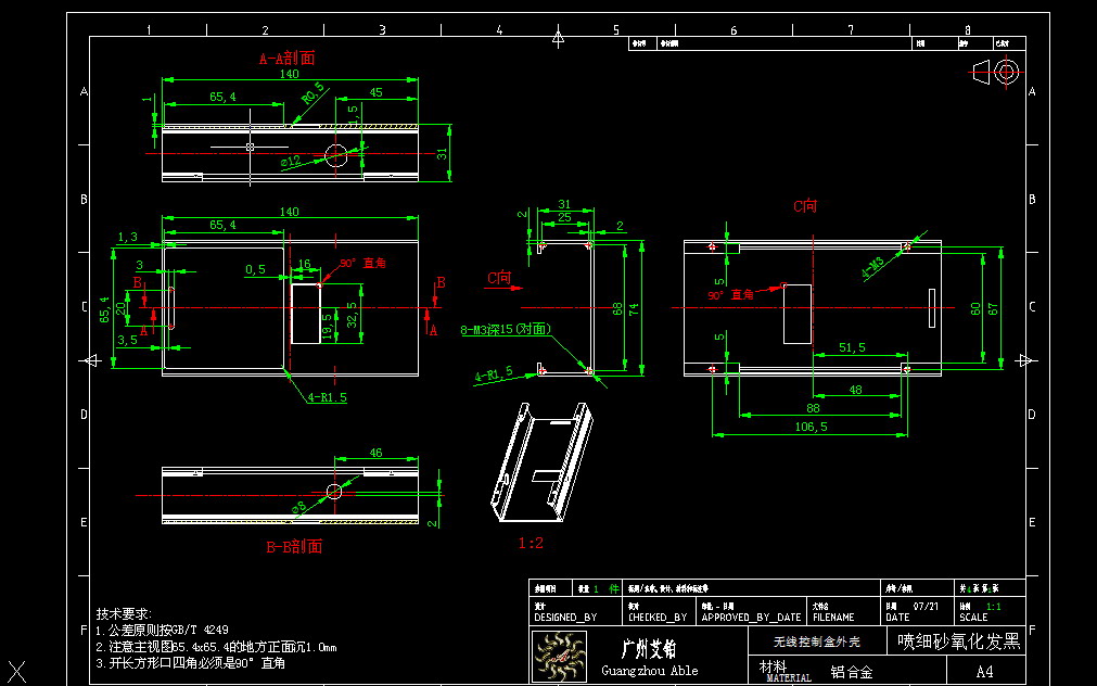
我现在很烦.设计出来的CAD图别的公司做错了;我现在被说的是一无是处.现在让CAD精英看一下这个图.∅12的孔是在主视图的上面还是下面,∅8的是在主视图的下面还是上面.就是这个孔被开错了,谢谢大家了.还有那个摭光照人家看反了;请大家截图用个箭头标一下;谢谢.
7 B5 z* b# |  S( X4 }% u看得出来;4#.8#.9#.10#.20#.21#都是精英 .不管是朝那个方向放.只要有方向标示和实线及虚线就能定位.心里就有数.
( b( i: b. M( p* m8 {$ n
$ }4 p9 w& G; k5 c[ 本帖最后由 gklklr 于 2009-4-29 18:53 编辑 ]
02.jpg
捕捉.jpg
发表于 2009-4-28 19:29:50 | 显示全部楼层 来自: 印度
有源文件吗,这样看不清楚
发表于 2009-4-28 19:34:50 | 显示全部楼层 来自: 中国江苏苏州
,楼主,你这个图是第一视角的,12mm的孔应该在主视图下面,8mm的孔应该在主视图上面,那个遮光照要表达什么意思,请你再说清楚点
发表于 2009-4-28 19:41:32 | 显示全部楼层 来自: 中国浙江台州
首先说一下我不是精英,我只凭我的经验说话,你的图纸意思是12大的孔是在上面8个大的孔是在下面,还有图低不太清楚!估计有错误的地方还请大家见谅啊!!0 u2 Q! B: H. q5 F
还有我们的制图习惯是:对一个机械零件,三视图的右视图为从左往右看,放在主视图的右面。% \* j5 u% U4 j! ^2 k

5 @5 @$ M3 C# j而西方国家的制图规则是:对零件,三视图的右视图为从右往左看,视图放在右侧;同样,底视图为从下往上看,放在主视图下面。要看清啊,否则东西会做错的!!!
; H4 n6 S# s1 f) @% P
# v2 v( Q2 A2 a2 A- h/ l区分是第三角还是第一角视图,可查看标题栏附近的一个锥台标志,一看就懂的。
. O* _$ l+ c0 L9 H% W
8 x: Q% [: b8 K3 s& K最后,如果可以的话你还是画个虚线来表示上部是12个大的还是小部是12个大的,这样加工不容易出错!: P8 x  O" F' e# z2 D/ s. c
7 S, H' u% x4 g) F
[ 本帖最后由 ljtgame 于 2009-4-28 19:47 编辑 ]
发表于 2009-4-28 19:52:18 | 显示全部楼层 来自: 中国上海
感觉楼主的公司不是外资的,也一定是涉外的,很多老外是用第三角画法的,你们公司用哪种,我不得而知,假如你们公司默认的就是第三角画法(或别人都用第三角画法),而你用第一角画法,引起了误解,那这里第一错的就是你~~~,再说第一角画法还是第三角画法的标志一般是放在标题栏里,很少见到有放在右上角的,这好象不符合制图规范。
 楼主| 发表于 2009-4-28 19:59:11 | 显示全部楼层 来自: 中国广东广州

回复 3# mymould 的帖子

你要看清楚哦;那上面和下面是剖视图哦
发表于 2009-4-28 20:05:25 | 显示全部楼层 来自: 中国江苏苏州
,楼主,你是否说的那个1.5和2的尺寸是在上面还是下面????
发表于 2009-4-28 20:05:57 | 显示全部楼层 来自: 中国安徽合肥
第一个:12孔在上,8孔在下。# d4 f" q9 F5 J* H1 _( H  D% G
第二个:开口在里面。7 }' s# L% Y: ?$ f+ a8 f8 \  |
这两张图没有任何问题!楼主放心吧。
发表于 2009-4-28 20:37:42 | 显示全部楼层 来自: 中国江苏徐州
8孔在下面,12孔在上面,不管什么标准,剖面图投影还是一样的,再说楼主把投影标记已经注明了: Q) k  L6 ?' A7 s; j
所以楼主觉得你还是有点冤枉的
3 v1 w+ s3 v; |7 F: Y1 j第二个问题你是说14的圆在哪个位置的吗?是在钣金件的左边吧3 U  M/ k4 R+ u. i
楼主这图用三维软件画的然后转到cad标的注的吗?
发表于 2009-4-28 22:01:32 | 显示全部楼层 来自: 中国浙江温州

回复 1# gklklr 的帖子

<这个图.&#8709;12的孔是在主视图的上面还是下面,&#8709;8的是在主视图的下面还是上面.就是这个孔被开错了>
9 H. g9 y9 B7 a' N% l' \3 N5 |0 m+ u, k
4-28.jpg % P" A( u1 E2 ]/ [) A* h
4-28-1.jpg ; X9 {/ [+ t/ \# X6 G3 L

; l( ?- j! |& P$ f' ~% Y- y+ t[ 本帖最后由 wtongong 于 2009-4-28 22:07 编辑 ]
发表于 2009-4-28 22:08:47 | 显示全部楼层 来自: 中国浙江金华
这样表达当然是错的.: U" i) V0 P3 n3 _5 L
错在你省略了剖切投影方向.( U, ]; w9 c( {( _" J8 I) @
我可以认为AA剖是朝下看的,BB剖是朝上看的,并经过旋转180度后放置.(这和视图放置的位置没有关系,因为有了AABB剖说明了)& [, n7 S* r, ]0 _- z& E% b
如果只有AA剖或只有BB剖,不画投影箭头的方向是不错的,但现在有两个在同一位置的剖切图.就要画方向.
6 p/ o6 I) O: D
6 B: T% X, ~5 C9 [. S  n. Z1 y9 W如果旋转那要画旋转标志或文字说明呀?没有画就说明是投影的自然对应关系吧.你一定会这样说# \! F2 k: X5 R! o. t

5 _4 X+ V' Y# ]如果我是工人,我会说,是你忘了画或者不知道.在工人面前,你是无法辩解的.8 X/ x0 ?. u: F% ?3 `5 A* a

% X2 [7 v/ p" A" n  \3 n' xPS:无论是第一角还是第三角,孔在哪个面还是在哪个面,只是视图位置放置的不同,视图名称不同而已.
; n4 i* W4 S+ J; Y. D
, l0 m3 [3 L! x: D+ `建议:
6 s0 T. H0 e: o8 ]0 [1.主视图为中间那个断面图.C向视图符号可以不要.
3 x/ o' m# O& W. h3 t9 E4 q; C7 {2.画出剖切位置符号(中心线不能当剖切符号)及投影方向.6 k, R5 B$ I) P; u/ Y* b3 C
3.表示投影关系符号标在右下标题栏内(如果只是在国内加工,只给国人看,可以省略)
# m# z7 p, y1 k1 p' @5 f: N  g- o# d+ [  ^8 X; E
但是,3 E) m% ]; c* z8 N" p- k
还有一点可以肯定的是LZ是个比较随意不严格的人.! I! d! O2 e2 P0 J
何以见得?
7 r4 b: D9 l/ O&#8709;12的孔是在主视图的上面还是下面,&#8709;8
, ], }- j3 L. u& a找了半天也没找到方孔&#8709;12,&#8709;8,后来才明白原来是园孔Φ12,Φ8, |+ j+ R/ [! d& k0 v

0 n" g* b: R  ?, R! S[ 本帖最后由 czy12 于 2009-4-28 22:16 编辑 ]
发表于 2009-4-28 22:23:51 | 显示全部楼层 来自: 中国安徽宣城
这是第三角画法的图,槽钢形钣金件,钣金件的开口是朝里放的,12孔在上,8孔在下。
发表于 2009-4-28 22:48:43 | 显示全部楼层 来自: 中国江苏无锡
投影关系比较混乱,设计全责!
发表于 2009-4-29 05:11:48 | 显示全部楼层 来自: 中国安徽合肥
原帖由 czy12 于 2009-4-28 22:08 发表 http://www.3dportal.cn/discuz/images/common/back.gif7 v+ n. s! O2 Y0 @$ D
这样表达当然是错的.
8 m) D! h5 G6 I错在你省略了剖切投影方向.
) Q& h: p8 j6 ?  q% }8 j我可以认为AA剖是朝下看的,BB剖是朝上看的,并经过旋转180度后放置.(这和视图放置的位置没有关系,因为有了AABB剖说明了)" k  h; }+ \/ a. U, b
如果只有AA剖或只有BB剖,不画投影箭头的方 ...

$ }4 N+ j2 o! E) O# c  E3 s' K, \% W
不会吧?你难道看不到剖面的投影箭头?楼主给的图表达得够清楚,画法是没有错识的。# o2 [# v* X2 [4 T' d, P
关系符号标在右上方这应该是他们本公司的模板就是如此。
发表于 2009-4-29 08:19:30 | 显示全部楼层 来自: 中国江苏徐州

回复 11# czy12 的帖子

理解能力太差, :L :L :L 你的建议我第一次听说还有这样的标准,好像大家都在谈论东,你是在谈论西,不在调上, :funk: :funk: :funk:
发表于 2009-4-29 08:29:27 | 显示全部楼层 来自: 中国湖北武汉
有源文件吗,看不清楚。
发表于 2009-4-29 08:39:56 | 显示全部楼层 来自: 中国上海
原帖由 zxb64 于 2009-4-28 22:23 发表 http://www.3dportal.cn/discuz/images/common/back.gif
6 [/ i4 O6 ?+ t8 ^这是第三角画法的图,槽钢形钣金件,钣金件的开口是朝里放的,12孔在上,8孔在下。
2 E3 }0 a6 e, l8 }- J

! `. X5 w# ?/ C0 M! e9 p% g3 z0 \7 A) t) ]: X3 L) [+ `0 p( @
图是第一角画法的图,就图纸本身而言,没什么错。关键是楼主公司用的是第几角画法,大家一直都用第三角画的,你冷不丁冒出个第一角画法的,尽管你做了标记,也会出错的,这是第一;楼主的图面布置太乱了,视图关系条理不是很清晰,让人看了费解,这是第二。
发表于 2009-4-29 08:42:55 | 显示全部楼层 来自: 中国浙江温州
不是还有一个轴侧图吗?加工的人太不专业了
发表于 2009-4-29 09:13:15 | 显示全部楼层 来自: 中国浙江金华
O,有投影方向.SR.7 `4 e( z- P1 [: |
如果给加工方的图也是这样的图,那加工方就有误了,你能肯定给加工方的图纸就是这个贴出的图吗?
4 x# p* f$ z) s0 q: |/ ~5 |, N* h( l' [! C- l* ^$ Z. f- C2 a
不过,还是要提那个建议,至于有人看得懂看不懂,那是他的事(我们不能强求他什么都懂),HAHA.
发表于 2009-4-29 09:31:29 | 显示全部楼层 来自: 中国浙江衢州
φ12孔在上、φ8孔在下。图上不是注明投影方向了吗!不管是第一、还是第三角投影按投影方向看就不会错。
1 z- y5 r5 s1 R: y. K# |5 s: _; s, ^! k, H, ]1 c2 b
[ 本帖最后由 fansigen 于 2009-4-29 09:32 编辑 ]
发表于 2009-4-29 11:53:51 | 显示全部楼层 来自: 中国安徽马鞍山
图没有错,不过容易被粗心的人看错,最好在主视图上也标注下孔的大小就容易看懂了
发表于 2009-4-29 12:17:49 | 显示全部楼层 来自: 中国内蒙古鄂尔多斯
用我们国家的机械制图来理解在上面,你的明白给那个国家做 他们的制图表达方式是上什么。要不你就会错的。
 楼主| 发表于 2009-4-29 12:35:59 | 显示全部楼层 来自: 中国广东广州

回复 7# mymould 的帖子

没错;是这样的
 楼主| 发表于 2009-4-29 12:43:07 | 显示全部楼层 来自: 中国广东广州

回复 10# wtongong 的帖子

呵呵;你绘的一点没错;就是这样的;我以前是用第三视角绘图的现在给国内绘;因为公司小就我一个人会看图.汗;图一出错老板就找我麻烦;说知道你的图好!但是我们拿出去做的也是小公司;人家员工不可能有你那么高的水平.你要制出来的图普通人都能看得懂!我现在都不知道怎么搞才能让一个普通人看懂
发表于 2009-4-29 12:53:55 | 显示全部楼层 来自: 中国台湾
圖是第一角法,剖面方式也沒錯,問題
- r2 G5 M0 t2 ^$ h8 [" G1 i是樓主幹嘛用剖面方式表達?又不是很複雜,
' @  F6 s+ f2 G- e) X. \這種畫法只會造成現場人員的困擾與錯判.....
发表回复
您需要登录后才可以回帖 登录 | 注册

本版积分规则


Licensed Copyright © 2016-2020 http://www.3dportal.cn/ All Rights Reserved 京 ICP备13008828号

小黑屋|手机版|Archiver|三维网 ( 京ICP备2023026364号-1 )

快速回复 返回顶部 返回列表