QQ登录

只需一步,快速开始

登录 | 注册 | 找回密码

三维网

 找回密码
 注册

QQ登录

只需一步,快速开始

展开

通知     

全站
3天前
查看: 2309|回复: 7
收起左侧

[已解决] 方形板的标注问题

[复制链接]
发表于 2009-5-9 20:00:32 | 显示全部楼层 |阅读模式 来自: 中国广东东莞

马上注册,结识高手,享用更多资源,轻松玩转三维网社区。

您需要 登录 才可以下载或查看,没有帐号?注册

x
现在要标注一个图,方形板,四个¢10的孔是和板中心对称的,但是中间的方形腔左右方向不对称,我是否要画竖直方向的中心线。如图1 ,2。8 Z( @! q) N) m( W

3 Y: o4 _: C' n3 i/ L, j# A[ 本帖最后由 我叫翔子 于 2009-5-9 21:55 编辑 ]
1.jpg
2.jpg
发表于 2009-5-9 20:15:32 | 显示全部楼层 来自: 中国广东汕头
可以画出。
 楼主| 发表于 2009-5-9 20:22:27 | 显示全部楼层 来自: 中国广东东莞

回复 2# 唐昕晨 的帖子

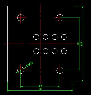
如果中间方形腔换成一组水平对称圆孔也可以么?如图
" p" ^5 i/ k8 R* ^1 h1 v
8 N3 j& f3 a  x2 U[ 本帖最后由 我叫翔子 于 2009-5-9 20:25 编辑 ]
3.jpg
发表于 2009-5-9 20:41:23 | 显示全部楼层 来自: 中国上海
建议楼主采用下面的标注方法,尽管可以把中心线画出,但看上去有点怪怪的。
 楼主| 发表于 2009-5-9 20:44:08 | 显示全部楼层 来自: 中国广东东莞

回复 4# pss0902 的帖子

如果我不画中心线可以不标4¢20水平方向的定位尺寸20么?见下图
; n5 \9 c, S' f; T" e(个人感觉虽然没有竖直中心线,但是四个孔仍然是和中心对称的)) _* ]$ ?4 q3 X# b6 @

5 @2 D3 b, l1 [6 h0 y9 u1 a3 L0 G  ^[ 本帖最后由 我叫翔子 于 2009-5-9 20:47 编辑 ]
2.jpg
发表于 2009-5-9 20:57:37 | 显示全部楼层 来自: 中国上海
原帖由 我叫翔子 于 2009-5-9 20:44 发表 http://www.3dportal.cn/discuz/images/common/back.gif
, A+ @: g# A7 j如果我不画中心线可以不标4¢20水平方向的定位尺寸20么?见下图
, ^, Q/ C- ~- f% `(个人感觉虽然没有竖直中心线,但是四个孔仍然是和中心对称的)
1 }* Y; S8 N- E' R6 a% d6 S

# P  x$ g) M' y4 N: _  Q( x
# O6 G8 v5 {, u7 A* P6 e! M) N$ v9 k不可以,20的尺寸是要标的。
 楼主| 发表于 2009-5-9 20:59:19 | 显示全部楼层 来自: 中国广东东莞

回复 6# pss0902 的帖子

多谢上面两位啊,为了这个问题,今天还跑了躺新华书店呢。。。
发表于 2009-5-10 12:57:01 | 显示全部楼层 来自: 中国江苏无锡
对于整块方形板来说,是上下、左右对称的,所以楼主将水平和竖直方向的中心线都绘出来是可以的,这并不影响方形板上其它图形的对称性,只是方形板上其它图形如果也是以中心线对称的话可以按对称的方法进行标注(如竖直中心线画出的话,四个孔可以不标孔到板边的距离20而只标孔间距60),对于不以中心线对称的图形则要详细标注出以方形板四边为基准的定位尺寸。

评分

参与人数 1三维币 +3 收起 理由
2005llnn + 3 应助

查看全部评分

发表回复
您需要登录后才可以回帖 登录 | 注册

本版积分规则

Licensed Copyright © 2016-2020 http://www.3dportal.cn/ All Rights Reserved 京 ICP备13008828号

小黑屋|手机版|Archiver|三维网 ( 京ICP备2023026364号-1 )

快速回复 返回顶部 返回列表