QQ登录

只需一步,快速开始

登录 | 注册 | 找回密码

三维网

 找回密码
 注册

QQ登录

只需一步,快速开始

展开

通知     

查看: 1310|回复: 2
收起左侧

[求助] 工程图尺寸显示问题

[复制链接]
发表于 2009-5-27 20:55:10 | 显示全部楼层 |阅读模式 来自: 中国云南昆明

马上注册,结识高手,享用更多资源,轻松玩转三维网社区。

您需要 登录 才可以下载或查看,没有帐号?注册

x
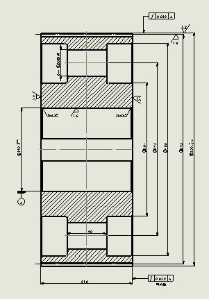
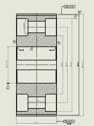
我的工程图在打开过程中尺寸显示还是正常  但在开后就变了    那位大侠知道原因  请讲解一下
未命名1.JPG
未命名.JPG
发表于 2009-5-27 21:28:45 | 显示全部楼层 来自: 中国吉林长春

模型是不改变了,重标吧

模型是不改变了,重标吧
发表于 2009-5-27 21:31:13 | 显示全部楼层 来自: 中国江苏南京
这是你修改了模型中的一些草图,至使有些参照不存在了,所以尺寸“悬空”了。这个图不是很清楚,是不是尺寸变为黄色了,若是变色了就是尺寸悬空了,即原来的尺寸参照丢失了,一般改动模型的尺寸时工程图中的尺寸会跟着相应的变动,但若是你改动了图形,(即在模型空间的草图中增加或删减了一些线条)就会出现尺寸悬空的现象。
发表回复
您需要登录后才可以回帖 登录 | 注册

本版积分规则


Licensed Copyright © 2016-2020 http://www.3dportal.cn/ All Rights Reserved 京 ICP备13008828号

小黑屋|手机版|Archiver|三维网 ( 京ICP备2023026364号-1 )

快速回复 返回顶部 返回列表