QQ登录

只需一步,快速开始

登录 | 注册 | 找回密码

三维网

 找回密码
 注册

QQ登录

只需一步,快速开始

展开

通知     

全站
6天前
查看: 1678|回复: 11
收起左侧

[求助] 气动箱

[复制链接]
发表于 2009-5-31 15:47:09 | 显示全部楼层 |阅读模式 来自: 中国上海

马上注册,结识高手,享用更多资源,轻松玩转三维网社区。

您需要 登录 才可以下载或查看,没有帐号?注册

x
请教各位:我做了一个小的阀站,由于外界工作温度等的影响,所以想将这个气动的阀站放在一个柜子内,请做过这种柜子的朋友告诉我一下怎么做,最好发个参考图
发表于 2009-5-31 16:07:07 | 显示全部楼层 来自: 中国辽宁沈阳
把技术条件说清楚一点,最好有个原理图,或一个工艺流程图.
发表于 2009-5-31 16:08:25 | 显示全部楼层 来自: 中国辽宁沈阳
还有你的执行元件的参数是多少,或流量是多少,管路通径是多大,使用温度范围是多少0 H, M! z2 [6 F: y- E, M: l

, G+ e/ u% k/ p4 Z' g$ I9 X$ Q[ 本帖最后由 zhangbo2140 于 2009-5-31 16:09 编辑 ]
发表于 2009-5-31 16:22:03 | 显示全部楼层 来自: 中国安徽马鞍山

关于气动阀台

作个柜子,阀像电气柜里的模块一样,布置.柜子只留进出口,作好柜子密封性,然后在柜子内进气管接一三同,一路到系统阀块,一路接一减压阀,减压阀的另一端暴露于柜子内,调节压力0.01到0.02Mpa,关闭柜门,使柜内形成一定的压力,对阀块形成很好的保护。关键:1,合理利用柜子空间,模块布置8 s0 m8 @8 A, a& ?' P4 J
      2,柜子要设计密封
) f! }( N0 b! J, X& @      3,柜子充气保压(旁通减压阀)
发表于 2009-5-31 16:29:57 | 显示全部楼层 来自: 中国辽宁沈阳
柜内为什么要形成一定的压力,温度范围是多少
发表于 2009-5-31 16:39:21 | 显示全部楼层 来自: 中国辽宁沈阳
你这个柜子要全密封,外接进气口(用隔臂接头密封)排气口也要外接,箱内保压要专门供气,一定要保证密封可靠,气阀选择时通径是原通径 的1.5倍,也就是大一个级别就成如通径是6现在就得是8" K: H7 P! [! d5 }8 p
还有内部安排接管要合理,美观,最好用金属管连接,注意最小弯管半径。因排气通过密封管路直接排到箱外,所以只考虑能布置好就成了,还有吧,没想到的还有,你也想想,参考 一下了。总之能实现。没问题。9 Y& u8 z8 Z. S+ p) ~: `

1 Q: d5 [' i' G  ]1 B' m' e2 I[ 本帖最后由 zhangbo2140 于 2009-5-31 16:40 编辑 ]
 楼主| 发表于 2009-6-1 14:46:57 | 显示全部楼层 来自: 中国上海
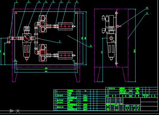
我这有一张图纸和现在的初步做的柜子的图,请各位朋友帮忙改一下
1.JPG

1.rar

116.69 KB, 下载次数: 5

发表于 2009-6-1 16:41:44 | 显示全部楼层 来自: 中国辽宁沈阳
看了你 的图,有几个问题,
  F7 z* ?9 w0 D- O4 a1箱体充气后是保护什么,怎么保护的,作用机理是什么。
  g3 l$ w5 x7 S: r( e( d! W2.箱体密封后,给一定的压力,这就相当于系统有 了背压,高压气从排气口进入系统,造成误动作,或不动作。5 s3 E5 S9 ]# W7 _
3.你的箱体的结构形式达不到你的密封要求,要IP6以上
; u+ W% `( h0 f2 ]4 g4 W4.你的密封件我没看到。
 楼主| 发表于 2009-6-2 08:45:19 | 显示全部楼层 来自: 中国上海
首先说一下,我的箱子放在一个高温物体(600度)旁边大概3米左右,箱体并不要充气,后面接的气体是接软管然后到别的地方的。箱体并不是完全密封的,只是为了保护元件不受高温。
发表于 2009-6-2 08:57:49 | 显示全部楼层 来自: 中国安徽马鞍山

关于防高温物体(600度)

如果温度很高而且持久,为什么不将阀台放远点呢?如果只能放到那里(情况相当特殊),柜子靠高温物体的一侧作个夹层,通入循环冷却水,成本应该很低,这样背对着高温物体的那一侧都不需要密封,直接敞开!
发表于 2009-6-2 10:13:01 | 显示全部楼层 来自: 中国辽宁沈阳
你这个系统正常做就成了,没有什么难度,只是接管要用金属管而且一定要用冷拉无缝钢管
 楼主| 发表于 2009-6-2 10:22:48 | 显示全部楼层 来自: 中国上海
那位朋友做过这种箱子给小弟发个图参考下
发表回复
您需要登录后才可以回帖 登录 | 注册

本版积分规则

Licensed Copyright © 2016-2020 http://www.3dportal.cn/ All Rights Reserved 京 ICP备13008828号

小黑屋|手机版|Archiver|三维网 ( 京ICP备2023026364号-1 )

快速回复 返回顶部 返回列表