QQ登录

只需一步,快速开始

登录 | 注册 | 找回密码

三维网

 找回密码
 注册

QQ登录

只需一步,快速开始

展开

通知     

goto3d 说: 在线网校重磅上线MC2022&Inventor2022全新课程,虞为民老师、大表哥同事精彩讲解,快去围观!
2021-06-25
查看: 7635|回复: 27
收起左侧

[已解决] Proe工程图如何标半个尺寸线的直径尺寸?

[复制链接]
发表于 2009-6-3 13:09:19 | 显示全部楼层 |阅读模式 来自: 中国陕西西安

马上注册,结识高手,享用更多资源,轻松玩转三维网社区。

您需要 登录 才可以下载或查看,没有帐号?注册

x
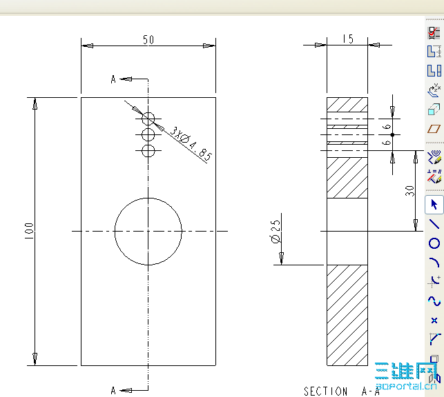
在工程图中想要标注直径尺寸,但想只保留一半多一点的尺寸线及尺寸界线,(GB样式的),不知道如何修剪成?3 O$ d7 f( l7 M# f
难道必须转到CAD里?各位有没有遇到这个情况的?
- [7 k1 m1 d* z/ b2 i* }6 w( {7 c' G

/ B2 F: z$ M( h  @1 m) F另外,几个窄尺寸标注在一块时,如何把他们中间的那个几箭头转为小圆点?: T3 L7 n! t9 _/ l" y
谢谢~
发表于 2009-6-3 16:51:48 | 显示全部楼层 来自: 中国广东广州
楼主,是这个意思吗?
1 x$ n/ K7 g9 z" B" B
3 W8 f1 [: e# x. l# u[ 本帖最后由 wz_111 于 2009-6-3 16:54 编辑 ]
ddddd.png
发表于 2009-6-3 19:19:34 | 显示全部楼层 来自: 中国山东青岛
变成小点的方法是右键击要变辑的尺寸,出现快捷菜单,选择箭头样式里面找filled dot样式。& W# Q: O$ D$ U4 @+ r
, j7 u( {0 D. ?* N
第一问题不明白楼主是什么意思,能不能传个图片?
- t& G$ Z4 J2 e' R6 p+ M: K( k* H' a% U9 q  e2 P: @
楼上的3XFI4.85的尺寸外箭头是怎么做的?我FLIPP ARROW时总是出现一个箭头,而不是两边都有的。
发表于 2009-6-3 20:09:27 | 显示全部楼层 来自: 中国广东广州
原帖由 jorming 于 2009-6-3 19:19 发表 http://www.3dportal.cn/discuz/images/common/back.gif' O$ F0 F- R& Z+ b$ l
" o. r$ Z0 g9 T/ S0 p* c

+ p1 H1 a: i0 Z; j$ V5 c5 F/ q: X9 g9 |楼上的3XFI4.85的尺寸外箭头是怎么做的?我FLIPP ARROW时总是出现一 ...

6 R4 y* x9 h1 G+ M1 w1 w
2 ^$ z- ~/ q. ~4 F. c# j反向箭头一次是一个外箭头,反向2次就是2个外箭头,3次就是。。。。。。
发表于 2009-6-3 22:23:50 | 显示全部楼层 来自: 中国陕西西安
回答你第二个问题: 另外,几个窄尺寸标注在一块时,如何把他们中间的那个几箭头转为小圆点?
* ?: L& j. j! F+ p5 H7 ~$ A& G选中箭头,右键鼠标选择箭头样式,点击实心点。注意箭头的方向与选择实心点的箭头方向!
5.gif

评分

参与人数 1三维币 +6 收起 理由
wz_111 + 6 应助

查看全部评分

发表于 2009-6-6 22:21:14 | 显示全部楼层 来自: 中国辽宁沈阳
wz_111( E4 M# U3 W' h, \
那个直径25的尺寸是怎么做出来的啊?
 楼主| 发表于 2009-6-7 11:13:31 | 显示全部楼层 来自: 中国陕西西安
谢谢二楼wz_111 及四楼ganyiwei和五楼4kpolo的朋友,正是我要的答案,非常感谢你们~
( q. |% ~. J, v9 t希望二楼能把操作过程稍详细表达一下,好像有许多新人遇到和我一样的问题。- l3 {+ J* _; k, f- X( f) Q

2 n) z  c6 ?8 U二楼标注的半个直径尺寸,如果把她移动到左边的主视图中,再怎么操作呢?
# t3 ^2 |. Y% d& |4 Q5 ?$ H如果能再做一个GIF就更好了~
% I- b/ ~7 P6 D& w2 |谢谢~
发表于 2009-6-7 19:03:23 | 显示全部楼层 来自: 中国广东广州
原帖由 xiaojunxue 于 2009-6-7 11:13 发表 http://www.3dportal.cn/discuz/images/common/back.gif5 ^  j2 c" M' X7 `8 t) D7 x

( H. g4 n% r# x3 ]二楼标注的半个直径尺寸,如果把她移动到左边的主 ...

3 d5 O6 T: S& z0 s5 r! Z) l目前应该不能解决这个问题,我的哪个是我自己乱做的
发表于 2009-6-7 19:09:04 | 显示全部楼层 来自: 中国广东广州
原帖由 wz_111 于 2009-6-7 19:03 发表 http://www.3dportal.cn/discuz/images/common/back.gif& }0 Y9 K7 W) l% E& S; G
6 I1 Z# _' }0 k8 H, n
目前应该不能解决这个问题,我的哪个是我自己乱做的

. A# U# |: j0 z
( b2 l4 q/ }' }. z9 l我说呢,怎么我就找不到那个标注命令,你是不是先show 出来再去掉一边尺寸界线呀!!
 楼主| 发表于 2009-6-9 20:04:23 | 显示全部楼层 来自: 中国陕西西安
原帖由 wz_111 于 2009-6-7 19:03 发表 http://www.3dportal.cn/discuz/images/common/back.gif
3 T* w/ Z, a$ D. Z
( Z; }3 n: P3 ?目前应该不能解决这个问题,我的哪个是我自己乱做的

! C0 w  t/ \* ~# x: |+ C: |, _+ ?
: k4 K6 t0 N  ~7 i9 D$ B* o$ \2 I哦,原来是乱做的?
/ a' F7 r5 _5 Z6 }* @6 ]现在我就是差这个半个直径n
发表于 2009-6-9 21:03:08 | 显示全部楼层 来自: 中国浙江嘉兴
值得学习,谢谢
 楼主| 发表于 2009-6-10 16:32:36 | 显示全部楼层 来自: 中国陕西西安
九楼的朋友能不能说一下你的方法,怎么修剪掉尺寸界线 ?
发表于 2009-6-11 02:01:07 | 显示全部楼层 来自: 中国广东广州
原帖由 xiaojunxue 于 2009-6-10 16:32 发表 http://www.3dportal.cn/discuz/images/common/back.gif; L0 g! C4 X; i/ N, O0 W
九楼的朋友能不能说一下你的方法,怎么修剪掉尺寸界线 ?
9 w5 e- ?& }, @& l1 i
4 f; ^3 i! W: v. u, P
满足观众要求,其实没什么实用的,忽悠下老板还是可以的,睡觉前就做点无聊事吧!
24.gif

评分

参与人数 1三维币 +6 收起 理由
wz_111 + 6 应助

查看全部评分

 楼主| 发表于 2009-6-13 19:36:26 | 显示全部楼层 来自: 中国陕西西安
今天才看到,非常感谢楼的朋友!
( ~# S" j; E6 w4 I8 P! I, }9 }这个方法不错~
发表于 2009-6-22 13:28:58 | 显示全部楼层 来自: 中国江苏徐州
谢谢2,4,5楼的答复,真是藏龙卧虎呀
头像被屏蔽
发表于 2009-6-22 16:33:28 | 显示全部楼层 来自: 中国广东广州
提示: 该帖被管理员或版主屏蔽
发表于 2009-6-22 17:04:28 | 显示全部楼层 来自: 中国云南昆明
在标注的之前,画出中心线。标注时,点击尺寸线——中心线——尺寸线,然后点击中键。就OK了!  
发表于 2009-6-22 19:42:38 | 显示全部楼层 来自: 中国浙江台州
楼主需要的是这种结果吗. z- M9 ?5 L7 J: O$ H# l. z4 k' c

4 n# B5 W) v* B+ F) d2 ]+ F. g[ 本帖最后由 chuzhaofeng2005 于 2009-6-22 19:48 编辑 ]
截图15.jpg
15.gif
16.gif
发表于 2009-6-22 20:11:26 | 显示全部楼层 来自: 中国浙江丽水
18#真是有才
发表于 2009-6-22 22:17:16 | 显示全部楼层 来自: 澳大利亚
18# 你的是什么版本?
发表于 2009-6-23 07:19:16 | 显示全部楼层 来自: 中国浙江台州

回复 20# Mrjianhuili 的帖子

我的是3.0M080
发表于 2010-6-30 15:54:17 | 显示全部楼层 来自: 中国广东东莞
学习了!+ y- u% I/ t  g2 _# m, l
感谢分享!~
发表于 2010-7-29 20:10:40 | 显示全部楼层 来自: 中国浙江嘉兴
18# chuzhaofeng2005 - M% a; i3 D: Y) s- w, c  p3 a  v
# |6 J, o9 g- w& S9 b
4 ^0 @1 V& x" R' z- u
怎么做到的..?????学习一下
发表于 2010-7-29 22:26:55 | 显示全部楼层 来自: 中国江苏徐州
不错,这样的讨论帖值得关注!
发表于 2010-8-6 16:18:17 | 显示全部楼层 来自: 中国浙江嘉兴
18# chuzhaofeng2005
1 v) K/ f6 t% @7 |2 w+ P5 L1 R7 o  @
* `" b7 {' S0 n7 t  [+ q' g
. H' P2 H* }8 A: l那个直径93   半个尺寸怎么做呢
发表回复
您需要登录后才可以回帖 登录 | 注册

本版积分规则


Licensed Copyright © 2016-2020 http://www.3dportal.cn/ All Rights Reserved 京 ICP备13008828号

小黑屋|手机版|Archiver|三维网 ( 京ICP备2023026364号-1 )

快速回复 返回顶部 返回列表