QQ登录

只需一步,快速开始

登录 | 注册 | 找回密码

三维网

 找回密码
 注册

QQ登录

只需一步,快速开始

展开

通知     

查看: 7514|回复: 31
收起左侧

[练习题] 【进阶级练习题98】

[复制链接]
发表于 2009-6-7 20:05:10 | 显示全部楼层 |阅读模式 来自: 中国上海

马上注册,结识高手,享用更多资源,轻松玩转三维网社区。

您需要 登录 才可以下载或查看,没有帐号?注册

x
【进阶级练习题98】+ ~$ u( ?/ X( ]) z3 f' @

, e0 y) w/ ^/ [1 f求:
# I) i! V. K9 K5 h* U, H9 J5 u1. a 之长度为何?
8 j  `3 I$ M  x% h8 V4 ^+ z6 [* W        a. 22.3134     b. 22.3341     c. 22.3413
' Y* ]+ s9 ~/ p) M4 o3 k7 ?- x$ Q2. b 弧之长度为何?
3 F" R: v% V; C# p4 e- p        a. 29.6114     b. 29.6141     c. 29.6411) D+ }& q4 b5 O6 N
3. c 弧之长度为何?! O/ a3 S7 t! |2 r
        a. 24.9066     b. 24.9606     c. 24.9660
- p$ |- V- Q7 X8 \4. d 弧之长度为何?4 m% j: {, M7 v
        a. 29.8668     b. 29.8686     c. 29.8866' X  K3 ~& q1 M1 D: y. E* [
5. e 弧之长度为何?
. p5 d0 w# t) M        a. 61.9016     b. 61.9160     c. 61.9601* A3 {% a2 S2 y4 T% `2 N7 f
6. ∠ACB之角度值为何?7 C! R) a7 t& V8 E( |) f
        a. 34.299°     b. 34.929°     c. 34.992°* P/ g+ b% r0 G" p0 R7 V
7. 剖面线区域之面积为何?  d" k# D( z+ h% V
        a. 303.4081     b. 303.4108     c. 303.4810
Problem98.gif

评分

参与人数 1三维币 +10 收起 理由
2005llnn + 10 提供练习,谢谢你对三维网的支持!

查看全部评分

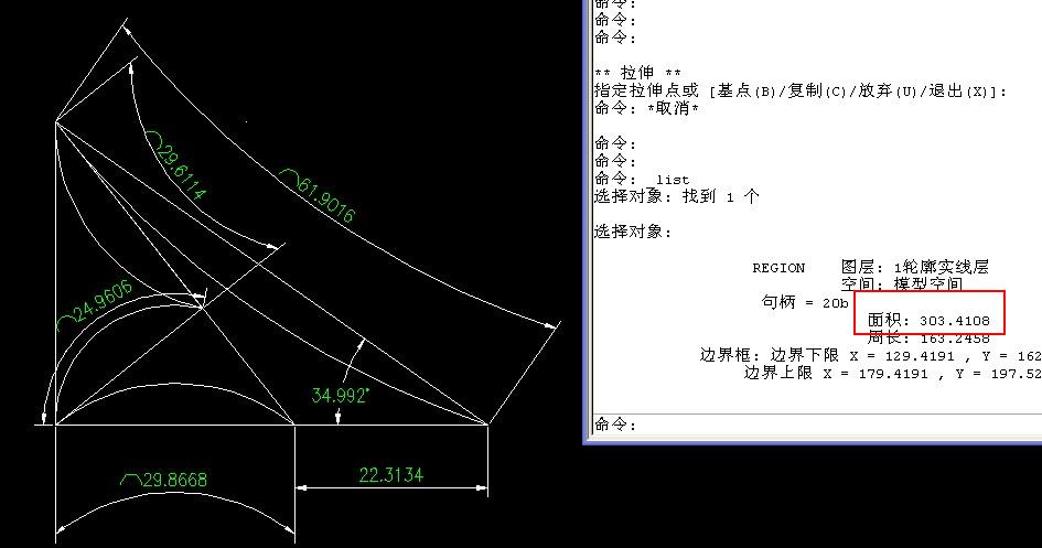
发表于 2009-6-7 21:23:03 | 显示全部楼层 来自: 中国上海
练习题98答案:+ ^! S. G1 r9 Z5 i/ x& C4 Z2 X# X
3 I  }8 b( P: Q7 Y
1. a 之长度为何?  a4 M/ p! _1 [2 h$ L
        a. 22.3134
: |) N2 l  U6 M2. b 弧之长度为何?' d9 R# n9 ?" a* M/ Z
        a. 29.6114
% q" e/ X; p% D1 d( l8 H3. c 弧之长度为何?$ z" f; a. D, V* v  E
        b. 24.9606. ]- W% j5 }0 t9 a" Z4 d8 F  h! k) y
4. d 弧之长度为何?3 x5 K- p5 K1 ^! x; w# a. l
        a. 29.86685 A* X) b+ l; i' V  s7 q( ^
5. e 弧之长度为何?
+ L. L: J" w0 P; d4 ~        a. 61.9016/ [4 g' \5 z( M! `
6. ∠ACB之角度值为何?+ K7 m2 Y' \; G/ }8 a, L4 Y  F
        c. 34.992°
2 K9 a! o& n, M6 ?3 M7. 剖面线区域之面积为何?
' v- g$ }4 B8 Z& V% y        b. 303.4108 2 U5 e& q& W0 Y/ `9 `+ [

& g& H) e; q3 _, K0 k
2 w1 ^5 j9 |4 o
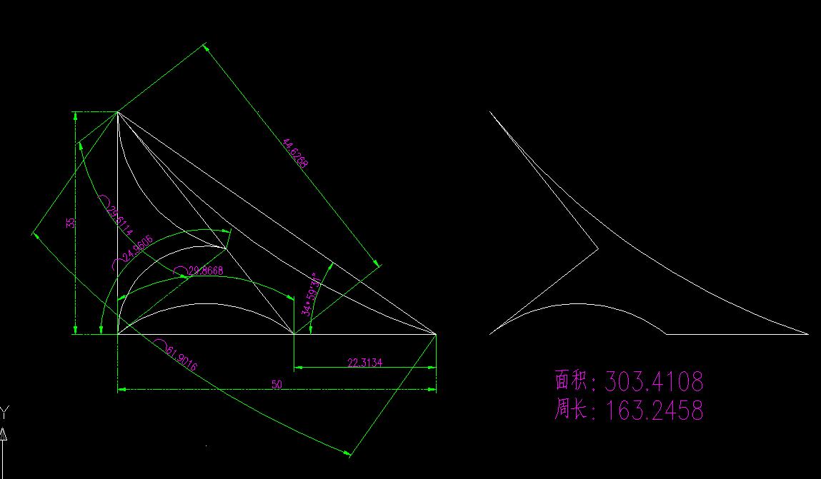
; f7 _' V- H, R7 E( }6 W  i作图方法:
5 O7 w. `  w" ?9 \% M3 g1.作三角形ABC,AB长35、BC长50;4 u1 d6 ]  k( J/ e8 ^- h
2.以C点为圆心作R5圆,交BC于P点,以P为圆心,作R10圆交AC于Q;- Z) f% A; F9 F  h
3.连接PQ,以C点为基点,比例缩放PQ→右击选参照→参照长度CQ→新长度CA;0 l8 L2 q3 q0 H1 W
4.画直线,起点B点,终点捕捉到AD的垂足E;
/ y4 d* a% r& }& Y7 H' m7 h5.三点画圆,第一点(B点)、第二点(D点)、第三点切BE,修剪;
- I9 g0 x2 M  c8 ^" [& T6.三点画圆,第一点(B点)、第二点(E点)、第三点切AB,修剪;$ O, F" b9 U+ M$ ~8 N
7.三点画圆,第一点(A点)、第二点(E点)、第三点切AB,修剪;
0 o( U: t+ q% ]4 b4 w$ f& m8.三点画圆,第一点(A点)、第二点(C点)、第三点切AD,修剪;
* s1 @# [+ {. a; }  M6 \! t9.复制圆弧AC、直线BC、直线AD、圆弧BD、直线BE,修剪,创建面域→选取对象圆弧AC、直线CD、圆弧BD、直线BE、直线AE,图案填充;
' ]# }8 ~' }8 d+ `6 o$ z' z10。标注尺寸,点列表查询面域面积。$ D& B$ P2 S' O
: J$ J- I  l! z+ W$ q
[ 本帖最后由 枫林相伴 于 2009-6-7 21:29 编辑 ]
98-1.jpg
98-2.jpg

评分

参与人数 1三维币 +10 收起 理由
2005llnn + 10 很好

查看全部评分

发表于 2009-6-7 23:29:59 | 显示全部楼层 来自: 中国台湾
【进阶级练习题98】( N2 @5 f/ i* w9 u9 ~
求:
+ K, [- E3 @  S8 z; D& W1. a 之长度为何?a. 22.3134
0 n  d7 D! D* G% @% z8 y+ z1 V2. b 弧之长度为何?a. 29.6114
9 ]7 P  o# p- x- I5 Z% P; r: K+ o* E3. c 弧之长度为何?b. 24.9606" r6 r5 f! v' L, x
4. d 弧之长度为何?a. 29.86688 I% @! e3 C- g. @
5. e 弧之长度为何?a. 61.9016+ H1 m- h+ m/ \- H5 v5 @5 o
6. ∠ACB之角度值为何?c. 34.992°# M' S6 Y; S5 J5 T5 I, ~% b
7. 剖面线区域之面积为何?b. 303.4108: Z2 j* D1 f4 _$ m

4 M2 o  ]' s, b( A指定其中二点,再用相切,有时会被判定不存在,可以用其他的方式~
98.png

评分

参与人数 1三维币 +10 收起 理由
2005llnn + 10 很好

查看全部评分

发表于 2009-6-7 23:52:55 | 显示全部楼层 来自: 中国广东广州
1 A6 U/ }0 U# e* {
2 A
5 |- c; p6 E1 \! e1 ~# V3 B" f7 B) u# j& q4 }6 D8 r) V
4 A8 a2 X- A/ C; j- e  I- A; t# w
5 A ! `: ^. E* Q* G- @% l% T, j6 G
6 C 1 a9 [5 {, o  P* U# L, `
7 B  @1 m, m! E* y- v
" E' X* [6 I- \$ k5 ~* |# W
) H/ m" @: |- m9 c4 {
98.jpg
5 A0 u6 A5 Q' ?% b$ O
9 g& J, i4 b" Z! s& o
[ 本帖最后由 1987917333 于 2009-6-7 23:55 编辑 ]

评分

参与人数 1三维币 +10 收起 理由
2005llnn + 10 很好

查看全部评分

发表于 2009-6-8 08:33:11 | 显示全部楼层 来自: 中国广东佛山
进阶级练习题98
1.gif

评分

参与人数 1三维币 +10 收起 理由
2005llnn + 10 很好

查看全部评分

发表于 2009-6-8 09:19:20 | 显示全部楼层 来自: 中国浙江金华
1. a 之长度为何?               a. 22.3134
  A: \" d' j& r3 \. }2. b 弧之长度为何?           a. 29.6114
5 F: D: }0 [' Q: F' e3. c 弧之长度为何?           b. 24.9606
3 o" r, @# n; k/ _- }4. d 弧之长度为何?           a. 29.8668$ j* I# c: G; ~' w
5. e 弧之长度为何?           a. 61.9016
! _* o3 X; z! ]9 j/ }" P6. ∠ACB之角度值为何?    c. 34.992°8 V* V3 ~" `3 R3 c/ o# h) h
7. 剖面线区域之面积为何?b. 303.4108
; s  F2 I$ O* ]0 Q" u7 s/ X  L* I" R( ~% Y& [/ |5 _
1.jpg

评分

参与人数 1三维币 +10 收起 理由
2005llnn + 10 很好

查看全部评分

发表于 2009-6-8 20:08:30 | 显示全部楼层 来自: 中国山东东营
交作业,面积差点! G) X/ Y1 x8 Y2 T2 {* E
Drawing5.dwg (64.16 KB, 下载次数: 5)
截图.GIF

评分

参与人数 1三维币 +10 收起 理由
2005llnn + 10 很好

查看全部评分

发表于 2009-6-8 22:29:31 | 显示全部楼层 来自: 中国山东青岛
标注有点乱
未命名.JPG

评分

参与人数 1三维币 +8 收起 理由
2005llnn + 8 很好

查看全部评分

发表于 2009-6-11 19:14:45 | 显示全部楼层 来自: 中国湖南长沙
用的CAD2004画的,但弧长标不了,标了个大概
: X% a; O. n4 R6 e( E) ?; e是按二楼的思路画的!!' g! j8 P$ U4 p% f  I- l  a
答案见附图!
Snap1.jpg

评分

参与人数 1三维币 +8 收起 理由
2005llnn + 8 很好

查看全部评分

 楼主| 发表于 2009-6-14 15:13:59 | 显示全部楼层 来自: 中国上海
本题答案、解题以及动画演示已经发表,见:  e! Q( `7 W* k. X2 F8 Q6 A0 i3 w
http://www.3dportal.cn/discuz/viewthread.php?tid=749055&extra=page%3D1&frombbs=1
发表于 2009-6-14 18:26:41 | 显示全部楼层 来自: 中国台湾
发表于 2009-6-15 17:23:54 | 显示全部楼层 来自: 中国上海
a a  b  a a  c  b
98.JPG

评分

参与人数 1三维币 +8 收起 理由
2005llnn + 8 很好

查看全部评分

发表于 2009-6-17 22:57:05 | 显示全部楼层 来自: 中国上海
练习题98答案:
+ f3 M# G) x/ _8 R5 K1.a;2.a;3.b;4.a;5.a;6.c;7.b。
98.jpg

评分

参与人数 1三维币 +10 收起 理由
2005llnn + 10 很好

查看全部评分

发表于 2009-6-18 13:09:30 | 显示全部楼层 来自: 中国江苏南京
我也来发一个 98.JPG 98.dwg (36.8 KB, 下载次数: 0)

评分

参与人数 1三维币 +10 收起 理由
2005llnn + 10 很好

查看全部评分

发表于 2009-6-22 13:51:18 | 显示全部楼层 来自: 中国山东东营

练习

练习练习! 未命名.JPG

评分

参与人数 1三维币 +10 收起 理由
2005llnn + 10 很好

查看全部评分

发表于 2009-8-25 10:55:56 | 显示全部楼层 来自: 中国四川成都
第98题提交答案
98.JPG

评分

参与人数 1三维币 +5 收起 理由
2005llnn + 5 参与鼓励

查看全部评分

发表于 2009-8-29 16:04:26 | 显示全部楼层 来自: 中国山东青岛
进阶级练习题98* f5 C, p$ z' p2 x  x
进阶级练习题98.jpg

评分

参与人数 1三维币 +5 收起 理由
2005llnn + 5 参与鼓励

查看全部评分

发表于 2009-9-18 16:28:50 | 显示全部楼层 来自: 中国吉林吉林市

九十八题

谁有cad里的指令表啊!新手,好多指令还不知道呢!
九十八题.png

评分

参与人数 1三维币 +5 收起 理由
2005llnn + 5 参与鼓励

查看全部评分

发表于 2009-10-8 10:26:33 | 显示全部楼层 来自: 中国湖北孝感
75.jpg & }' ^4 b& Z0 T+ P" D8 l" l3 `
答案: 1a   2a   3b   4a   5a   6c   7b
% A" G9 L" I6 q9 ?2 M* Z9 q2 G5 c# M: v( n" }4 I* I$ Z% H2 _# p
[ 本帖最后由 wqh_2004 于 2009-10-8 10:34 编辑 ]

评分

参与人数 1三维币 +5 收起 理由
2005llnn + 5 参与鼓励

查看全部评分

发表于 2010-2-12 20:18:28 | 显示全部楼层 来自: 中国吉林吉林市
:time:二楼的方法挺好的,学习了 :time:
98_1.GIF
98_2.GIF

评分

参与人数 1三维币 +5 收起 理由
2005llnn + 5 参与鼓励

查看全部评分

发表于 2010-2-26 00:09:02 | 显示全部楼层 来自: 中国台湾
1. a 之長度為何?
4 N/ g9 C! M1 A9 F' `        a. 22.3134
* A( h+ b% |6 z" u" k6 L2. b 弧之長度為何?& G. G/ D  i3 D3 u/ \; K
        a. 29.61146 z  @! c; B3 v  j7 h+ {+ u
3. c 弧之長度為何?
( m6 W0 q. t4 C# D9 {        b. 24.96061 i6 L; G" }9 Z+ }$ c9 s
4. d 弧之長度為何?
9 T% h% l' F1 F; `1 }( y3 R# V$ j        a. 29.86688 K* r& P) m, t# ~$ y4 c
5. e 弧之長度為何?8 L2 u' h5 l' L4 K
        a. 61.90165 `6 o* j2 i3 m& u( a3 _
6. ∠ACB之角度值為何?
* y; Y9 [( m5 y6 T        c. 34.992°5 P; b6 f; W0 w' ~3 b# G: }* w! U
7. 剖面線區域之面積為何?9 K9 r- p+ d$ |" R
        b. 303.4108
98.jpg

评分

参与人数 1三维币 +5 收起 理由
2005llnn + 5 参与鼓励

查看全部评分

发表于 2010-3-21 08:47:11 | 显示全部楼层 来自: 中国广东汕头
做好了楼主答案在图形里面
Drawing2.jpg

评分

参与人数 1三维币 +5 收起 理由
2005llnn + 5 参与鼓励

查看全部评分

发表于 2012-2-28 09:41:01 | 显示全部楼层 来自: 中国福建泉州
进阶级练习题98
( m3 ?7 f: o/ u5 A 进价级练习题98.JPG

评分

参与人数 1三维币 +3 收起 理由
2005llnn + 3 参与鼓励

查看全部评分

发表于 2012-5-25 22:20:59 | 显示全部楼层 来自: 中国山东东营
进阶练习题98.JPG

评分

参与人数 1三维币 +3 收起 理由
2005llnn + 3 参与鼓励

查看全部评分

发表于 2012-5-31 13:31:13 | 显示全部楼层 来自: 中国江苏无锡
进阶98.jpg

评分

参与人数 1三维币 +3 收起 理由
2005llnn + 3 参与鼓励

查看全部评分

发表回复
您需要登录后才可以回帖 登录 | 注册

本版积分规则


Licensed Copyright © 2016-2020 http://www.3dportal.cn/ All Rights Reserved 京 ICP备13008828号

小黑屋|手机版|Archiver|三维网 ( 京ICP备2023026364号-1 )

快速回复 返回顶部 返回列表