QQ登录

只需一步,快速开始

登录 | 注册 | 找回密码

三维网

 找回密码
 注册

QQ登录

只需一步,快速开始

展开

通知     

全站
3天前
查看: 2058|回复: 14
收起左侧

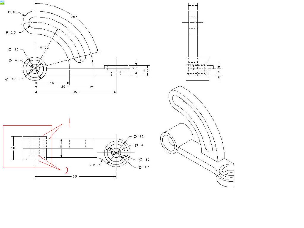
[讨论] 『1001』简单实体建模,多多参与

[复制链接]
发表于 2009-6-14 18:20:03 | 显示全部楼层 |阅读模式 来自: 中国山东济南

马上注册,结识高手,享用更多资源,轻松玩转三维网社区。

您需要 登录 才可以下载或查看,没有帐号?注册

x
讨论6 l1 ?$ _& B9 H' g& n% P$ A0 O

' o4 i; ~- E; w* d3 `这个题要求出工程图的,现在都没有,只能给3SWB了2 U4 Z' i" d/ i, Z/ g: B
( D1 |0 o: T' w  M, K2 A0 t/ j0 U
[ 本帖最后由 astrokylin 于 2009-6-15 12:09 编辑 ]
发表于 2009-6-14 19:04:58 | 显示全部楼层 来自: 中国河北沧州
又一次的从基础开始了,新手们学习的好机会呀。- F. P1 t) M) p9 Q7 h2 g' S
希望新手们多参与,高手们给多多指点呀。
发表于 2009-6-14 22:10:51 | 显示全部楼层 来自: 中国北京
尺寸给的不全啊
 楼主| 发表于 2009-6-14 22:16:20 | 显示全部楼层 来自: 中国山东济南

回复 3# driver 的帖子

少哪一个尺寸?
发表于 2009-6-14 22:55:46 | 显示全部楼层 来自: 中国山东青岛

test

用CAD软件可以么?3 k0 J4 `6 Y3 z5 i) Z' r

4 H8 Z2 J, y. }[ 本帖最后由 wangping0211 于 2009-6-14 22:57 编辑 ]
发表于 2009-6-14 23:00:40 | 显示全部楼层 来自: 中国北京
标红处
& Q' Y! m8 P* y2 Y3 M$ L 未命名.JPG
 楼主| 发表于 2009-6-14 23:04:40 | 显示全部楼层 来自: 中国山东济南

回复 5# wangping0211 的帖子

为了练习,还是用UG吧。出工程图也不是太复杂。# z2 ^/ w* }5 ^0 c# ~
另外,插图要有特征结构树。
发表于 2009-6-14 23:05:33 | 显示全部楼层 来自: 中国吉林长春

回复 6# driver 的帖子

第一处两边相等处理吧,为1mm+ D% r+ E9 \9 T% z8 h+ o# X
第二处孔倒角用30°或者45°处理吧。
发表于 2009-6-15 16:15:09 | 显示全部楼层 来自: 中国北京
工程图中如何显示构造线?" }1 V& s/ p+ g" ]3 V1 |
20090614_7afa44bfdff72a8a970cZtHrL250p0ux.jpg
发表于 2009-6-15 21:50:59 | 显示全部楼层 来自: 中国北京
为什么这里标注出来是R40?应该是R20才对啊。
3 @; j5 q6 A! |我是用2D中心线做的。
2 _! C  G1 [' Z3 Z) @$ f! Z9 I 未命名.JPG
发表于 2009-6-16 08:51:05 | 显示全部楼层 来自: 中国上海
楼上的视图比例是不是2:1, 因为实体尺寸是按实显示的,就是不管比例如何放大,尺寸和数模是联系的;
+ y' {2 g$ U8 F+ \. G9 \但是,中心线是在drafting下标注出来的,所以当然是实际的2倍; 如果你把视图改为1:1, 中心线的R也是20

评分

参与人数 1三维币 +5 收起 理由
astrokylin + 5 技术讨论

查看全部评分

发表于 2009-6-16 09:10:20 | 显示全部楼层 来自: 中国北京
恍然大悟!% f/ O* b  u  ~% H' L
楼上,你说的对。我懒得改标注尺寸,就把比例放大了,忘记了。
发表于 2009-6-16 23:08:50 | 显示全部楼层 来自: 中国北京
我要关闭视图边界,教程说在 首选项——可视化——名称/边界 中不要钩选 “显示模型视图边界”,怎么我钩选和清除该选项都没反映?, s& E4 k1 X7 }9 ^
我看的02年版 UG制图基础培训教程。
/ B5 |1 n4 Z: R6 B( l: w 未命名.JPG
 楼主| 发表于 2009-6-17 05:32:20 | 显示全部楼层 来自: 中国山东济南
首选项--制图预设置--视图--边界--去掉勾选“显示边界”即可。
发表于 2009-6-17 14:52:19 | 显示全部楼层 来自: 中国山东青岛
工程图中。4.0版本有没有创建2D中心线的功能啊?
发表回复
您需要登录后才可以回帖 登录 | 注册

本版积分规则

Licensed Copyright © 2016-2020 http://www.3dportal.cn/ All Rights Reserved 京 ICP备13008828号

小黑屋|手机版|Archiver|三维网 ( 京ICP备2023026364号-1 )

快速回复 返回顶部 返回列表