QQ登录

只需一步,快速开始

登录 | 注册 | 找回密码

三维网

 找回密码
 注册

QQ登录

只需一步,快速开始

展开

通知     

全站
10天前
goto3d 说: 在线网校重磅上线MC2022&Inventor2022全新课程,虞为民老师、大表哥同事精彩讲解,快去围观!
2021-06-25
查看: 2453|回复: 12
收起左侧

[已解决] 如何标注(如图)竖直的形位公差

[复制链接]
发表于 2009-6-16 11:10:03 | 显示全部楼层 |阅读模式 来自: 中国浙江台州

马上注册,结识高手,享用更多资源,轻松玩转三维网社区。

您需要 登录 才可以下载或查看,没有帐号?注册

x
如何标注(如图)竖直的形位公差
截图13.jpg
发表于 2009-6-17 12:48:22 | 显示全部楼层 来自: 中国陕西西安
这个问题以前我也遇到过,一直不知道怎么解决的,希望有人来答一下~
发表于 2009-6-17 12:51:43 | 显示全部楼层 来自: 中国广东广州
这个很简单啊,在编辑里面有个旋转命令,用它可以搞定
8 H$ ?3 G1 ^7 S, u1 b! w+ c+ T7 X! |) R( `* D) ]+ h
[ 本帖最后由 wz_111 于 2009-6-17 13:01 编辑 ]
11.png
22.png
发表于 2009-6-17 12:53:28 | 显示全部楼层 来自: 中国陕西西安
谢谢噢,回去试试~~
 楼主| 发表于 2009-6-17 13:29:19 | 显示全部楼层 来自: 中国浙江台州
不是我想要的结果啊
发表于 2009-6-17 14:26:13 | 显示全部楼层 来自: 中国北京

very easy

放置实例时,把对话框里那个角度选项改为90就可
发表于 2009-6-17 16:35:42 | 显示全部楼层 来自: 中国广东广州
你到底要哪种结果啊!
ps.png
 楼主| 发表于 2009-6-17 19:22:19 | 显示全部楼层 来自: 中国浙江台州

回复 7# wz_111 的帖子

就是这种,能不能做个教程
发表于 2009-6-17 19:33:19 | 显示全部楼层 来自: 中国广东广州
和我上面的方法一样的啊,学会变通才是真的!
! t% M+ e$ Z  q% n! E/ ]3 W有什么做的呢?我在3楼已经把方法给你说了,只是你去看结果了,没去想细节,汗!/ V) }; \  _' D0 i; x4 W. W
至于引线需要手动画,先捕捉轮廓边线,然后从捕捉的轮廓边开始向上画竖直线,这样画出来的线不会歪。也会自动捕捉到形位公差边框上,就这么简单,还有问题么?
# J5 F" t; ~' R) [1 G- q) e最后别忘了设置与视图相关!
发表于 2009-6-17 19:56:24 | 显示全部楼层 来自: 中国山东青岛
版主,这个解决方法是折衷办法。箭头和公差也不关联。, x. t) a* Z" F

2 [1 b, y$ r4 e. d9 u4 T7 E* U- X- M) S有没有办法解决带箭头的形位公差竖直放置??
发表于 2009-6-17 22:21:40 | 显示全部楼层 来自: 中国贵州安顺
标注后调整位置,我上传不了图片,只有来pdf格式了。
& F4 e+ n9 j9 t$ {8 R8 y drw0001.pdf (10.51 KB, 下载次数: 32)
发表于 2009-6-18 09:31:01 | 显示全部楼层 来自: 中国广东广州
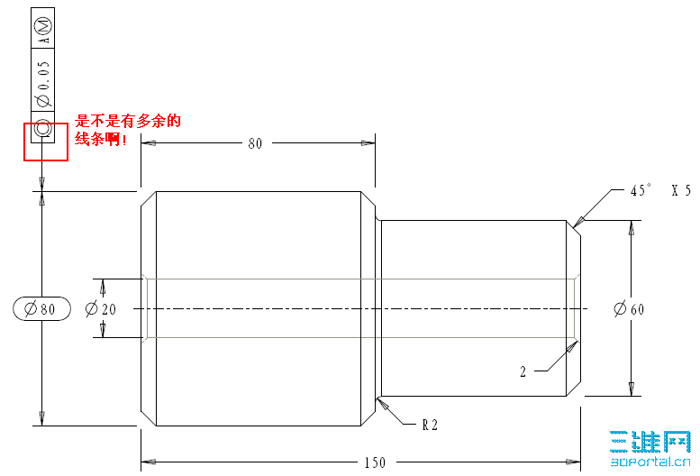
带线的那种一起旋转出来后不好看,有些地方有多余的线条,我做过了,所以没有用那种给你解答! 111111.png
/ f$ B* _6 E! ~* d- N- R" z* ^! ^8 P6 y& c% s) d
[ 本帖最后由 wz_111 于 2009-6-18 09:34 编辑 ]

评分

参与人数 1三维币 +5 收起 理由
xinyazhu + 5

查看全部评分

 楼主| 发表于 2009-6-18 13:10:14 | 显示全部楼层 来自: 中国浙江台州
多谢大家的帮忙,自己解决啦,用两个注释做的,方法比较笨,所以就不介绍啦( X" B/ l- t! p, S$ \0 @
5 v+ w, D# o- x- m3 n2 f! C
[ 本帖最后由 chuzhaofeng2005 于 2009-6-18 13:17 编辑 ]
截图14.jpg
发表回复
您需要登录后才可以回帖 登录 | 注册

本版积分规则


Licensed Copyright © 2016-2020 http://www.3dportal.cn/ All Rights Reserved 京 ICP备13008828号

小黑屋|手机版|Archiver|三维网 ( 京ICP备2023026364号-1 )

快速回复 返回顶部 返回列表