QQ登录

只需一步,快速开始

登录 | 注册 | 找回密码

三维网

 找回密码
 注册

QQ登录

只需一步,快速开始

展开

通知     

查看: 4297|回复: 26
收起左侧

[已解决] 请教高手关于密封问题?

[复制链接]
发表于 2009-6-16 17:18:34 | 显示全部楼层 |阅读模式 来自: 中国江苏镇江

马上注册,结识高手,享用更多资源,轻松玩转三维网社区。

您需要 登录 才可以下载或查看,没有帐号?注册

x
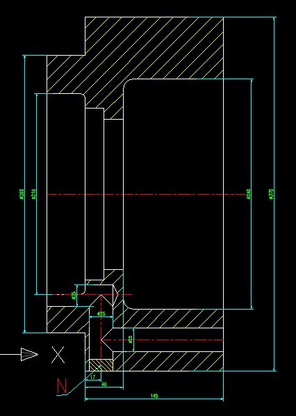
1.
& K" k% m, z, F, E  u; w- ?
零件:轴承后盖( T4 S% G; |) {$ r
2.
8 K5 A) F% v7 S/ Y" w  n) `$ N: `
材料:HT250
: R' m( F" M2 U
无铸造缺陷' U" S* M! o8 P! Q1 O1 X$ j5 E
3.
0 ~$ [8 |" s- x1 U% g! Y
图中Φ25孔为油孔,钻孔后N处钻孔攻丝,并用螺塞堵住,然后塞焊,打磨光整后,在塞焊处涂上粉末合金,高温融化。' M' k( N" |1 W6 V8 t7 ~
现在做了很多这样的轴承盖,发现此处都漏油,希望各位前辈和师傅可以帮我解决这个封口漏油问题。如果有更好的密封这个口的方案,希指导,谢谢!!!!
1 A& }, j9 r+ b: M
6 K$ p9 K  Z9 N! ~: _* K! {$ h) X
截图11.jpg
截图111.jpg
发表于 2009-6-16 21:46:19 | 显示全部楼层 来自: 中国河北张家口
看上去像是润滑轴承用,估计油压不会很高,拧螺塞时上面缠点生料带或抹一些封口胶应该管用,不用塞焊那么麻烦

评分

参与人数 1三维币 +2 收起 理由
渔樵 + 2 应助

查看全部评分

发表于 2009-6-17 11:25:21 | 显示全部楼层 来自: 中国江苏无锡

回复 1# wisdomxys 的帖子

用螺纹密封,如果以后不用拆了涂圆柱螺纹专用密封,保证不会漏。管螺纹或普通螺纹都可以
发表于 2009-6-17 12:56:41 | 显示全部楼层 来自: 中国北京
用的螺塞是NPT的锥管螺纹吗?不能够用G的管螺纹,它是不密封的。不用焊接即可密封,并在锥管螺钉上缠密封塑料胶带,就是水都可以密封,别说油了。

评分

参与人数 1三维币 +2 收起 理由
渔樵 + 2 应助

查看全部评分

发表于 2009-6-17 14:36:30 | 显示全部楼层 来自: 中国北京
抹点螺纹密封胶就可以了。也可以用锥螺纹的,自密封的
发表于 2009-6-17 14:59:15 | 显示全部楼层 来自: 中国山西太原
此轴承后盖毛坯是HT250铸件,既然是铸件这个油孔就可以铸出来,可免去许多麻烦。为了美观也将图中竖孔铸出,横孔加工时钻通,都达到目的。

评分

参与人数 1三维币 +2 收起 理由
渔樵 + 2 技术讨论

查看全部评分

发表于 2009-6-20 12:26:19 | 显示全部楼层 来自: 中国北京
"此轴承后盖毛坯是HT250铸件,既然是铸件这个油孔就可以铸出来,可免去许多麻烦。为了美观也将图中竖孔铸出,横孔加工时钻通,都达到目的。"
8 T1 D, B$ ]3 ~" ?6 p, S- l  N, y0 l  q+ z2 Q+ q$ |) D& o
楼上的说法不妥,油孔可以铸出来,但是此处壁厚太簿,会出现铸造缺陷,造成漏油很难解决.
5 y' Z2 t- w2 x# T) f, [8 E  f
+ b8 ]- C& Z# O& D[ 本帖最后由 hhq426 于 2009-6-22 12:27 编辑 ]

评分

参与人数 1三维币 +2 收起 理由
渔樵 + 2 技术讨论

查看全部评分

发表于 2009-6-20 12:50:21 | 显示全部楼层 来自: 中国浙江温州
就用一般市场上卖的那个Y型及相类似的密封圈就OK了,自带弹簧,不加其它任何东东,另外在密封圈上摸上密封胶如ab胶。
发表于 2009-6-20 13:50:18 | 显示全部楼层 来自: 中国山东烟台
把螺塞换成光轴,过盈装入,然后再焊,应该没问题了

评分

参与人数 1三维币 +2 收起 理由
渔樵 + 2 应助

查看全部评分

发表于 2009-6-20 16:11:00 | 显示全部楼层 来自: 中国山东济南
你可以将螺塞上开个槽,装个O型密封圈应该就没有问题了,或者把做成一个有锥度的光轴,装配的时候压入。
头像被屏蔽
发表于 2009-6-21 18:21:24 | 显示全部楼层 来自: 中国上海
提示: 作者被禁止或删除 内容自动屏蔽
发表于 2009-6-22 11:19:02 | 显示全部楼层 来自: 中国上海
楼主的堵法很复杂,自然有他的道理,例如工作温度很高等。用锥形螺堵(PT)加高温密封胶(如果要求高温时)应该可以,点焊防松就可以了。

评分

参与人数 1三维币 +2 收起 理由
渔樵 + 2 技术讨论

查看全部评分

发表于 2009-6-22 13:49:00 | 显示全部楼层 来自: 中国天津
HT250用塞焊不好。用NPT的锥螺纹,涂loclite胶(胶的型号根据使用的油及密封性选择)。

评分

参与人数 1三维币 +2 收起 理由
渔樵 + 2 技术讨论

查看全部评分

发表于 2009-6-30 19:09:05 | 显示全部楼层 来自: 中国山东泰安
可设计回油槽
发表于 2009-7-2 22:58:43 | 显示全部楼层 来自: 中国广东佛山
呵呵3 O% [7 ^# o; j8 u
用锥螺纹加生料带都可以了( c9 S% `2 ?, a  S' A, x! O" J
不用焊接啊& Z) p% m9 D, O+ j8 N
我们公司的压力都达到20MPA了都是这样密封的) W7 d0 Q; ~* ~! D
也不会漏油
发表于 2009-7-3 14:36:51 | 显示全部楼层 来自: 中国四川德阳
用NPT螺纹螺塞密封,应该可以解决问题。
发表于 2009-7-3 16:01:23 | 显示全部楼层 来自: 中国湖北荆州
在螺孔内涂硅橡胶(南大出的704)试试.
发表于 2009-7-6 17:57:53 | 显示全部楼层 来自: 中国浙江宁波
可能是在粉末合金高温融化后产生裂纹。可否取消粉末合金高温融化,改为封堵焊加打磨。
发表于 2009-7-8 06:38:47 | 显示全部楼层 来自: 中国北京
压力是多少?如果没什么压力(低于0.5MPa),用生料带没问题。或者用螺纹胶也没问题。
发表于 2009-8-1 02:08:10 | 显示全部楼层 来自: 中国广东江门
太薄了,建议钻斜孔,孔25攻丝是27的了吧?,17减13.5,只有3.5,塞焊用保护焊,焊芯1.2的,实际上焊这里都没有焊透,焊透就有裂的可能,造成漏油.9 K8 U  J! B# E$ |* y
过盈打入更危险," T( ?- b) o) q# i
要么更改结构将该处17改为至少20,要么将竖孔改为从直径210方向钻斜孔直接连到下方25孔的位置,不钻穿外壁.连堵头都省掉.
发表于 2009-8-1 11:47:55 | 显示全部楼层 来自: 中国湖北孝感
原帖由 hhq426 于 2009-6-20 12:26 发表 http://www.3dportal.cn/discuz/images/common/back.gif! V" a; {: m' k- s' Q
"此轴承后盖毛坯是HT250铸件,既然是铸件这个油孔就可以铸出来,可免去许多麻烦。为了美观也将图中竖孔铸出,横孔加工时钻通,都达到目的。"
% C: w5 K/ i4 F5 ?5 @
& A+ u8 a9 P0 @, L: c$ z楼上的说法不妥,油孔可以铸出来,但是此处壁厚太簿,会出现铸造缺陷,造成 ...

0 Y9 A6 M# C% U2 n6 u# _* @+ R) O
7 E' s! I5 w# b5 G油孔附近壁太薄的话,可在铸造时加厚此处壁厚,最后加工外形至要求壁厚即可。
发表于 2009-8-11 22:22:49 | 显示全部楼层 来自: 中国重庆

用厌氧胶

螺塞涂上厌氧胶,不用焊即可
发表于 2009-9-5 20:00:53 | 显示全部楼层 来自: 中国江苏南京
用英制螺纹密封即可
发表于 2009-9-6 09:51:14 | 显示全部楼层 来自: 中国山西吕梁

回复 8# xlxlab1 的帖子

完全正确。且省事
发表于 2009-9-7 16:08:19 | 显示全部楼层 来自: 中国广东深圳

别攻螺纹

直接钻孔,铰下10mm长的孔,直接打个过盈的堵上去不就好了~
发表回复
您需要登录后才可以回帖 登录 | 注册

本版积分规则


Licensed Copyright © 2016-2020 http://www.3dportal.cn/ All Rights Reserved 京 ICP备13008828号

小黑屋|手机版|Archiver|三维网 ( 京ICP备2023026364号-1 )

快速回复 返回顶部 返回列表