QQ登录

只需一步,快速开始

登录 | 注册 | 找回密码

三维网

 找回密码
 注册

QQ登录

只需一步,快速开始

展开

通知     

查看: 5520|回复: 28
收起左侧

[已答复] 请教高手关于密封问题?

[复制链接]
发表于 2009-6-16 17:19:57 | 显示全部楼层 |阅读模式 来自: 中国江苏镇江

马上注册,结识高手,享用更多资源,轻松玩转三维网社区。

您需要 登录 才可以下载或查看,没有帐号?注册

x
1.
6 N* X3 U/ `0 r7 @/ ^2 f
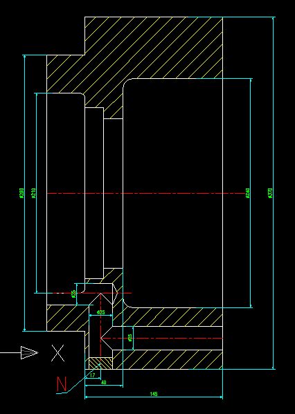
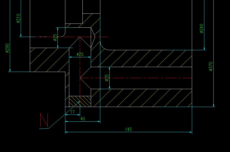
零件:轴承后盖
* G6 I# }& `7 ^( N, j, n& t2.3 l  T0 l; Y1 A/ L- m( k; v% ?: A5 r! f
材料:HT2509 Z' n6 C9 b8 Z; D. z* G- O4 R
无铸造缺陷
) d  b6 Q3 ^" y1 c& ~& d3.
- x3 F" ^6 ^8 d4 u; n1 z  J: H
图中Φ25孔为油孔,钻孔后N处钻孔攻丝,并用螺塞堵住,然后塞焊,打磨光整后,在塞焊处涂上粉末合金,高温融化。# G/ U6 J+ F* y9 B6 I9 n- h2 \
现在做了很多这样的轴承盖,发现此处都漏油,希望各位前辈和师傅可以帮我解决这个封口漏油问题。如果有更好的密封这个口的方案,希指导,谢谢!!!!
截图11.jpg
截图111.jpg
截图3.jpg

评分

参与人数 1三维币 -5 收起 理由
虎强 -5 不同版块重复求助

查看全部评分

发表于 2009-6-16 18:10:37 | 显示全部楼层 来自: 中国广东东莞
螺钉头螺纹部份缠绕生料带(也在液态的),很多电磁阀堵孔都这样用啊,也没发现经常漏。) d. x7 ]4 M4 h4 U, K* w0 ]' [& H
或者不用塞焊,直接用螺钉,O形密封圈配合密封垫。

评分

参与人数 1三维币 +3 收起 理由
hero2006 + 3 技术讨论

查看全部评分

发表于 2009-6-16 18:10:55 | 显示全部楼层 来自: 中国四川德阳
加垫圈试试啊
发表于 2009-6-16 18:47:46 | 显示全部楼层 来自: 中国河北廊坊
我觉得这个油孔没必要这么麻烦,定好位置和角度,直接钻孔就可以了。
发表于 2009-6-16 19:15:49 | 显示全部楼层 来自: 中国浙江温州
请问楼主是用什么焊的???亚弧焊吗?我建议你可以钎焊(铜焊)...我开发过轿车上的膜式机械泵...油管接头就是铜焊...0.5MPa压力没有任何问题...
发表于 2009-6-16 21:05:47 | 显示全部楼层 来自: 中国广东广州
直接攻Rc1`的管螺纹,然后用螺堵缠绕生料带后拧紧

评分

参与人数 1三维币 +2 收起 理由
虎强 + 2 技术讨论

查看全部评分

 楼主| 发表于 2009-6-16 21:35:26 | 显示全部楼层 来自: 中国江苏镇江
关键在高温,有一定得压力情况下
发表于 2009-6-16 22:18:38 | 显示全部楼层 来自: 中国上海
轴承后盖的材料为HT250,焊接性能较差。估计这是造成漏油的原因。建议采用紫铜垫圈加螺堵,保证不漏。

评分

参与人数 1三维币 +3 收起 理由
虎强 + 3 技术讨论

查看全部评分

 楼主| 发表于 2009-6-17 06:36:48 | 显示全部楼层 来自: 中国江苏镇江
紫铜垫圈加螺堵后还需要焊接吗?
发表于 2009-6-17 09:55:19 | 显示全部楼层 来自: 中国山西太原
1  这个轴承后盖是个HT250铸件,既然是铸件这个油孔完全可以铸造出来,免去很多麻烦。为了铸造容易,也可只铸如图中的竖孔,横孔可以钻通,这样更美观。
" q  {! Z) y5 ?) s+ `2  若非要这样作,解决漏泄的问题也不难。一是用过盈配合管螺纹(Rc/R2),不用焊接也不会漏;二是用一般细牙螺纹,加螺纹密封胶,不漏也不会松动。8 v; c7 ]3 H6 d. I+ ?. L
最好不经焊接,因为铸铁焊接后会产生热应力,引起变形和漏泄。

评分

参与人数 1三维币 +4 收起 理由
虎强 + 4 技术讨论

查看全部评分

 楼主| 发表于 2009-6-17 20:02:24 | 显示全部楼层 来自: 中国江苏镇江
紫铜垫圈加螺堵应该比较好
发表于 2009-6-18 00:05:49 | 显示全部楼层 来自: 中国广东广州
10楼说的对,将孔铸造出来,一不做二不休,干脆做彻底点1 W) c9 P$ m' V& z

* {) Q$ _1 g6 o上下两个错位的孔采用一个铸造的斜孔代替,钻孔、封堵、焊接的工艺统统可以取消,可简化不少,也没有泄露的麻烦

评分

参与人数 1三维币 +2 收起 理由
虎强 + 2 技术讨论

查看全部评分

发表于 2009-6-18 10:16:18 | 显示全部楼层 来自: 中国广东佛山
说用铸造的,缺乏实际经验,+ X7 y$ s4 F3 {
此类孔大都是机加工而成.# s4 o% y% b- V. a
用堵头堵没有问题.

评分

参与人数 1三维币 +2 收起 理由
虎强 + 2 技术讨论

查看全部评分

发表于 2009-6-19 11:57:44 | 显示全部楼层 来自: 中国香港
密封形式没有问题,在螺纹处涂密封胶,具体什么胶,上网搜一下。
发表于 2009-6-20 11:35:38 | 显示全部楼层 来自: 中国江苏苏州
直接攻Rc1`的管螺纹,然后用螺堵缠绕生料带后拧紧。再加点胶水,
发表于 2009-6-22 17:18:25 | 显示全部楼层 来自: 中国上海
我估计其密封的是机油,温度会达到100度以上,请试一下采用银铜焊料,手工钎焊。

评分

参与人数 1三维币 +2 收起 理由
gzyzgzyz + 2 技术讨论

查看全部评分

发表于 2009-6-22 17:29:03 | 显示全部楼层 来自: 中国四川成都
你这个工件要加压的吗???  用管螺纹堵塞+螺纹密封胶,, 应该不会有什么问题,,减速器上常用的
发表于 2009-6-23 19:14:34 | 显示全部楼层 来自: 中国河北廊坊
直接铸一个或钻一个斜孔,就都解决了。
发表于 2009-6-23 19:30:51 | 显示全部楼层 来自: 中国上海
原帖由 gaoyns 于 2009-6-17 09:55 发表 http://www.3dportal.cn/discuz/images/common/back.gif1 z4 f5 A) g8 N8 w9 g" Q' f
1  这个轴承后盖是个HT250铸件,既然是铸件这个油孔完全可以铸造出来,免去很多麻烦。为了铸造容易,也可只铸如图中的竖孔,横孔可以钻通,这样更美观。7 y; i! w; `; o- f
2  若非要这样作,解决漏泄的问题也不难。一是用过盈配合管螺 ...

* O9 p2 X) O9 H/ }. u1 @5 G& K& c. }3 r+ J5 g" R5 |

. ]- n  h9 N+ M  f$ k  ?' T按道理25的孔铸造出来是没问题的,可这是油孔,铸造出来弯弯曲曲的孔怎么清理啊?如果砂子(或别的什么东西)清理不干净,那麻烦就大了~~~

评分

参与人数 1三维币 +2 收起 理由
gzyzgzyz + 2 技术讨论

查看全部评分

发表于 2009-6-23 20:11:19 | 显示全部楼层 来自: 中国上海
原帖由 pss0902 于 2009-6-23 19:30 发表 http://www.3dportal.cn/discuz/images/common/back.gif
" v0 o0 Z% c* O2 s/ |7 `
6 q( v* E6 }% |9 ]5 @. l5 {
- k- Q: ~0 w, M# S/ k0 M- j2 F' z# |
按道理25的孔铸造出来是没问题的,可这是油孔,铸造出来弯弯曲曲的孔怎么清理啊?如果砂子(或别的什么东西)清理不干净,那麻烦就大了~~~

: l# Q8 M9 h' J4 v/ I清砂不应该有问题。几乎所有液压阀的阀体都是铸造件,其内部通道也是整体铸造的,砂也不是清得很干净吗?

评分

参与人数 1三维币 +2 收起 理由
gzyzgzyz + 2 技术讨论

查看全部评分

发表于 2009-6-24 00:01:28 | 显示全部楼层 来自: 中国广东深圳

回复 1# wisdomxys 的帖子

1.采用螺纹胶
* u' t! k# j5 Q. M; ?4 e2.改成与之相近的PT牙

评分

参与人数 1三维币 +2 收起 理由
gzyzgzyz + 2 技术讨论

查看全部评分

发表于 2009-6-24 09:03:59 | 显示全部楼层 来自: 中国贵州安顺
HT250的焊接性能较差,可能漏油的原因,可以改进一下焊接工艺,或者直接用管螺纹涂防漏胶堵塞.

评分

参与人数 1三维币 +2 收起 理由
gzyzgzyz + 2 技术讨论

查看全部评分

发表于 2009-9-1 17:26:23 | 显示全部楼层 来自: 中国浙江台州
都是高手啊
发表于 2009-9-1 23:58:10 | 显示全部楼层 来自: 中国湖南长沙
HT250的焊接性能较差
发表于 2009-9-4 17:15:57 | 显示全部楼层 来自: 中国广西柳州
直接在螺纹上涂密封胶就可以了,我们公司的车桥减速器好多地方都是,好的胶有乐泰跟渝泰的。便宜点的有天山,你们可以做下工艺验证。

评分

参与人数 1三维币 +3 收起 理由
gzyzgzyz + 3 技术讨论

查看全部评分

发表回复
您需要登录后才可以回帖 登录 | 注册

本版积分规则


Licensed Copyright © 2016-2020 http://www.3dportal.cn/ All Rights Reserved 京 ICP备13008828号

小黑屋|手机版|Archiver|三维网 ( 京ICP备2023026364号-1 )

快速回复 返回顶部 返回列表