QQ登录

只需一步,快速开始

登录 | 注册 | 找回密码

三维网

 找回密码
 注册

QQ登录

只需一步,快速开始

展开

通知     

查看: 2269|回复: 2
收起左侧

[求助] 求购铸钢件(不诚勿扰)

 关闭 [复制链接]
发表于 2009-6-17 21:21:49 | 显示全部楼层 |阅读模式 来自: 中国山东东营

马上注册,结识高手,享用更多资源,轻松玩转三维网社区。

您需要 登录 才可以下载或查看,没有帐号?注册

x
本公司最近接到一批订单(见附件),希望与国内有实力的企业进行合作。* V2 x) {/ l3 }. v
有意者请把公司详细资料业绩发送到:zrl3721@163.com,(公司简介、主要业绩、木模费、铸件单价、加工费、铸件单重、交货期)
9 j; j6 ^1 s# h. u' J* s! s7 |
铸钢件名称:托轮
& B& v5 {' _5 ?$ J# o材质:ZG30Mn2
) p' |' g) d# L% g, B# {单量:23吨
. R0 x0 c+ x- C! K- `, M( C采购量:48件
# `- t0 }' J' V8 M% l& [. r交货期:150天' l, b/ L8 Y4 D
交货装态:成品交货(精加工后)
" O+ ?0 q9 t8 |2 a  q质量要求:
4 m& \$ I7 l- V- y! p1、化学成份分析# c0 c! Q- O* J2 Y9 g
C=0.27%-0.34%
1 J+ F  G5 L. u8 D+ L) O* E
1 _: _% C& O7 v3 d6 ESi=0.30%-0.50%
# N2 M& o; \6 g3 W7 a3 w3 N4 c* x1 T- F. E" n  A! ]
Mn=1.20%±1.5%0 A( H0 d; W6 j1 X5 s9 u6 o6 c
4 P6 e$ }- f4 ?- ?0 x) }* O0 @
P≤0.035%
' Y) f2 `5 P) r$ B) A% H/ {9 L5 U* x* `5 X6 v( V
S≤0.035%6 Z! g4 O2 C* ^& [8 e" M

: [2 k: n( f1 e& b) Q2、室温机械性能(最小值)
" b3 I; s) m1 t5 u3 ^抗拉强度
, ~# c6 U8 ]9 B" W" U: P9 \
Rm=540-690N/mm22 j* C! Q/ x4 G

! ^) ]6 \( O7 T* v9 B  H" O屈服强度
/ P/ q3 H/ N3 Q0 L' ^Re=255N/mm2

/ Y: s; {7 Z8 q; V5 o/ T# _+ M0 D3 p1 B1 N
布氏硬度2 V9 v4 X8 A6 j% q: L; n7 u
=160-204HB

  \, J" n% H/ V* I% C8 K9 Q! [8 N/ `
拉断前延长率9 A+ X# z: g8 Z
9 \0 E/ q# b) D4 r& Q
1 M& H3 u2 b. \: f/ V! K
A5=15%(L0=5d0)
4 i3 r% \8 H; F. W; ^
) y% v* T, ]% }* j$ q7 @
试块冲击值- ~* p% f, `3 x$ W

4 \+ V2 ^) q9 s' ~1 e! w0 pAv=34

7 L9 S$ w/ _/ i3、粗加工后对轮带进行100%超声波探伤。如果发现缩孔或其他缺陷如需修补必须通知需方,探伤级别三级4 x# @  ^% y6 H5 u
/ }6 U# q: d4 |& T4 ^* i$ a& a
4、文件资料% e2 r7 T3 S  V
供方要提供以下资料:
- d# O8 h& q# i' V. H1 E-
  g9 R2 n/ X# H' r. N
材料检验证书,附有化学成分分析和机械性能。
4 @, ?9 p9 s; F6 Q
-0 e" \6 F& M1 j9 H5 Q" Y
硬度测量报告。
4 w3 n. e8 m! p: [; X' i
-
% |5 e# N; W" i& Z7 ]
参考修正计划(如果有)
! Z& a9 p0 Y4 j- m% L. J
-
- E! J* n  Q* c- a8 S8 J+ y
热处理报告
8 t2 ?2 f( M$ @) g6 o
-: A: i5 N. A  b' {3 O$ ?: M
无损探伤检测报告
) |1 Z1 Y3 m6 j$ B5 T
-7 A; p/ B2 \! P* _: l2 L8 u
磁粉探伤检测报告
9 b* |/ h$ u" t. G2 I$ Q0 s
-- D2 O0 X9 i" k$ c' A4 \
尺寸检验报告
4 n9 c3 ^( Y2 K# V" P4 [2 x( J

! k9 b# n$ J- L$ F$ C* M& v5 M8 q: j( B7 H1 Z/ Y% l- p, }5 D

# P$ v, H3 u5 Z  A+ z其它:需方到供方厂内验货,由供方组织运输,运费协商;包装由供方提供(确保零件运输不受到损坏)
! b9 a6 i1 f; x# V3 G

# d* {$ h1 t4 l# \" D3 h' x8 t* O( V$ _4 l% d: F4 H, y$ K

7 V* N% a) Y: p4 Q6 D/ O+ x% }
7 V  s+ ^  [% O9 q) C[ 本帖最后由 zrl3721 于 2009-6-17 21:26 编辑 ]

托轮.rar

82.66 KB, 下载次数: 12

发表于 2009-6-18 08:35:23 | 显示全部楼层 来自: 中国河北保定
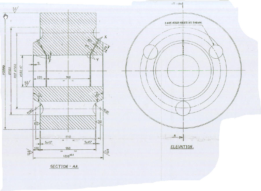
楼主应该直接贴图,工件外径2000mm,厚1200mm,是个非常大的工件。本想帮楼主贴个图片,但不知道为什么说图片格式不对,无法上传。
6 h+ T. {5 U. e: V2 L问题解决了,将图片补上。: U' H/ h" x: D) l
http://16 p- ~6 L; A0 ?

9 ^& _2 \+ a6 {0 _! d[ 本帖最后由 sunnyoldman 于 2009-6-18 14:31 编辑 ]
tuolun.JPG
 楼主| 发表于 2009-6-18 13:58:05 | 显示全部楼层 来自: 中国山东东营
公司简介、主要业绩、木模费、铸件单价、加工费、铸件单重、交货期一定要全,外方更重视您的业绩,所以发邮件的朋友要发全,不全的请重发下,请对你的价格保密,不要在本论坛公开发布,我们会同外方对一些用户将进行考查。谢谢
发表回复
您需要登录后才可以回帖 登录 | 注册

本版积分规则


Licensed Copyright © 2016-2020 http://www.3dportal.cn/ All Rights Reserved 京 ICP备13008828号

小黑屋|手机版|Archiver|三维网 ( 京ICP备2023026364号-1 )

快速回复 返回顶部 返回列表