QQ登录

只需一步,快速开始

登录 | 注册 | 找回密码

三维网

 找回密码
 注册

QQ登录

只需一步,快速开始

展开

通知     

全站
5天前
查看: 14119|回复: 25
收起左侧

[讨论结束] 轴用挡圈槽的尺寸怎么标注才算正确的?如图

 关闭 [复制链接]
发表于 2009-6-24 21:09:04 | 显示全部楼层 |阅读模式 来自: 中国辽宁沈阳

马上注册,结识高手,享用更多资源,轻松玩转三维网社区。

您需要 登录 才可以下载或查看,没有帐号?注册

x
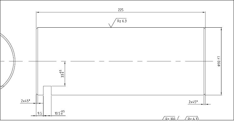
轴用挡圈槽的尺寸怎么标注才算正确的?如图0 R0 Z; R9 T( t

/ n/ H. z5 f2 u' B[ 本帖最后由 qwert123 于 2009-6-24 21:11 编辑 ]
Drawing1-Model.jpg
发表于 2009-6-24 21:43:34 | 显示全部楼层 来自: 中国山东临沂
个人认为应该图2是正确的

评分

参与人数 1三维币 +2 收起 理由
plc + 2 参与讨论

查看全部评分

发表于 2009-6-25 09:42:40 | 显示全部楼层 来自: 中国山西太原
轴用挡圈槽的尺寸应当这样标注:
轴用挡圈槽的标注方法.jpg

评分

参与人数 1三维币 +2 收起 理由
天际孤帆 + 2 技术讨论

查看全部评分

发表于 2009-6-25 09:49:50 | 显示全部楼层 来自: 中国上海
图2的标注常用.

评分

参与人数 1三维币 +2 收起 理由
plc + 2 参与讨论

查看全部评分

发表于 2009-6-25 10:13:25 | 显示全部楼层 来自: 中国福建厦门
轴用弹性当圈,德国图纸如此画法,供参考!
未命名.JPG

评分

参与人数 1三维币 +2 收起 理由
plc + 2 参与讨论

查看全部评分

发表于 2009-6-25 10:15:24 | 显示全部楼层 来自: 中国上海
小弟倒感到这样标合理一点,至少尺寸30不加公差没关系,最多也就轴向窜动大点,本来用挡圈的场合,轴向窜动都比较大.
轴用挡圈槽.jpg

评分

参与人数 1三维币 +2 收起 理由
天际孤帆 + 2 技术讨论

查看全部评分

发表于 2009-6-25 10:25:48 | 显示全部楼层 来自: 中国上海
原帖由 emop 于 2009-6-25 10:13 发表 http://www.3dportal.cn/discuz/images/common/back.gif
. e( N1 w- l2 `: q$ w轴用弹性当圈,德国图纸如此画法,供参考!
; u8 K( P. ~0 K! q

% y# M7 `& H# Y& W8 L) q" ]; w
$ ?3 w/ L! Q0 w1 w5 v外国人的东西也不一定都是对的,没有周围零件的相互关系,空谈标注没用,就德国图纸来看,至少33+0.5/0的尺寸没法直接测量。

评分

参与人数 1三维币 +2 收起 理由
plc + 2 参与讨论

查看全部评分

发表于 2009-6-25 11:40:16 | 显示全部楼层 来自: 新加坡
轴用挡圈位置关键要保证轴承或其它相关尺寸,所以图中A若是相关尺寸的话,应该图1是正确的

评分

参与人数 1三维币 +2 收起 理由
天际孤帆 + 2 鼓励交流。

查看全部评分

发表于 2009-6-25 11:45:04 | 显示全部楼层 来自: 中国江苏常州
挡圈槽的公差很大$ p( Q$ Z, I+ X" t: q8 R* m# K
所以如果要保证相对的位置的话,图一是正确的。

评分

参与人数 1三维币 +2 收起 理由
天际孤帆 + 2 技术讨论

查看全部评分

发表于 2009-6-25 12:01:33 | 显示全部楼层 来自: 中国江苏无锡

回复 9# eastlakewater 的帖子

应该是图二正确,A尺寸应为轴套(轴承)+挡圈厚度尺寸,这样轴套(或挡圈)才能被定位正确,在轴向无自由度.
! S; f! h! V; v7 h1 v5 Q图一轴套(或轴承)有轴向微量窜动现象.

评分

参与人数 1三维币 +2 收起 理由
天际孤帆 + 2 技术讨论

查看全部评分

发表于 2009-6-25 12:34:01 | 显示全部楼层 来自: 中国上海
个人比较赞同6楼海棠兄,其实两种标注都可以,从设计的角度像6楼的标注更清楚一些。用挡圈的地方有轴向蹿动是不可避免的,如果轴向控制过紧,必然造成装配上的困难。! {/ V% d* ^0 c$ a; r" P

& m. L8 l8 Q9 r, }2 c3 V(6楼的制图看着很舒服,截图也截的不错,所以我更喜欢, :lol: )

评分

参与人数 1三维币 +2 收起 理由
天际孤帆 + 2 鼓励交流。

查看全部评分

发表于 2009-6-29 13:13:00 | 显示全部楼层 来自: 中国江苏无锡
标准件,手册上都有标注例子的,还在这里讨论?

评分

参与人数 1三维币 +4 收起 理由
天际孤帆 + 4 自己动手,最佳解决方案。

查看全部评分

发表于 2009-6-29 14:45:58 | 显示全部楼层 来自: 中国河北保定
正确与否需根据相关尺寸来确定。

评分

参与人数 1三维币 +2 收起 理由
plc + 2 参与讨论

查看全部评分

发表于 2009-6-29 16:12:32 | 显示全部楼层 来自: 中国上海
楼主的问题很好!很多人用了图1的标法,但这是错的。
: C) t) h: v8 m6 Z+ o4 A, v) y, i1 r+ }$ R9 e
图2的标法是正确的,挡圈紧贴挡圈外侧,轴上的零件就不会窜动。为了避免装配间隙过小,尺寸A应该带公差(一般为正公差)。4 r$ A; k) i* ^/ P
. S8 D; [$ {; o' L" ~
报歉,我原想贴张图上来的,可不知为什么帖不上。
# E. d7 H, w  Q* f2 g* L+ y3 `
+ a& q; d' }  Q( L9 j[ 本帖最后由 shenlifeng 于 2009-6-29 16:44 编辑 ]

评分

参与人数 1三维币 +2 收起 理由
plc + 2 参与讨论

查看全部评分

发表于 2009-6-29 17:31:36 | 显示全部楼层 来自: LAN
一般按照图2来标注

评分

参与人数 1三维币 +2 收起 理由
plc + 2 参与讨论

查看全部评分

发表于 2009-8-25 08:57:52 | 显示全部楼层 来自: 中国黑龙江佳木斯
图一的标注方法是对的。

评分

参与人数 1三维币 +2 收起 理由
plc + 2 参与讨论

查看全部评分

发表于 2009-8-25 09:13:17 | 显示全部楼层 来自: 中国浙江温州
标准上提供是是下面标法,但是没有公差要求,
3 b/ E5 Y: B1 O所以怎样标注都无所谓了,上面两种标法都可以,可能第一种方法加工不用计算尺寸,要好点。  
) S$ ~: Z8 z9 h1 c; \2 H+ ?5 F  S; M# [/ X0 r
其中原因是:用弹性挡圈的地方轴向控制不严,允许有一定的串动
, W% k+ l' R* X, a1 a3 h) \) J* q9 ]8 L+ c- u4 d1 h
[ 本帖最后由 benbengo 于 2009-8-25 01:17 编辑 ]
jia.jpg

评分

参与人数 1三维币 +2 收起 理由
plc + 2 参与讨论

查看全部评分

发表于 2011-1-22 15:00:24 | 显示全部楼层 来自: 中国河南新乡
我刚与别人争论此事,图2正确,并根据使用情况对尺寸A加注公差(尺寸稍大时考虑自由公差)。上面给出标准的标注形式(尺寸n)是从挡圈的使用强度出发的。
发表于 2011-1-22 21:06:19 | 显示全部楼层 来自: 中国天津
具体看使用多大的挡圈或者叫卡簧,其厚度再宽1丝或1道就可以。不必太拘泥了吧
发表于 2011-1-22 21:08:27 | 显示全部楼层 来自: 中国天津
标准上提供是是下面标法,但是没有公差要求,
' y. s* |( q/ P% Q4 X+ C7 _所以怎样标注都无所谓了,上面两种标法都可以,可能第一种方法加工不用计算尺寸,要好点。  
; q& ~- m9 l, ?; e) ~, p
% K6 u/ D- i& H! q其中原因是:用弹性挡圈的地方轴向控制不严,允许有一定的串动  s' z, Q* q8 X2 L
& o  X- K; j3 L3 p
[ 本帖最后由 ...
& l+ z. y- R4 c& y: Vbenbengo 发表于 2009-8-25 09:13 http://www.3dportal.cn/discuz/images/common/back.gif

" W* i. f0 z/ J6 V/ n2 p同意有一定轴向窜动量说法,但不可大,个人观点保持在0.02以里
发表于 2011-1-24 15:23:53 | 显示全部楼层 来自: 中国北京
个人倾向于第二种方法,实际中两种方法都有,对最后的安装影响不大。
发表于 2011-1-26 15:51:55 | 显示全部楼层 来自: 中国河南郑州
我觉得两端标注,呵呵,挡圈到端面时有个距离要求的,
发表于 2011-1-27 11:14:33 | 显示全部楼层 来自: 中国四川成都
我认为两种都可以,但第2种情况用的较多,更方便尺寸链计算。
发表于 2011-1-27 11:55:04 | 显示全部楼层 来自: 中国江苏常州
我觉得10楼的说法比较有道理,有利于轴向定位
发表于 2011-1-27 20:07:22 | 显示全部楼层 来自: 中国山东济南
标准件,可以参照设计手册中的尺寸,图2是常见得标注
发表回复
您需要登录后才可以回帖 登录 | 注册

本版积分规则

Licensed Copyright © 2016-2020 http://www.3dportal.cn/ All Rights Reserved 京 ICP备13008828号

小黑屋|手机版|Archiver|三维网 ( 京ICP备2023026364号-1 )

快速回复 返回顶部 返回列表