QQ登录

只需一步,快速开始

登录 | 注册 | 找回密码

三维网

 找回密码
 注册

QQ登录

只需一步,快速开始

展开

通知     

全站
11天前
查看: 2338|回复: 6
收起左侧

[讨论结束] 这两个菱形尺寸这样标注

[复制链接]
发表于 2009-7-2 09:38:00 | 显示全部楼层 |阅读模式 来自: 中国浙江宁波

马上注册,结识高手,享用更多资源,轻松玩转三维网社区。

您需要 登录 才可以下载或查看,没有帐号?注册

x
请教各位这两个菱形尺寸这样标注才合理呀?
未命名.JPG
 楼主| 发表于 2009-7-2 09:49:54 | 显示全部楼层 来自: 中国浙江宁波
忘记2D图了

0000.rar

6.01 KB, 下载次数: 12

 楼主| 发表于 2009-7-2 12:38:06 | 显示全部楼层 来自: 中国浙江宁波
同志们,帮帮我呀
发表于 2009-7-2 13:46:42 | 显示全部楼层 来自: 中国吉林长春
原帖由 王者王者 于 2009-7-2 12:38 发表 http://www.3dportal.cn/discuz/images/common/back.gif
" d, J6 ^+ {* H6 M9 g同志们,帮帮我呀

( V/ K/ k4 Z- |1 Q我把两端变成圆弧了
QQ截图未命名.jpg
 楼主| 发表于 2009-7-2 15:16:34 | 显示全部楼层 来自: 中国浙江宁波
谢谢楼上朋友,. ^& G& R( q; d* q
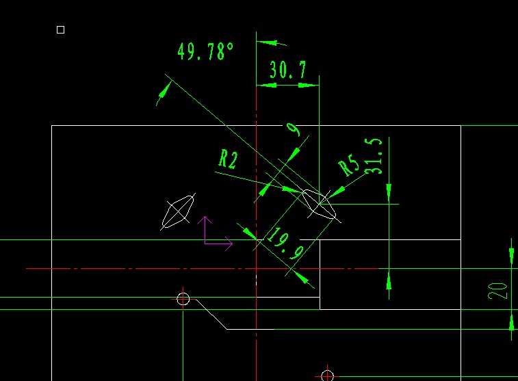
问一下大家,下图标注的好不好?
未命名1111.JPG
发表于 2009-7-2 17:18:25 | 显示全部楼层 来自: 中国浙江宁波
原帖由 王者王者 于 2009-7-2 15:16 发表 http://www.3dportal.cn/discuz/images/common/back.gif
6 r6 `; f" {6 h& Z3 e谢谢楼上朋友,
' s5 \5 L/ M, P( m( K. `& D问一下大家,下图标注的好不好?

2 w" [( o3 k2 S2 S看了一下你的源文件,图形中两边的R5是不对称的,像你这样标注做出来的东西会与你的图形不一样的。
1.jpg
发表于 2009-7-10 15:29:58 | 显示全部楼层 来自: 中国江西南昌
我们这的菱形标注都按四楼的方法。
发表回复
您需要登录后才可以回帖 登录 | 注册

本版积分规则


Licensed Copyright © 2016-2020 http://www.3dportal.cn/ All Rights Reserved 京 ICP备13008828号

小黑屋|手机版|Archiver|三维网 ( 京ICP备2023026364号-1 )

快速回复 返回顶部 返回列表