QQ登录

只需一步,快速开始

登录 | 注册 | 找回密码

三维网

 找回密码
 注册

QQ登录

只需一步,快速开始

展开

通知     

查看: 1661|回复: 3
收起左侧

[已解决] 薄壁套的工艺

[复制链接]
发表于 2009-7-6 20:34:57 | 显示全部楼层 |阅读模式 来自: 中国浙江宁波

马上注册,结识高手,享用更多资源,轻松玩转三维网社区。

您需要 登录 才可以下载或查看,没有帐号?注册

x
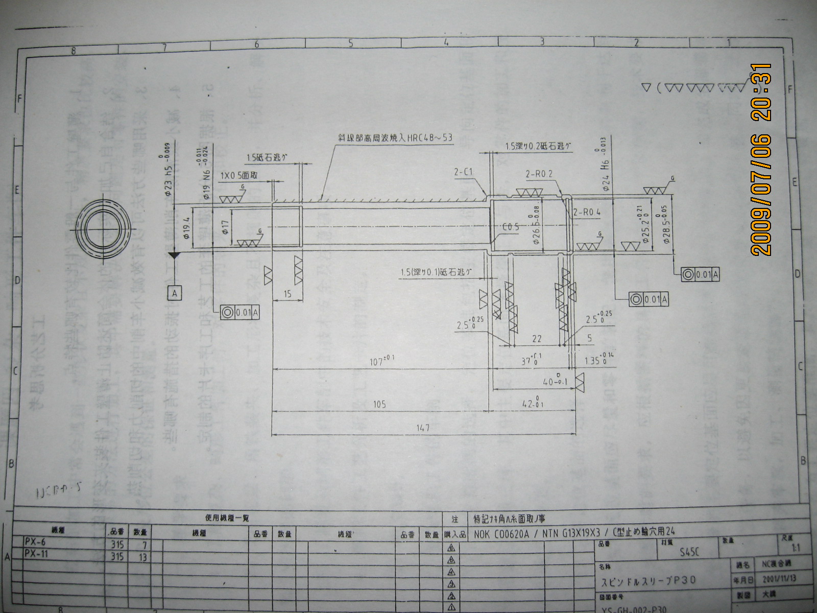
呵呵,各位师傅,谁能看得懂这图纸,并能给我分析下加工工艺 照片 109.jpg
发表于 2009-8-1 02:43:33 | 显示全部楼层 来自: 中国广东江门
图倒是看明白了,但表面精度没看懂.
6 _( O. l6 Z. p# m开料,粗车内外圆,半精车外圆,大端,小端留5丝磨量,车退刀槽,高频淬火,磨外圆,车内孔17,车两端退刀槽,磨24H6,磨19N6内孔
& j% a: @$ B1 }: l! q8 Q内孔可以最后车成,也就是说可以用实心料做,内孔17用钻头钻都没问题,因为没有要求孔17的表面光洁度,所以装夹可利用这点,关键点在两端同轴度要求上,而且两端都只有1~2mm厚度.
5 Y5 S- b! l  \8 S根据图纸,该件形状可以用胀型模具生产,但无法保证淬火变形和表面光洁度.
发表于 2009-8-1 09:44:31 | 显示全部楼层 来自: 中国浙江杭州
加工工艺如下:
  B# ]* B: x" X& x; O+ L+ }; h: @1,车:内径19/24及外径23.45/28.5均留余量0.30,其余按图示要求全车成.
& Z( R( R2 ~) u* {, k# e' n2,热处理+ h% q0 A) P0 x* E! m. d  ~5 P: `
3,磨:1)一次装夹,磨外径23.45/28.5及内径19至尺寸公差.
9 i9 |8 p8 T5 C: O) X5 W  b, N        2)用二级工装心套定位23.45工件外径,并找正定位心套,磨内径24至尺寸公差.% a& X  [: S% _
注:为保证工件的尺寸和同心度要求,要磨工序均需设计制作二级工装.
发表于 2009-9-8 22:42:54 | 显示全部楼层 来自: 中国江苏南京
加工工艺安排:5工序 车  10工序 热处理   15工序 内磨,注意要一刀加工,保证尺寸及同轴度 内孔17为下道工序的定位基准   20工序 外磨,一次成型。     中间可以分粗加工和精加工,加时效定型
发表回复
您需要登录后才可以回帖 登录 | 注册

本版积分规则


Licensed Copyright © 2016-2020 http://www.3dportal.cn/ All Rights Reserved 京 ICP备13008828号

小黑屋|手机版|Archiver|三维网 ( 京ICP备2023026364号-1 )

快速回复 返回顶部 返回列表