QQ登录

只需一步,快速开始

登录 | 注册 | 找回密码

三维网

 找回密码
 注册

QQ登录

只需一步,快速开始

展开

通知     

查看: 2492|回复: 15
收起左侧

[已解决] 这个图是不是标注太多,导致无法画?

[复制链接]
发表于 2009-7-7 13:50:45 | 显示全部楼层 |阅读模式 来自: 中国辽宁沈阳

马上注册,结识高手,享用更多资源,轻松玩转三维网社区。

您需要 登录 才可以下载或查看,没有帐号?注册

x
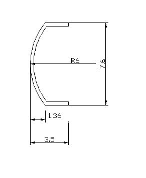
如图:
" j9 ]4 K9 K1 Z5 u7 C
# Z) P$ ~2 n2 n! k  ~R6是不是和1.7的尺寸冲突了?这图能画吗?1 P  S5 q1 W4 A. g# _
2 L! I! k& g) [+ m
[ 本帖最后由 ugnxs 于 2009-7-8 17:14 编辑 ]
1.jpg
发表于 2009-7-7 14:24:06 | 显示全部楼层 来自: 中国上海
感觉是冲突了
发表于 2009-7-7 14:25:13 | 显示全部楼层 来自: 中国江苏无锡
尺寸重复了,两者只能保留其一!
发表于 2009-7-7 16:28:14 | 显示全部楼层 来自: 中国上海
应该刚刚好吧?
2 R$ A9 x4 `, F7 f5 j) d大家画过吗??
 楼主| 发表于 2009-7-7 17:03:18 | 显示全部楼层 来自: 中国辽宁沈阳
哪位能画的,来一张吧
发表于 2009-7-7 18:25:44 | 显示全部楼层 来自: 中国安徽滁州
实际画了一下,这两个尺寸确实相互矛盾,1.7只有1.36左右。

评分

参与人数 1三维币 +2 收起 理由
2005llnn + 2 技术讨论

查看全部评分

发表于 2009-7-7 22:28:53 | 显示全部楼层 来自: 中国陕西西安
原帖由 lqj65 于 2009-7-7 18:25 发表 http://www.3dportal.cn/discuz/images/common/back.gif
: E- Y7 }( c4 k5 v1 g7 S* k$ d0 K实际画了一下,这两个尺寸确实相互矛盾,1.7只有1.36左右。
——对的!
4 g; a; n. j) ?& H  e/ y& @& `3 ]0 a# [2 V

2 K1 L) i) u* H- h) k见下图:0 ~% W2 t' b' B% w, ?  a3 ?5 K
Drawing1.jpg
) F3 S0 I+ |! _; g$ l; ?5 j4 I
* _! x% s* Y/ `; p[ 本帖最后由 lfylll 于 2009-7-7 22:42 编辑 ]

评分

参与人数 1三维币 +3 收起 理由
2005llnn + 3 技术讨论

查看全部评分

发表于 2009-7-8 00:03:19 | 显示全部楼层 来自: 中国江西九江
不一定吧。也有可能是表示的问题。
) U4 N$ c- T; }. w  z& r5 r3 h8 A$ n; g
见图1:假如1.7尺寸不错的话,用作图法可以得到一个直角三角形,边为 4.3 和 3.8-R ,斜边为 6-R ,(其中R为未知小圆的半径)& t/ k  t. ?1 ^  [- i) [8 O( E
             勾股定理应该可以算出R多大。$ ~$ Y% i( U' X) ?; C& s
见图2:我想说的是,中间还应该有一个R的小圆弧来过度。(红色的一小段,我徒手画的,可能不太准,见谅)
. t7 O6 c1 S. j$ d- x0 {
8 M! a/ S: h' t# \/ i我的理由如下--由于尺寸的约束,导致R6的大圆弧和直线连接的部分不是相切的,那么,这种情况在工艺上不可能这样去实现的,必须倒角啊、倒圆什么的。8 }4 x9 P% N& l/ b) s3 C
       为什么没有这个小圆弧的标注呢??7 j1 r# x. [# b+ Q* f
理由--这个图如果让我用Catia 做,我这样做的:把所有的线啊,R6的圆画出来,全部都固定死位置;之后,随手画一个圆,用约束把两个圆用相切固定,再把这个圆和直线相切固定,这样这个圆也定死了。即这个圆是可以自然定位的。7 h" o2 L/ U8 Y* i: n

  l) m0 Y1 p6 K0 F) }" `[ 本帖最后由 烟Oo头 于 2009-7-8 00:28 编辑 ]
11.GIF
22.GIF

评分

参与人数 1三维币 +5 收起 理由
2005llnn + 5 技术讨论

查看全部评分

发表于 2009-7-8 09:44:38 | 显示全部楼层 来自: 中国河南郑州
我实际画了一下,这两个尺寸是有点问题,如果按照图上尺寸的话,楼上的讲的有道理,两直线段之间有圆弧过渡。
发表于 2009-7-8 10:11:13 | 显示全部楼层 来自: 中国北京
是重复!但实际绘图时1.36是要用括弧标注的。技术员绘图是要方便工人领会你的设计意图和方便工艺实施及技术测量。理解绘图标准不要僵化。

评分

参与人数 1三维币 +2 收起 理由
2005llnn + 2 技术讨论

查看全部评分

发表于 2009-7-8 11:32:43 | 显示全部楼层 来自: 中国广东广州
原帖由 白辞 于 2009-7-8 10:11 发表 http://www.3dportal.cn/discuz/images/common/back.gif2 V) @1 u% q8 @
是重复!但实际绘图时1.36是要用括弧标注的。技术员绘图是要方便工人领会你的设计意图和方便工艺实施及技术测量。理解绘图标准不要僵化。
  l  k$ U: }% |# g& O; u
  F- f6 j; [* v/ y5 o, B9 V/ C
说得透彻!
发表于 2009-7-8 15:02:12 | 显示全部楼层 来自: 中国江苏淮安
原帖由 白辞 于 2009-7-8 10:11 发表 http://www.3dportal.cn/discuz/images/common/back.gif
+ `3 u# {( w/ S. N) @' S' i是重复!但实际绘图时1.36是要用括弧标注的。技术员绘图是要方便工人领会你的设计意图和方便工艺实施及技术测量。理解绘图标准不要僵化。

. B% D$ b0 B9 L% ?# C也就是所谓的“工艺尺寸”和“设计尺寸”!
发表于 2009-7-8 16:12:24 | 显示全部楼层 来自: 中国山东烟台
"1.7"属于尺寸冗余!
 楼主| 发表于 2009-7-8 17:13:57 | 显示全部楼层 来自: 中国辽宁沈阳
哦,原来如此啊,谢谢各位老师
发表于 2009-7-12 11:58:51 | 显示全部楼层 来自: 中国江苏无锡
高手还真多,今天又学到一招,
发表于 2009-7-14 09:48:30 | 显示全部楼层 来自: 中国陕西汉中

回复 10# 白辞 的帖子

对呀,支持。就是要考虑工人看图的方便宜懂
发表回复
您需要登录后才可以回帖 登录 | 注册

本版积分规则


Licensed Copyright © 2016-2020 http://www.3dportal.cn/ All Rights Reserved 京 ICP备13008828号

小黑屋|手机版|Archiver|三维网 ( 京ICP备2023026364号-1 )

快速回复 返回顶部 返回列表