QQ登录

只需一步,快速开始

登录 | 注册 | 找回密码

三维网

 找回密码
 注册

QQ登录

只需一步,快速开始

展开

通知     

查看: 3540|回复: 15
收起左侧

[已答复] 这个平键强度校核结果行不行?

[复制链接]
发表于 2009-7-19 11:47:41 | 显示全部楼层 |阅读模式 来自: 中国江苏无锡

马上注册,结识高手,享用更多资源,轻松玩转三维网社区。

您需要 登录 才可以下载或查看,没有帐号?注册

x
大家好,小弟求助一个问题4 G1 a- l8 s0 c$ L* @9 f8 I
我做一个普通平键的强度校核(根据机械设计上的公式),算出σp=135.9Mpa,而允许的钢的[σp]是120~150Mpa
3 m. i1 ]! H1 V( L& n1 i. B+ t请问是否能满足强度要求?不能满足的话是否能换用合金钢材料来自己做键?
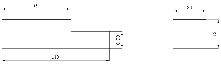
. F" M* }" O# O9 o9 F我的键用的材料是45锻钢的。由于要满足动平衡的要求,所以此键切成了阶梯状,如下图- v* q2 X. J1 u, v: }  T
还请对这方面有了解的各位指教啊,谢谢
: A9 u/ J+ Z# _& I
4 S" m3 h0 o, E( o% H0 ] - x" ], R7 i# |: `3 C
1.jpg
头像被屏蔽
发表于 2009-7-19 14:25:16 | 显示全部楼层 来自: 中国辽宁丹东
提示: 作者被禁止或删除 内容自动屏蔽
 楼主| 发表于 2009-7-19 15:06:20 | 显示全部楼层 来自: 中国江苏无锡
啊,能不能具体就这个问题说说啊' D& G8 h' H7 \( @7 i$ R
谢谢了5 J6 O: E% P' S0 x9 y6 y
另外,请教一下这种阶梯剖面的键受力面积怎么算法?我是只算了大端,没算小端。因键安装上后小端高度只有2.5mm0 D4 z: Q8 v9 e+ Q* ?+ G
还请各位赐教啊
 楼主| 发表于 2009-7-19 15:14:43 | 显示全部楼层 来自: 中国江苏无锡
还有个问题,这样切了以后键会有应力集中吧,那要选多大的r角为合适?' O; e/ X% {0 P1 j3 f! r8 Q
感谢大家讨论
发表于 2009-7-19 15:28:58 | 显示全部楼层 来自: 澳大利亚
键是标准件,强度不足就增加长度,选高一级尺寸,增大截面积。其次才考虑换材料。
8 f9 U, W" \- I* h5 K# E) H( O安全系数还是要的,否则承受启动和停止的冲击载荷就有问题了!

评分

参与人数 1三维币 +3 收起 理由
userkypdy + 3 技术交流

查看全部评分

 楼主| 发表于 2009-7-19 21:52:53 | 显示全部楼层 来自: 中国江苏无锡
请教一下,如果用来联接空压机的话,这个算是什么性质的载荷?
发表于 2009-7-20 03:50:58 | 显示全部楼层 来自: 美国
同意5楼,考虑是否要承受冲击载荷
 楼主| 发表于 2009-7-20 21:11:42 | 显示全部楼层 来自: 中国江苏无锡
那接空压机的话,电机轴端的键承受的是哪种载荷呢?
发表于 2009-7-22 20:46:19 | 显示全部楼层 来自: 中国北京
"不能满足的话是否能换用合金钢材料来自己做键?"
" r3 o* G/ ^5 H
7 x( u: u& Y0 }: d
# C' X. Q8 m2 u5 ?  K我认为此说法不妥,如果强度校核失败,那说明刚度就更不行,仅靠换材料不可能达到这个量的变化,普通平键的规格一般是按照轴径取标准设计的,那说明轴径强度可能也有问题.

评分

参与人数 1三维币 +3 收起 理由
userkypdy + 3 技术交流

查看全部评分

发表于 2009-7-23 10:42:43 | 显示全部楼层 来自: 中国山西长治
按照机械设计手册选择就可以了呀,多粗的轴选择多大平键。然后根据上面的计算公式核算一下强度。
 楼主| 发表于 2009-7-23 19:48:13 | 显示全部楼层 来自: 中国江苏无锡
谢谢大家的讨论,其实在现实应用中轴和联轴器的配合大都为过盈配合,过盈量产生的摩擦力将抵消掉很大一部分的传递扭矩值!(与过盈量的大小及轴径都有关),具体多少,是否有合适的公式,我也正在寻找中
发表于 2009-7-28 12:43:51 | 显示全部楼层 来自: 中国辽宁大连
先看看再说0 y. o+ s, [7 g% X" `5 @5 d
学习拉
发表于 2009-8-4 14:41:44 | 显示全部楼层 来自: 中国上海
从计算结果看不满足,结构上是否允许用双键对称布置呢
发表于 2009-8-4 15:28:53 | 显示全部楼层 来自: 中国云南昆明
如果前提条件是动平衡,最好采用双键结构或者采用花键。你原本的设计很有可能不满足动平衡要求,强度也不足。
发表于 2009-8-29 18:20:19 | 显示全部楼层 来自: 中国辽宁
从计算结果看不满足,结构上是否允许用花键配合
发表于 2009-9-26 12:03:12 | 显示全部楼层 来自: 中国辽宁沈阳
如果现处于设计阶段,建议采用双键结构;若处于调试阶段,则建议换材料,而后选材料的[σp]值最好在180~220Mpa以上为宜。
发表回复
您需要登录后才可以回帖 登录 | 注册

本版积分规则


Licensed Copyright © 2016-2020 http://www.3dportal.cn/ All Rights Reserved 京 ICP备13008828号

小黑屋|手机版|Archiver|三维网 ( 京ICP备2023026364号-1 )

快速回复 返回顶部 返回列表