QQ登录

只需一步,快速开始

登录 | 注册 | 找回密码

三维网

 找回密码
 注册

QQ登录

只需一步,快速开始

展开

通知     

查看: 3303|回复: 12
收起左侧

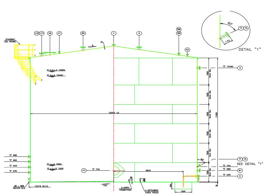
[求助] 请问这个储油罐的顶和底部是用什么钢板加工出来的?

[复制链接]
发表于 2009-7-21 13:34:24 | 显示全部楼层 |阅读模式 来自: 中国四川成都

马上注册,结识高手,享用更多资源,轻松玩转三维网社区。

您需要 登录 才可以下载或查看,没有帐号?注册

x
顶部是一个圆锥型,底部是圆形的,直径有12m。* g2 i9 y7 p' a' A+ m2 \& E" u
一般采用什么样的钢板来加工储油罐。
4.jpg
发表于 2009-7-21 14:01:32 | 显示全部楼层 来自: 中国浙江宁波
这种罐钢板材质一般用20#碳钢的就行了

评分

参与人数 1三维币 +2 收起 理由
liuhob + 2 应助

查看全部评分

发表于 2009-7-22 11:10:08 | 显示全部楼层 来自: 中国浙江金华
用Q245R钢板比较好,用Q235B也可以。

评分

参与人数 1三维币 +2 收起 理由
liuhob + 2 应助

查看全部评分

发表于 2009-7-22 12:32:46 | 显示全部楼层 来自: 中国北京
Q235-A就可以了吧

评分

参与人数 1三维币 +2 收起 理由
liuhob + 2 应助

查看全部评分

 楼主| 发表于 2009-7-25 22:09:07 | 显示全部楼层 来自: 中国四川成都
谁知道这个环形肋板是怎么回事?annular plate 。 我没看到上面的意思。对于大于12.5的储油罐 的壳底部要用环形肋板,环形肋板只能是对焊,其他的采用搭接焊。供应商要保证小于12.5的储油罐要有环形肋板。
6 I: A# ^8 N6 l没读懂。
1.jpg
 楼主| 发表于 2009-7-26 09:54:55 | 显示全部楼层 来自: 中国四川成都
一般这种我是买卷板回来自己开平,还是买定尺板 来卷制了?
 楼主| 发表于 2009-7-26 10:54:25 | 显示全部楼层 来自: 中国四川成都
这是储油罐 储存的液体的温度要求的说明。 我没有看懂,谁能解释一下
555.jpg
发表于 2009-7-26 14:39:10 | 显示全部楼层 来自: 中国山东济南
常压罐用Q235-A钢板即可。
发表于 2009-7-26 17:17:38 | 显示全部楼层 来自: 中国陕西西安
般这种我是买卷板回来自己开平,还是买定尺板 来卷制了?

评分

参与人数 1三维币 -20 收起 理由
liuhob -20 灌水

查看全部评分

发表于 2009-7-27 08:42:31 | 显示全部楼层 来自: 中国甘肃兰州
这样的储罐可以使用开平板进行制造和卷制吗?上面的楼主可否说明一下依据?谢谢!!
发表于 2010-7-20 17:48:48 | 显示全部楼层 来自: 阿尔及利亚
可以用开平板进行制造和卷制,只要材质符合要求
发表于 2010-10-6 10:31:57 | 显示全部楼层 来自: 中国辽宁盘锦
本帖最后由 九天揽月 于 2010-10-6 19:06 编辑
0 E0 r& |# m, R5 C' X9 c3 S4 v3 ?/ _
储罐板采用GB3274热轧板制作,可以选用Q235B、20#等板材,采购板材时,要选用原平板,尽可能不用开平板,开平板内应力水平较高,因此尺寸稳定性较差。随开平操作时的工艺参数不同,其内应力分布情况也不同,会出现垂直长度的不同方向上,承载能力的不同。 因此开平板在焊接的时候会有很大的焊接变形,很难调整。
头像被屏蔽
发表于 2010-10-9 09:58:21 | 显示全部楼层 来自: 中国福建莆田
提示: 作者被禁止或删除 内容自动屏蔽
发表回复
您需要登录后才可以回帖 登录 | 注册

本版积分规则


Licensed Copyright © 2016-2020 http://www.3dportal.cn/ All Rights Reserved 京 ICP备13008828号

小黑屋|手机版|Archiver|三维网 ( 京ICP备2023026364号-1 )

快速回复 返回顶部 返回列表