QQ登录

只需一步,快速开始

登录 | 注册 | 找回密码

三维网

 找回密码
 注册

QQ登录

只需一步,快速开始

展开

通知     

全站
5天前
查看: 3568|回复: 26
收起左侧

[已解决] 坐标标注问题

[复制链接]
发表于 2009-7-21 23:34:02 | 显示全部楼层 |阅读模式 来自: 中国上海

马上注册,结识高手,享用更多资源,轻松玩转三维网社区。

您需要 登录 才可以下载或查看,没有帐号?注册

x
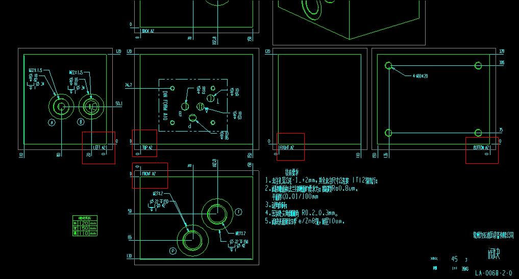
请问如何把TOP  A2   显示在如图位置?
TOP A2.jpg
 楼主| 发表于 2009-7-21 23:36:24 | 显示全部楼层 来自: 中国上海
我试了很长时间也没琢磨出来,TOP A2总是显示在原点处。不知道为什么?
TOP A2-1.jpg
 楼主| 发表于 2009-7-22 21:20:30 | 显示全部楼层 来自: 中国上海
自己顶一个。
 楼主| 发表于 2009-7-23 20:57:26 | 显示全部楼层 来自: 中国上海
再顶,这可是工作中遇到的问题啊
发表于 2009-7-23 21:13:37 | 显示全部楼层 来自: 中国江苏无锡
楼主把问题讲清楚,用的什么软件,直接移动没用吗
 楼主| 发表于 2009-7-24 21:00:48 | 显示全部楼层 来自: 中国上海
ug  制图中的坐标标注,可以移动的,但是我感觉没必要,因为ug可以自动生成的,像TOP,RINGT ,LEFT等,自动标注左视图,右视图的。我感觉这样不错,让人一看就能分清各视图的关系。
阀块设计.JPG
 楼主| 发表于 2009-7-25 09:28:45 | 显示全部楼层 来自: 中国上海
用文本写的可以移动,自动生成的就不能移动了。
发表于 2009-7-25 10:14:55 | 显示全部楼层 来自: 中国河南洛阳
可以自己添加一个注释
 楼主| 发表于 2009-7-25 10:38:03 | 显示全部楼层 来自: 中国上海
添加注释就麻烦了,发个你看看,是不是添加注释的?要是注释的话双击可以编辑的,但这里不能。我认为在尺寸样式里应该能搞的定,这是别人做的,
4.jpg

MMM.rar

261.8 KB, 下载次数: 24

发表于 2009-7-25 19:44:26 | 显示全部楼层 来自: 中国河北沧州
不要用“用户定义”,要用“坐标集名”,然后在属性里改集名就行了!  R: j- p4 I: e
改完了刷新视图!
坐标集.JPG

评分

参与人数 1三维币 +3 收起 理由
astrokylin + 3 应助

查看全部评分

 楼主| 发表于 2009-7-26 09:33:13 | 显示全部楼层 来自: 中国上海
呵呵,谢谢版主啊,这个问题已解决了。
发表于 2009-7-26 10:19:51 | 显示全部楼层 来自: 中国浙江台州
哈哈,上个更简单的方法  r& X$ S- |# A9 K  _
4.gif

评分

参与人数 1三维币 +3 收起 理由
beyond2009 + 3 应助

查看全部评分

 楼主| 发表于 2009-7-26 10:32:42 | 显示全部楼层 来自: 中国上海
呵呵,高手啊,什么事情都有个最好的方法的。
3 L3 \7 o# `% G" ]$ U3 m* q# q( z  V我还有个标注的问题想请教。
 楼主| 发表于 2009-7-26 10:33:53 | 显示全部楼层 来自: 中国上海
我做的可就不行了。
标注.jpg
 楼主| 发表于 2009-7-26 11:22:19 | 显示全部楼层 来自: 中国上海
我做的,差别太大了,难看死了。
我做的标注.jpg
发表于 2009-7-26 13:19:47 | 显示全部楼层 来自: 中国江苏苏州

回复 15# mliu 的帖子

请看图吧!!!
未命名.JPG
 楼主| 发表于 2009-7-26 15:18:56 | 显示全部楼层 来自: 中国上海
谢谢,不知道你有没有把MMM下载下来仔细看看。这样是不行的。
发表于 2009-7-27 13:28:58 | 显示全部楼层 来自: 中国上海
对不齐的原因就要自己找一套合适的字体了,不过目前看来只有几家研究所自己开发的还算可以
 楼主| 发表于 2009-7-27 20:29:12 | 显示全部楼层 来自: 中国上海
我已把附件上传了,麻烦版主看看是什么字体,我认为和字体没关系,只是没找到合适的方法?
 楼主| 发表于 2009-7-27 22:03:10 | 显示全部楼层 来自: 中国上海
顶一个,还有这一个问题,这张图就解决了。
发表于 2009-7-27 22:54:11 | 显示全部楼层 来自: 中国浙江杭州
学习学习,
 楼主| 发表于 2009-7-29 19:43:38 | 显示全部楼层 来自: 中国上海
再顶,有问题就要解决
发表于 2009-7-31 20:05:00 | 显示全部楼层 来自: 中国广东东莞
都是高手级的人啊,要好好学习!!!
 楼主| 发表于 2009-8-1 10:45:57 | 显示全部楼层 来自: 中国上海
顶顶,这个问题对我很重要,解决了我就可以在ug中直接标注了。
 楼主| 发表于 2009-8-21 22:56:38 | 显示全部楼层 来自: 中国上海
盼着高手啊??
发表回复
您需要登录后才可以回帖 登录 | 注册

本版积分规则

Licensed Copyright © 2016-2020 http://www.3dportal.cn/ All Rights Reserved 京 ICP备13008828号

小黑屋|手机版|Archiver|三维网 ( 京ICP备2023026364号-1 )

快速回复 返回顶部 返回列表