QQ登录

只需一步,快速开始

登录 | 注册 | 找回密码

三维网

 找回密码
 注册

QQ登录

只需一步,快速开始

展开

通知     

goto3d 说: 在线网校重磅上线MC2022&Inventor2022全新课程,虞为民老师、大表哥同事精彩讲解,快去围观!
2021-06-25
查看: 6873|回复: 50
收起左侧

[讨论] 凭这张2D能画出3D吗?(是鬼子的)

[复制链接]
发表于 2009-7-30 11:46:22 | 显示全部楼层 |阅读模式 来自: 中国江苏苏州

马上注册,结识高手,享用更多资源,轻松玩转三维网社区。

您需要 登录 才可以下载或查看,没有帐号?注册

x
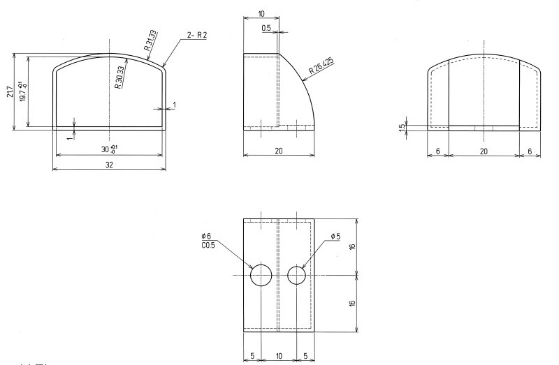
凭这张2D能画出3D吗?(单位是MM,是鬼子的),自己总觉得少视图。; r4 m0 Y+ X6 b  a/ O8 F( d- q
谁能画出请上传PART,谢谢!) h" d4 X3 P' y4 R( q7 }
尤其在右视图的上中间两条竖实线和下视图的侧孔(或槽)、正视图的0.5MM的虚线% f% E% _8 P% w! z2 P$ U8 A7 U1 N& Z
0 w7 K: p  Y5 Y: A9 k
[ 本帖最后由 wlm508 于 2009-7-31 10:58 编辑 ]
片段_12.jpg
发表于 2009-7-30 12:03:29 | 显示全部楼层 来自: 中国河南郑州
不少也不难
发表于 2009-7-30 12:45:11 | 显示全部楼层 来自: 加拿大
不太难吧,看识图的水平
发表于 2009-7-30 12:55:35 | 显示全部楼层 来自: 中国四川成都
确实差下面视图上 孔的定位尺寸(即侧面不清楚是否还有两孔)其余都没有问题
发表于 2009-7-30 13:44:09 | 显示全部楼层 来自: 中国内蒙古呼伦贝尔
绝对没问题的
发表于 2009-7-30 14:31:39 | 显示全部楼层 来自: 中国陕西西安
R26.425无定位尺寸,视图不全( p7 ~5 p& u2 |$ @1 ?
$ z9 }' X3 w* ^+ G
[ 本帖最后由 king9353 于 2009-7-30 15:05 编辑 ]
发表于 2009-7-30 14:42:37 | 显示全部楼层 来自: 中国浙江台州
左视图和俯视图好像对不起来,有两条线找不着对应的了……
发表于 2009-7-30 14:45:43 | 显示全部楼层 来自: 中国北京
原帖由 bhcokman 于 2009-7-30 14:42 发表 http://www.3dportal.cn/discuz/images/common/back.gif
" e6 L( j2 F4 k; w, `/ a% E左视图和俯视图好像对不起来,有两条线找不着对应的了……

3 b) t% S+ _# O  H- c
' P: ^. r) [$ E7 e! z$ @
' C' \4 O+ W+ ^7 h- S同意啊~,
发表于 2009-7-30 15:15:37 | 显示全部楼层 来自: 中国黑龙江哈尔滨
那位高手画出来,我对照着学习学习。看了半天也没看出来。
发表于 2009-7-30 16:01:37 | 显示全部楼层 来自: 中国浙江金华
表达不完整,内部结构有问题,不能建立正确的三维模型。
发表于 2009-7-30 16:14:46 | 显示全部楼层 来自: 中国浙江杭州
有問題,如果來個剖視圖會比較清楚
发表于 2009-7-30 17:14:21 | 显示全部楼层 来自: 澳大利亚
这个也叫工程图? 鬼子也太搞笑了!
6 S, X  s0 |$ q) r" b, C3 g% _( ~估计是个才毕业的,或是没毕业的画的,艺术家该行的。% x4 Q, K! x- V9 u
孔的位置不全,几个投影图关系不对(不论用第一还是第三视角)。
发表于 2009-7-30 18:44:55 | 显示全部楼层 来自: 中国北京
原帖由 Mrjianhuili 于 2009-7-30 17:14 发表 http://www.3dportal.cn/discuz/images/common/back.gif2 m6 ]: X2 p2 W+ m( [( ^+ i# w
这个也叫工程图? 鬼子也太搞笑了!
( V1 G$ Y% J5 U估计是个才毕业的,或是没毕业的画的,艺术家该行的。
. j% @2 M' ~' I; ~6 ]! K) l3 m6 e孔的位置不全,几个投影图关系不对(不论用第一还是第三视角)。
' r2 c# j! `$ h0 x
从哪儿看出来时艺术家改行的?
发表于 2009-7-30 19:05:22 | 显示全部楼层 来自: 中国广东中山
孔孔是有点不清楚。。。。。。。。。。能画成这样算好的了
发表于 2009-7-30 20:28:46 | 显示全部楼层 来自: 中国广东东莞
应该可以画出来  呵呵
发表于 2009-7-30 21:55:05 | 显示全部楼层 来自: 中国山西
左右视图有点问题,下面孔径是5 和6mm 在右视图上都没有显示孔径得大小差别,左视图上没有显示孔径。
发表于 2009-7-31 06:43:52 | 显示全部楼层 来自: 中国广东东莞
为何画不出来  给个理由
发表于 2009-7-31 08:11:31 | 显示全部楼层 来自: 中国浙江温州
好像图纸有错误吧  对不起来啊
发表于 2009-7-31 08:36:28 | 显示全部楼层 来自: 中国江苏无锡
相信在这里看图的人,应该是对工程图并不陌生,不会凭空发表观点。7 K3 r% e/ S* i( P& ^
一些国家使用的视图标准惯与我国不同,如图,右边放的是右视图,左边方的是左视图,下面放的是底视图。
; ]' Z" e9 M6 Y' c* V: K8 r惭愧!图纸我没看明白,觉得图纸有问题。
8 T9 \% u* z  U/ h* Z建议各位发表图纸没问题的,贴个图出来,大家看看!
发表于 2009-7-31 09:05:00 | 显示全部楼层 来自: 澳大利亚
原帖由 shchx 于 2009-7-31 08:36 发表 http://www.3dportal.cn/discuz/images/common/back.gif; C; m8 e' u) f) x7 R1 d" _: w
相信在这里看图的人,应该是对工程图并不陌生,不会凭空发表观点。* h8 {2 `% ?$ p4 a; ~! P5 [
一些国家使用的视图标准惯与我国不同,如图,右边放的是右视图,左边方的是左视图,下面放的是底视图。
1 }( C& ^/ @! d' N; B惭愧!图纸我没看明白,觉得图纸有问题。 ...

. H4 L' j7 D8 q, n* X0 n没错,画图的人使用的是第三视角. "右边放的是右视图,左边方的是左视图,下面放的是底视图". 和国内的习惯不同.
3 n; |# J. F7 a& G# X  Y- ]& n即使是用第三视角,我也看不懂.有些线没画出来,有的线在视图中对应不起来!1 c& n$ ~! ^! c6 {# v2 }$ d4 d
三维模型没法建立!
, a& g6 W% d$ h5 h7 P  \  \8 @9 O% |1 N+ S- j' Q# g
[ 本帖最后由 Mrjianhuili 于 2009-7-31 20:48 编辑 ]
 楼主| 发表于 2009-7-31 09:18:04 | 显示全部楼层 来自: 中国江苏苏州
原帖由 heyantian 于 2009-7-30 12:03 发表 http://www.3dportal.cn/discuz/images/common/back.gif
9 V2 g8 H4 K1 M' }0 z9 K; Q不少也不难

( Z- U8 s( O, _. Y我也知道,如果不少对应关系,应该不难,版主能花时间上传PART吗?谢谢!6 V; z+ }( c0 T- l# }8 m
, S$ \8 J3 m- f# }+ H0 x
[ 本帖最后由 wlm508 于 2009-7-31 09:24 编辑 ]
 楼主| 发表于 2009-7-31 11:02:15 | 显示全部楼层 来自: 中国江苏苏州
原帖由 IMOON 于 2009-7-31 06:43 发表 http://www.3dportal.cn/discuz/images/common/back.gif
2 y$ k: Y/ Z- Q$ k# E为何画不出来  给个理由
$ l2 L; v3 z6 x7 i
右视图的上中间两条竖实线和下视图的侧孔(或槽)、正视图的0.5MM的虚线
发表于 2009-7-31 11:32:21 | 显示全部楼层 来自: 中国浙江宁波
图我看了,我是没有办法画出来,感觉不对!
发表于 2009-7-31 11:58:19 | 显示全部楼层 来自: 中国浙江宁波
原帖由 konglee2005 于 2009-7-30 13:44 发表 http://www.3dportal.cn/discuz/images/common/back.gif
4 t. R  |, w! s8 M  l, b( Z3 [& F6 o绝对没问题的

! Y5 c6 f5 }2 m) u. E$ w认为没有问题,能画一个让我们看看就好了!
发表于 2009-7-31 12:34:05 | 显示全部楼层 来自: 中国广东佛山
无问题,我可以
发表回复
您需要登录后才可以回帖 登录 | 注册

本版积分规则


Licensed Copyright © 2016-2020 http://www.3dportal.cn/ All Rights Reserved 京 ICP备13008828号

小黑屋|手机版|Archiver|三维网 ( 京ICP备2023026364号-1 )

快速回复 返回顶部 返回列表